4-Bedroom One-Story Modern Farmhouse with Optionally Finished Lower Level (Floor Plan)

Specifications:
- 2,092 Sq Ft
- 2 – 4 Beds
- 2.5 – 3.5 Baths
- 1 Stories
- 2 Cars
From the outside, this sprawling modern farmhouse looks like the kind of home that invites you in for sweet tea and good conversation.
But once you step through that covered porch, it’s clear this floor plan was designed for more than charm—it’s built for living.
With 2,092 square feet of thoughtfully planned space, this single-story layout offers flexibility, functionality, and that unmistakable farmhouse warmth.



A Welcoming Entry That Sets the Tone
The front covered porch is where the home’s personality really begins.
It’s the perfect prelude to what’s inside—broad, inviting, and begging for a pair of rocking chairs.
This space naturally blends country charm with modern purpose.
The moment you step through the front door, you’re met with a sense of openness that instantly makes the floor plan feel larger than life.
It’s not just a doorway—it’s a soft introduction to the home’s flowing, easy layout that continues throughout.
A Great Room That Commands Attention
At the heart of this farmhouse is the great room, a space designed to be both grand and cozy.
The vaulted ceiling creates an airy feel, while the fireplace anchors the room with warmth and focus.

A series of windows overlooking the front yard pulls in natural light, adding to that sense of calm and comfort.
The design of the great room works perfectly with modern living—it’s open enough for gatherings, yet defined enough to feel intimate when it’s just you and the crackling fire.
The openness of this layout ensures seamless interaction with the kitchen and dining areas, keeping the entire space connected and social.
Open Concept Living for Effortless Flow
This home embraces the open-concept design with intention.
The great room, kitchen, and dining area share a continuous vaulted ceiling accented with rustic wood beams, a visual touch that ties everything together beautifully.
You can cook dinner, entertain guests, or watch TV—all within view of each other.
The connection between these spaces makes the floor plan feel larger and more welcoming.

Whether it’s a family gathering or a quiet night in, this design encourages movement and conversation without the barriers of walls or wasted corners.
Every square foot is used wisely, proving that thoughtful design beats sheer size every time.
A Kitchen That Blends Function and Simplicity
The kitchen is where this plan truly shines.
It’s practical yet stylish, featuring a modest island that provides extra prep space without overwhelming the room.
The walk-in pantry is a major win for organization lovers, offering plenty of room to store everything from dry goods to your favorite snacks.
The kitchen’s strategic location near the garage is one of those underrated conveniences you don’t fully appreciate until you experience it—especially when unloading groceries.

You can practically step right from your car to the counter.
The entire layout reflects smart, real-world design choices that make everyday life just a little smoother.
A Dining Area Designed for Connection
The dining area sits comfortably between the kitchen and great room, sharing that same vaulted ceiling and open atmosphere.
It’s large enough for a family table but close enough to the kitchen to make serving meals effortless.
With natural light pouring in, it’s easy to imagine this space becoming the heart of your daily routine—from morning coffee to holiday dinners.
What makes it special is how naturally it blends with the rest of the floor plan.
There’s no sharp transition, just a seamless continuation of open living that keeps the energy flowing through the home.

A Home Office with Everyday Flexibility
Just off the entryway, there’s a perfectly placed home office that adds flexibility to the floor plan.
Whether it’s a quiet spot for working remotely, managing family schedules, or just paying bills in peace, this room provides privacy without being isolated.
Its proximity to the front entrance also makes it easy for professional visitors to come and go without disturbing the rest of the house.
The placement of this office shows how this design anticipates modern needs—functional spaces that adjust to how you live, not the other way around.
A Master Suite That Redefines Comfort
Tucked privately on one side of the floor plan, the master suite is designed to feel like your personal retreat.
The bedroom itself is spacious and filled with light, while the attached bathroom delivers a spa-like experience.

With a full-size tub, separate standing shower, and dual vanities, it checks every box for both comfort and luxury.
The adjoining walk-in closet is generous enough to handle every wardrobe season without feeling cramped.
This suite is a quiet haven, strategically separated from the rest of the home to ensure peace and privacy.
Whether you’re starting your day or winding down, this part of the floor plan guarantees a touch of calm no matter the hour.
Guest Space That Feels Thoughtful
On the opposite side of the layout, the guest bedroom has its own bathroom and walk-in closet—an ideal setup for visiting friends or family.
It’s a simple but effective way to provide guests with both comfort and independence.
The separation of bedrooms across the floor plan also ensures privacy for everyone, something that families and hosts alike will appreciate.

The arrangement proves that this house plan wasn’t just designed for aesthetics—it was planned for real living, where personal space and shared space are perfectly balanced.
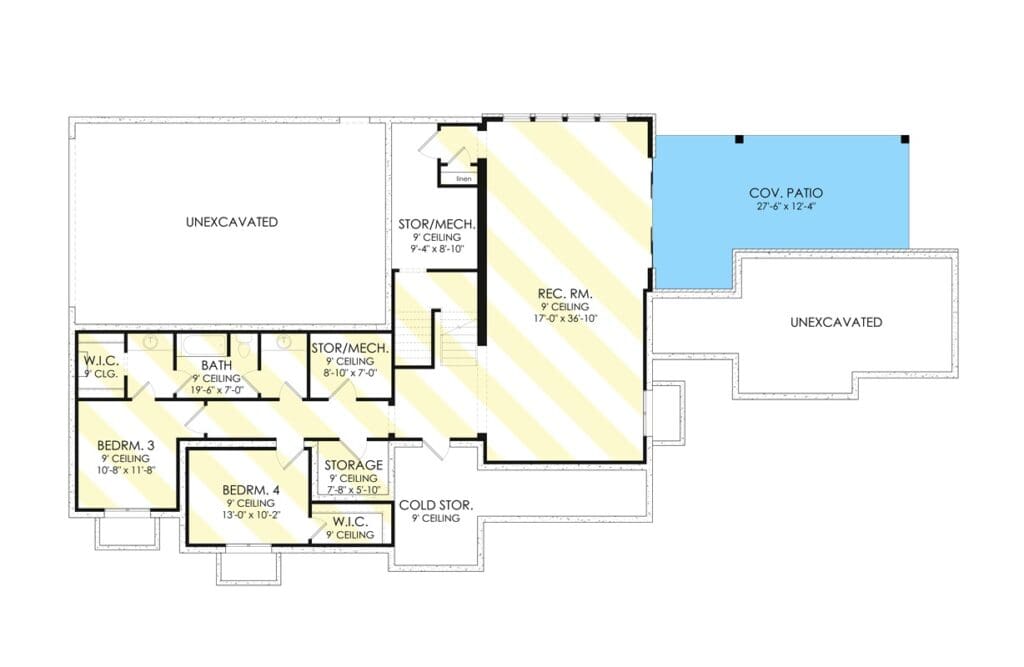
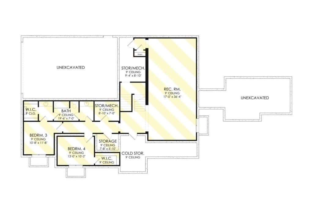
A Basement with Endless Possibilities
Now, here’s where this farmhouse plan surprises you—the optional finished lower level.
When completed, it adds an impressive 1,439 square feet of bonus living space.
Downstairs, you’ll find a large recreation room that’s ideal for movie nights, game days, or even a personal gym.
The lower level also includes two more bedrooms, each with walk-in closets, plus generous storage areas.
Whether you’re planning to expand your family, host long-term guests, or simply want a flexible space for hobbies, this addition transforms the home into something even more versatile.

And if your lot allows for a walkout basement, that back patio can easily convert into a deck—extending your living space outdoors.
This flexibility adds long-term value to the design, making it adaptable to both lifestyle and location.
A Backyard Connection That Completes the Layout
The transition from indoor to outdoor living is effortless in this plan.
The back patio (or deck, depending on the lot) connects naturally to the open living areas inside.
Whether you’re grilling, gardening, or just relaxing in the evening breeze, this space feels like an extension of the home rather than an afterthought.
The flow between the kitchen, dining room, and patio encourages outdoor entertaining and daily enjoyment alike.
It’s the perfect complement to the welcoming front porch, completing the home’s sense of balance and openness.

A Floor Plan Built for Real Life
What stands out about this modern farmhouse design is how every inch of space serves a purpose.
From the vaulted ceilings to the efficient kitchen layout, from the quiet office to the expandable basement, it all fits together like a puzzle designed around comfort and practicality.
The two-car garage provides convenience, while the single-story living keeps accessibility easy for everyone.
The optional basement takes this already generous 2,092-square-foot plan and pushes it further into “forever home” territory.
This floor plan isn’t trying to impress with unnecessary complexity—it’s all about creating a home that feels open, flexible, and effortlessly livable.
It has the warmth of a farmhouse and the intelligence of modern design, perfectly balanced for today’s lifestyle.
Every good home starts with a great floor plan, and this one is proof of that.

With its blend of cozy living spaces, smart layout, and adaptable lower level, it checks all the boxes for comfort, flexibility, and charm.
From the inviting porch to the sunlit great room and the private master suite, every detail feels intentional.
This is more than a layout—it’s a vision for how daily life can feel when design works hand in hand with comfort.
A house like this doesn’t just hold your furniture; it holds your story.
Building or buying a home isn’t just about picking the perfect house plan—it’s also about making smart long-term choices. From comparing mortgage rates to finding a trustworthy real estate agent, every decision adds value. Don’t forget to explore options like home insurance, home warranties, and potential refinance opportunities to protect your investment.
Want to boost your property value? Consider installing solar panels, upgrading to energy-efficient appliances, or integrating a smart home system. Plus, tools like interior design software can help you visualize and plan your dream space before the first brick is even laid.
Find More House Plans
By Bedrooms:
1 Bedroom • 2 Bedrooms • 3 Bedrooms • 4 Bedrooms • 5 Bedrooms • 6 Bedrooms • 7 Bedrooms • 8 Bedrooms • 9 Bedrooms • 10 Bedrooms
By Levels:
By Total Size:
Under 1,000 SF • 1,000 to 1,500 SF • 1,500 to 2,000 SF • 2,000 to 2,500 SF • 2,500 to 3,000 SF • 3,000 to 3,500 SF • 3,500 to 4,000 SF • 4,000 to 5,000 SF • 5,000 to 10,000 SF • 10,000 to 15,000 SF










