4-Bedroom Dual-Story Modern Farmhouse with Two-Story Great Room (Floor Plan)

Specifications:
- 3,694 Sq Ft
- 4 Beds
- 3 Baths
- 2 Stories
- 2 Cars
If you’ve ever imagined a home where style meets function, this 4-bedroom modern farmhouse plan is calling your name.
With 3,694 square feet of living space, a two-story great room, and thoughtful flow throughout, this house plan feels like it was designed for both everyday living and entertaining.
Let’s walk through every corner of this plan and see why it’s a layout that makes life easy and enjoyable.
Stay Tuned: Detailed Plan Video Awaits at the End of This Content!


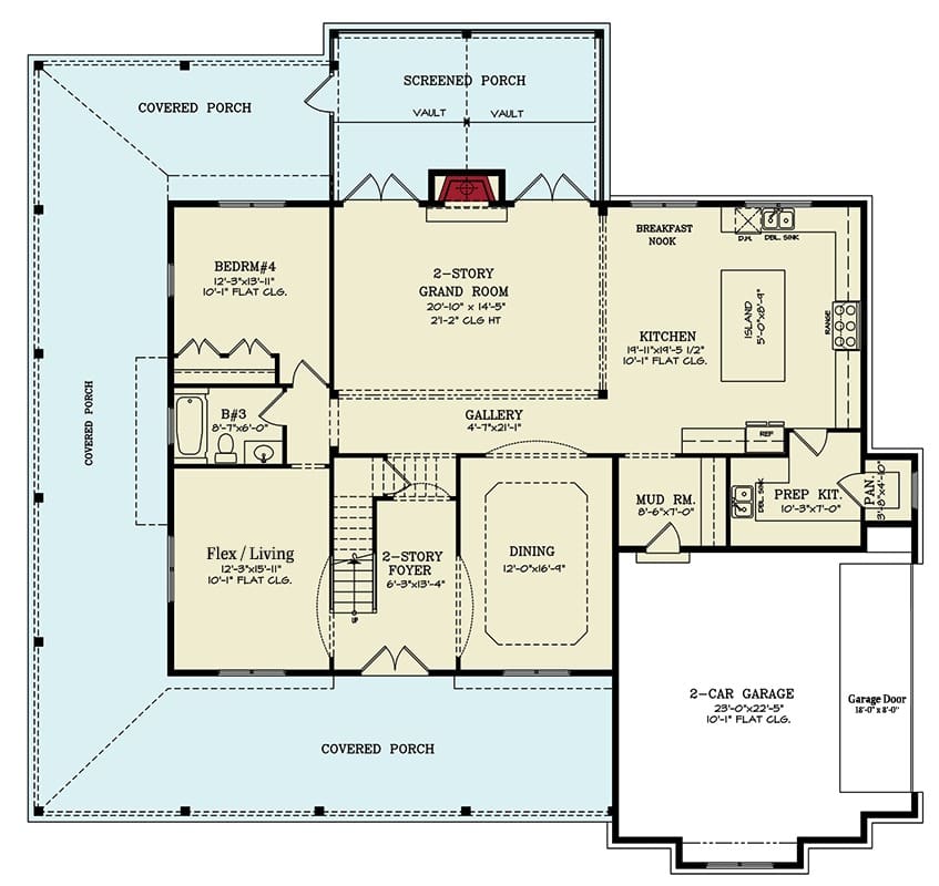
Grand Entry and Front Porch
The moment you step onto the wraparound front porch, you get a sense of space and openness.
This porch extends along three sides of the home, leading to a screened porch in the back — perfect for morning coffee, summer reading, or even envisioning your next home improvement project.
French doors open into the two-story foyer, making a bold first impression.

On one side, the flex room provides flexibility for an office, music room, or cozy reading nook.
On the other side, the dining room features a tray ceiling, offering a formal touch for family dinners or entertaining.
The foyer and front porch layout are not just attractive; they guide guests naturally into the heart of the home while keeping private spaces tucked away.

Two-Story Great Room
Stepping into the two-story great room, you immediately notice the soaring ceilings and abundant natural light.
This open layout connects seamlessly to the island kitchen, creating a space that’s perfect for both hosting gatherings and daily family life.
With views of the backyard and easy access to the screened porch via either side of the fireplace, this room is designed to maximize comfort and functionality.

If you’re considering a smart home technology setup or a best home security system, the great room is central enough to control and monitor key systems with ease.
Island Kitchen, Pantry, and Mudroom
Adjacent to the great room is the island kitchen, which is as practical as it is stylish.
A dedicated prep area and walk-in pantry provide ample storage and workspace for meal prep or entertaining.

The nearby mudroom keeps the home organized, offering a landing spot for shoes, coats, and backpacks — a must-have feature in any functional family layout.
Whether you’re thinking about a home remodeling contractor or using interior design software to plan upgrades, this kitchen layout supports both everyday convenience and future improvements.
First-Floor Bedroom Suite
One of the most practical aspects of this floor plan is the first-floor bedroom suite.

Located on the left side of the house, it offers privacy and comfort for guests, in-laws, or family members who prefer fewer stairs.
The en-suite bathroom enhances convenience, making this room a true retreat on the main level.
Homes with first-floor bedroom suites also tend to see higher property value, which is an important consideration if you’re thinking about a home equity loan or home improvement loans to fund upgrades.

Master Suite Upstairs
The second floor brings a touch of luxury with the master bedroom.
Featuring two walk-in closets and an en-suite bathroom, it’s a space designed for both style and functionality.
One of the layout’s smartest details is direct access from the master suite to the laundry room, reducing the back-and-forth for daily chores.

For anyone thinking about a home loan pre-approval or planning a purchase, the master suite’s thoughtful design adds both comfort and resale value.
Additional Bedrooms and Loft Space
Alongside the master suite, the second floor includes two more bedrooms and a full bathroom.
These rooms are perfect for children, guests, or a home office.

Between the bedrooms and the open loft/play area, the layout encourages interaction while maintaining distinct zones for work, rest, and play.
The loft overlooks the two-story great room, creating a visual connection between floors that enhances the feeling of space and openness throughout the house.
Screened Porch and Outdoor Living
The wraparound porch transitions to a screened porch at the back, accessible from the great room fireplace.

This outdoor space is ideal for entertaining, relaxing, or seasonal decoration.
It enhances the overall floor plan by extending living spaces outdoors while maintaining comfort and protection from the elements.
For anyone considering home insurance or a home warranty, spaces like these add functionality and peace of mind while maintaining the home’s investment potential.

Garage and Utility Spaces
The two-car garage is conveniently connected to the mudroom, supporting a practical flow for daily life.
This feature helps keep the main living areas tidy and organized, while also accommodating vehicles, storage, or workshop needs.
A well-planned garage location complements the overall layout, making daily routines easier and more efficient.

Open Concept Flow and Family Living
From the foyer to the great room, kitchen, and loft, this floor plan emphasizes connectivity while preserving private zones like bedrooms and bathrooms.
The two-story design enhances openness, while flexible spaces such as the flex room and loft allow personalization.

For buyers, this open concept supports both modern living and long-term investment value, whether through home remodeling projects or future updates using home improvement loans.
Why This Floor Plan Works for Families and Entertainers
The 4-bed modern farmhouse plan balances aesthetics and function.

The first-floor bedroom suite accommodates guests, while the second-floor master and additional bedrooms provide privacy and comfort.
The great room and kitchen area encourage communal living, and the loft/play space gives children or adults a dedicated area for activities.
Every square foot of the layout is purposeful, from mudrooms to walk-in closets, creating a home that is both livable and visually appealing.

This modern farmhouse plan is a perfect combination of design, functionality, and comfort.
The two-story great room, wraparound porch, first-floor bedroom suite, and spacious kitchen create an ideal environment for both everyday life and entertaining.
Upstairs, the master suite, loft, and additional bedrooms provide privacy and practicality.

It’s a floor plan designed with families in mind, but also appealing for anyone considering a purchase or investment in a home with long-term value.
Whether you’re thinking about a home loan pre-approval, refinancing a mortgage, or improving the property with a remodeling project, this layout offers options and flexibility at every turn.
From the moment you step onto the porch to the soaring ceilings of the great room and the luxury of the master suite, this 4-bed modern farmhouse plan is a thoughtfully designed home that makes everyday living feel extraordinary.
It’s a layout that encourages family time, entertains with ease, and enhances property value — all while offering the modern comforts today’s homeowners expect.
Building or buying a home isn’t just about picking the perfect house plan—it’s also about making smart long-term choices. From comparing mortgage rates to finding a trustworthy real estate agent, every decision adds value. Don’t forget to explore options like home insurance, home warranties, and potential refinance opportunities to protect your investment.
Want to boost your property value? Consider installing solar panels, upgrading to energy-efficient appliances, or integrating a smart home system. Plus, tools like interior design software can help you visualize and plan your dream space before the first brick is even laid.
Find More House Plans
By Bedrooms:
1 Bedroom • 2 Bedrooms • 3 Bedrooms • 4 Bedrooms • 5 Bedrooms • 6 Bedrooms • 7 Bedrooms • 8 Bedrooms • 9 Bedrooms • 10 Bedrooms
By Levels:
By Total Size:
Under 1,000 SF • 1,000 to 1,500 SF • 1,500 to 2,000 SF • 2,000 to 2,500 SF • 2,500 to 3,000 SF • 3,000 to 3,500 SF • 3,500 to 4,000 SF • 4,000 to 5,000 SF • 5,000 to 10,000 SF • 10,000 to 15,000 SF










