4-Bedroom Dual-Story European Home with Two-Story Library (Floor Plan)

Specifications:
- 4,962 Sq Ft
- 4 Beds
- 4.5+ – 5.5+ Baths
- 2 Stories
- 6 Cars
I’ll admit it: the first time I saw the floor plan for this European estate, I had to pick my jaw up off the floor.
At nearly 5,000 square feet, this home isn’t just a house—it’s practically its own ecosystem.
With four bedrooms, up to five and a half bathrooms, and garage space for six cars, this plan is as much about grand living as it is about everyday comfort.
And if you’ve ever dreamed of a two-story library, a master suite that feels like a private retreat, or even a surprise hidden office, well, you’ve come to the right place.
Let me walk you through the details of this remarkable plan, because honestly, this house deserves a full tour.



The Grand Entrance
Step inside, and you’re greeted by a two-story foyer that sets the tone immediately.
Wide open vistas stretch before you, and the sweeping curved staircase makes you feel like you’ve just walked into a movie scene.
If you’ve ever wondered whether the right property value comes from first impressions, this foyer is proof.
What I love most is how the openness of the foyer flows right into the dining room.
Imagine hosting a holiday dinner here—the backdrop of that staircase practically begs for family photos.
And if you’re worried about mortgage rates while planning that grand dining table, just think of this house as an investment in memories, not just real estate.
A Library That Steals the Show
Let’s be honest: not many homes can boast a two-story library, complete with a fireplace and built-ins.
Here, though, it’s the star of the show.
This isn’t just a place to stash your book collection—it’s a retreat.
Picture yourself curled up with a novel, fireplace glowing, and your cat (or dog) stretched out on the rug.
From a practical side, adding custom touches here with interior design software could make this space uniquely yours.
Maybe floating ladders, cozy nooks, or even a secret passage (who wouldn’t want one?).
And if you’re ever considering a home remodeling contractor, I bet the library would be the first room you’d never want to change.
The Master Suite
Now let’s talk about the master suite.
“Suite” almost undersells it, because this is a full retreat.
With a two-story ceiling, a bayed sitting area, and direct access to a private deck, this space feels like your own personal getaway.
Honestly, you might never leave.
It’s not hard to imagine mornings spent here sipping coffee, scrolling through news about rising or falling mortgage rates, or maybe checking your credit score before refinancing.
With its size and comfort, this suite is the kind of room that convinces you buying isn’t just a purchase—it’s a lifestyle choice.
And when paired with the right home insurance and a reliable home warranty, peace of mind comes built in.
Open Concept Living Done Right
Move into the informal areas, and you’ll see why this layout feels so inviting.
The kitchen opens directly to the morning room and family room, which means you can chop veggies while still keeping an eye on conversations—or the kids’ “creative” uses of furniture.
With today’s smart home technology, you could even check the oven timer with your voice, dim the lights, and lock the doors without leaving the kitchen.
Add in the best home security system, and suddenly this space isn’t just open—it’s smart, too.
This setup also screams “entertainment central.”
And if your real estate agent told you this home was perfect for gatherings, they weren’t exaggerating.
Storage Galore
Any family knows that storage isn’t just a luxury—it’s survival.
This plan gets it, offering a huge mud room and seasonal closet right where you need them.

Picture all the coats, boots, sports gear, and random life clutter tucked neatly away, instead of piling up by the front door.
A building cost estimator might suggest this kind of space adds to the price, but let me tell you: it’s worth every penny.
When you don’t have to trip over shoes every morning, you’ll thank the architect.
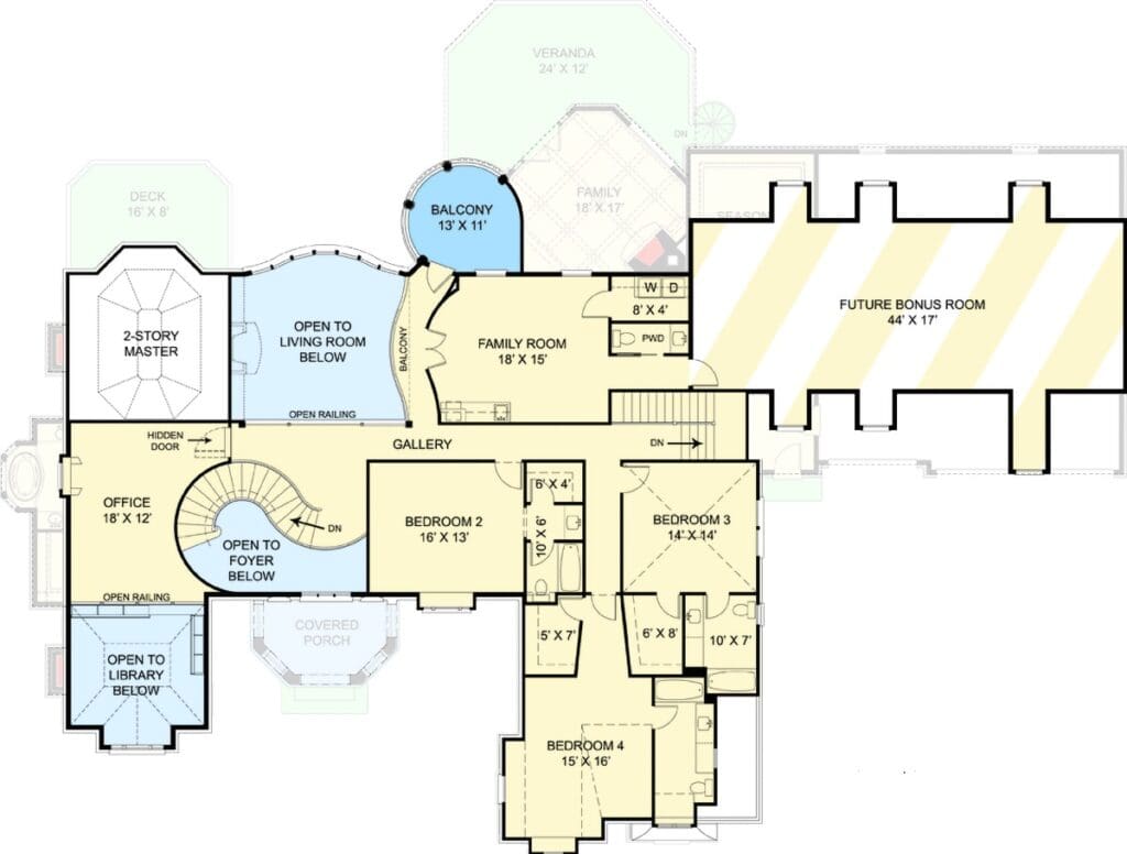
The Balcony Bridge and Hidden Surprises
Head upstairs, and you’re met with a balcony bridge featuring open railings, offering views down into the foyer and living room.
It makes the home feel even bigger, connecting spaces while keeping everything bright and open.
Then comes one of my favorite details: the hidden office.
Through a secret door, you’ll find a workspace that overlooks the library.
It’s private, practical, and just a little bit magical.
If you’re working from home, it’s also proof you don’t need a home equity loan for an office addition—you’ve already got the coolest setup built in.
A Second Floor That Truly Delivers
The upstairs doesn’t stop with the bridge and hidden office.
It has a family room that feels more like a lounge, complete with a wet bar, powder room, and even its own washer/dryer closet.
Honestly, it’s like a mini-apartment tucked into the second story.
From here, you can also access future bonus space, meaning this plan leaves room to grow.
Whether you use that space for a game room, gym, or even an in-law suite, it keeps your options open.
And when the time comes, a home improvement loan could help turn those unfinished dreams into reality.
The Lower Level
As if nearly 5,000 square feet wasn’t enough, this home offers a whopping 3,457 square feet of unfinished lower level space.
That’s practically another house waiting to happen.
Want a home theater, gym, wine cellar, or all three?
You’ve got the room.
It’s also a great way to boost your property value down the road.
Finishing the lower level with a trusted home remodeling contractor could turn your home into the talk of the neighborhood.
And if you’re thinking long-term, it makes your investment even stronger.
This European home plan is more than just a structure—it’s a statement.
With its dramatic foyer, two-story library, master retreat, open living areas, and endless potential in the lower level, it blends elegance with livability in a way few homes do.
Whether you’re thinking of this as your forever home or part of a smart purchase for the future, it checks every box.
Sure, you’ll want to factor in mortgage rates, maybe consider a refinance mortgage down the line, and talk to a real estate agent about the details.
But when you’ve got a floor plan like this, it’s hard to see it as anything other than the best kind of investment.
Add in solid home insurance, a good home warranty, and maybe even the latest smart home technology, and you’ll be set for years of comfort and style.
If you’re lucky enough to buy this home, you’re not just getting four bedrooms and six garage bays—you’re getting a lifestyle wrapped in architectural beauty.
And that, my friends, is priceless.
Building or buying a home isn’t just about picking the perfect house plan—it’s also about making smart long-term choices. From comparing mortgage rates to finding a trustworthy real estate agent, every decision adds value. Don’t forget to explore options like home insurance, home warranties, and potential refinance opportunities to protect your investment.
Want to boost your property value? Consider installing solar panels, upgrading to energy-efficient appliances, or integrating a smart home system. Plus, tools like interior design software can help you visualize and plan your dream space before the first brick is even laid.
Find More House Plans
By Bedrooms:
1 Bedroom • 2 Bedrooms • 3 Bedrooms • 4 Bedrooms • 5 Bedrooms • 6 Bedrooms • 7 Bedrooms • 8 Bedrooms • 9 Bedrooms • 10 Bedrooms
By Levels:
By Total Size:
Under 1,000 SF • 1,000 to 1,500 SF • 1,500 to 2,000 SF • 2,000 to 2,500 SF • 2,500 to 3,000 SF • 3,000 to 3,500 SF • 3,500 to 4,000 SF • 4,000 to 5,000 SF • 5,000 to 10,000 SF • 10,000 to 15,000 SF










