4-Bedroom 2-Story Transitional New American House with Outdoor Kitchen (Floor Plan)

Specifications:
- 3,496 Sq Ft
- 4 Beds
- 4.5 Baths
- 2 Stories
- 3 Cars
Every once in a while, a house plan comes along that makes you stop mid-scroll and whisper, “That’s the one.”
For me, this 4-bed Transitional New American home is exactly that.
With 3,496 square feet of carefully crafted living space, 4.5 baths, and a 3-car garage tucked neatly to the side, it’s the perfect blend of modern charm and timeless comfort.
It’s the kind of place where you can imagine your life unfolding—morning coffee in the outdoor kitchen, family movie nights in the media room, and that satisfying feeling of having truly found home.


A Grand Welcome Home
Stepping through the covered entry feels like entering a world where every square foot has been designed with intention.
The foyer opens up to a sweeping gathering room, a space that instantly feels warm and inviting.
I can already picture a cozy sectional, a crackling fireplace, and maybe a smart thermostat keeping things perfectly comfortable.
The openness of the design allows light to flood in, giving the whole space that airy, “just-right” feeling.
And for anyone thinking about long-term investment, this home’s curb appeal and modern design elements are the kind that keep property value strong for years to come.
A good real estate agent would probably call it “a future classic.”
Cooking, Dining, and Living—All in Sync
The kitchen is the heart of this home, and it doesn’t disappoint.
Positioned right at the center, it offers plenty of counter space, a walk-in pantry, and easy flow into both the dining room and the gathering area.
Whether you’re whipping up a quick breakfast or experimenting with something new you saw on your favorite cooking show, it’s a dream setup.
Imagine using a bit of interior design software to visualize the perfect backsplash or cabinet finish—it’s like turning your culinary imagination into a blueprint.
And if you’re keeping an eye on the building cost estimator during construction, you’ll love how this plan maximizes every inch without wasting space.
The nearby dining room opens to the outdoor living area, where there’s even a built-in grill.

That’s right—a full outdoor kitchen setup where you can host everything from summer barbecues to late-night marshmallow roasting.
With smart home technology, you could even control the lighting, speakers, and security cameras with just a few taps on your phone.
Outdoor Living That Doubles as a Retreat
Let’s talk about that outdoor living space for a second.
It’s 21 feet wide, covered, and designed for maximum relaxation.
I can picture comfy patio furniture, a string of lights overhead, and maybe even a small water feature for that calming ambiance.
Whether it’s hosting friends or just soaking in some quiet time, this area turns everyday moments into something special.
And with today’s mortgage rates and home equity loan options, investing in a home that includes premium outdoor living is more attainable than ever.
It’s not just about buying a house—it’s about buying the kind of lifestyle you’ve always wanted.
The Dream Primary Suite
Moving to the right side of the floor plan, the primary suite is where comfort meets sophistication.
It’s tucked away for privacy and feels like a retreat within the retreat.
The primary bath is pure spa vibes—dual vanities, a freestanding tub, and a walk-in shower that could fit a small army (or just you and your thoughts).
The wardrobe space is huge, offering plenty of room for even the most ambitious clothing collections.

This is the kind of suite that makes you feel like you’re on vacation every day.
And with home insurance and a solid home warranty, you can relax knowing your investment is protected from the unexpected.
Functionality Hidden in Plain Sight
I love how this house plan integrates practicality without sacrificing beauty.
Near the kitchen, you’ll find a mudroom, laundry area, and flex room—which could easily become a home office, guest bedroom, or even a small gym.
The pantry sits conveniently between the kitchen and mudroom, making unloading groceries a breeze.
If you’re thinking ahead, this layout keeps your daily flow effortless.
No back-and-forth juggling.
Just smooth transitions and logical placement—something every home remodeling contractor appreciates when they see a well-thought-out design.
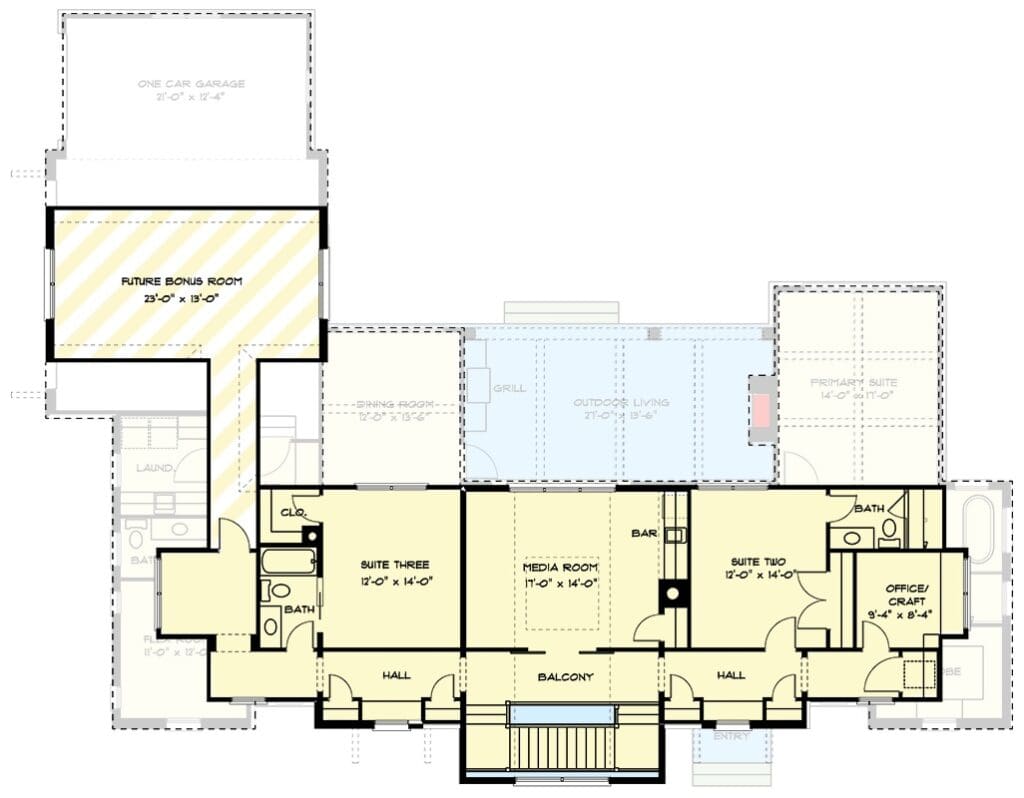
Upstairs
Head upstairs, and the layout continues to impress.
You’ll find Suite Two and Suite Three, both spacious with their own private baths—perfect for kids, guests, or that friend who always overstays their welcome.
Between them sits a media room, the kind of space that screams “movie night.”
Add in a projector, a popcorn machine, and maybe the best home security system to keep everything safe, and you’ve got a personal entertainment hub right at home.
I love how the second floor balances personal privacy with shared experiences.

The balcony overlooking the main level adds a touch of grandeur, while the nearby office/craft room is the perfect nook for creativity or quiet work-from-home days.
There’s even a bar near the media room—because why walk downstairs when you can refill your glass right where the action is?
The Future Bonus Room
At the far end of the upper level sits a future bonus room over the garage.
Measuring 23 by 13 feet, it’s a blank canvas waiting for your imagination.
You could turn it into a home gym, a teen lounge, or even a rental suite if you’re feeling entrepreneurial.
It’s the kind of space that adds flexibility—and value—to your purchase.
And if you’re running numbers with your home loan pre-approval in hand, having expandable space like this makes the plan even more appealing.
It’s future-proofing your investment, plain and simple.
The Garage and Beyond
Speaking of the garage—it’s no afterthought.
With space for three cars (a 2-car and a 1-car section), there’s plenty of room for vehicles, storage, or even a workshop.
The side-entry configuration keeps the front façade clean and uncluttered, which boosts property value and curb appeal.
If you ever decide to buy or sell in the future, that thoughtful layout will pay off big time.

And let’s not forget: if you ever need to refinance your mortgage, owning a house with this kind of smart design and adaptability can make the process a lot smoother.
It’s all about building a home that works as hard for you as you do for it.
Built for the Way We Actually Live
What makes this 4-bed Transitional New American house plan stand out isn’t just its size or features—it’s the way it anticipates real life.
From the everyday routines to the “what-if” moments, every inch of this 3,496-square-foot design feels intentional.
Need to work from home?
There’s an office ready to go.
Want to host family gatherings?
The open-concept living areas make entertaining effortless.
Planning to stay here long-term?
The main-level primary suite ensures you can age gracefully in place.
And when it’s time for a little home improvement loan project—say upgrading appliances or adding solar panels—this home is ready to adapt.
At the end of the day, this home isn’t just beautiful—it’s practical, future-ready, and brimming with personality.
With its blend of cozy warmth and cutting-edge convenience, it’s a dream for anyone looking to buy not just a house, but a lifestyle.

It’s the kind of place that makes you proud to invite people over, whether it’s for backyard barbecues, movie marathons, or quiet evenings spent under the stars.
If I had to sum it up?
This Transitional New American beauty is the perfect marriage of heart and design.
It’s smart, it’s stylish, and it’s ready for whatever life throws your way—whether that’s new technology, changing mortgage rates, or even just your next big idea.
In every way that matters, it’s home.
Building or buying a home isn’t just about picking the perfect house plan—it’s also about making smart long-term choices. From comparing mortgage rates to finding a trustworthy real estate agent, every decision adds value. Don’t forget to explore options like home insurance, home warranties, and potential refinance opportunities to protect your investment.
Want to boost your property value? Consider installing solar panels, upgrading to energy-efficient appliances, or integrating a smart home system. Plus, tools like interior design software can help you visualize and plan your dream space before the first brick is even laid.
Find More House Plans
By Bedrooms:
1 Bedroom • 2 Bedrooms • 3 Bedrooms • 4 Bedrooms • 5 Bedrooms • 6 Bedrooms • 7 Bedrooms • 8 Bedrooms • 9 Bedrooms • 10 Bedrooms
By Levels:
By Total Size:
Under 1,000 SF • 1,000 to 1,500 SF • 1,500 to 2,000 SF • 2,000 to 2,500 SF • 2,500 to 3,000 SF • 3,000 to 3,500 SF • 3,500 to 4,000 SF • 4,000 to 5,000 SF • 5,000 to 10,000 SF • 10,000 to 15,000 SF










