4-Bedroom 2-Story Rustic Country Home with Wraparound Porch (Floor Plan)

Specifications:
- 3,380 Sq Ft
- 3 – 4 Beds
- 3.5 Baths
- 2 Stories
- 3 Cars
When I first saw this rustic country home plan, I knew it was something special.
With 3,380 square feet, 3 to 4 bedrooms, 3.5 baths, and a 3-car garage, this house combines country charm with practical, modern design.
From the wraparound porch to the upstairs bunk room, every detail in the floor plan is meant to enhance daily living.
Let’s take a room-by-room tour so you can picture yourself moving in.


Welcoming Foyer and Guest Bedroom/Office
Stepping onto the front porch, I can imagine greeting friends while enjoying a quiet morning coffee.
Entering the foyer, the layout immediately feels open yet welcoming.

To the right, the guest bedroom—or office, depending on your needs—is perfectly positioned for privacy.
It’s convenient for visiting family, or even for remote work if your real estate agent drops by to discuss property value or investment opportunities.
This placement also allows natural separation from the main living spaces while remaining easily accessible.

Vaulted Great Room with Fireplace
To the left of the foyer, the vaulted great room opens up with a sense of grandeur without feeling overwhelming.
The fireplace anchors the room beautifully, creating a cozy focal point for gatherings.

The floor plan ensures the great room flows directly into the dining area and kitchen, making it easy to entertain or keep an eye on family while preparing meals.
I can also picture using smart home technology to control lighting or the thermostat here, blending modern convenience with rustic charm.

Dining Area and Kitchen Layout
The dining room sits between the great room and the kitchen, offering a natural transition from relaxing to dining.
The kitchen itself is thoughtfully designed, featuring generous counter space, an island with an eat-at bar, and a large walk-in pantry.

The floor plan makes it easy to move from cooking to dining, or from the pantry to the refrigerator during busy meal prep.
For homeowners considering a home loan pre-approval or tracking mortgage rates, kitchens like this make the home feel worth every penny.

Master Suite Floor Plan
The master suite is tucked away for privacy, featuring sliding patio doors that lead to outdoor views.
The master bath is spacious, with separate vanities, a free-standing tub, a shower with a built-in seat, and a private toilet room.

The walk-in closet is large enough to double as a safe room and provides direct access to the laundry area.
This thoughtful design ensures daily routines flow smoothly and highlights the efficiency built into the floor plan.
A home security system could be integrated here seamlessly, adding peace of mind without altering the home’s design.

Access and Storage Near the Garage
One detail I love in this floor plan is the large closet located by the garage entry.
This practical addition keeps coats, shoes, and seasonal items organized without cluttering living spaces.

With a three-car garage, the layout supports both vehicles and storage needs, making the home highly functional.
It also creates an efficient transition between the garage, laundry room, and kitchen—a design choice that balances comfort with everyday practicality.

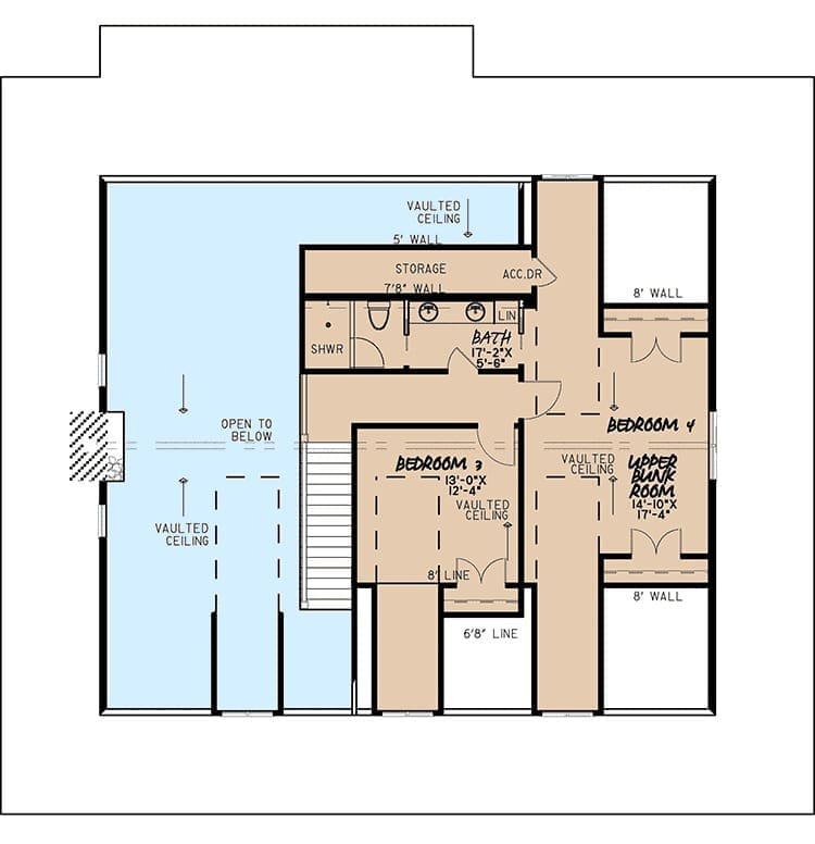
Upstairs Bedroom Layout
The second story includes two bedrooms, one of which is perfect for bunk beds or a teen suite.
This upstairs layout maximizes space while maintaining privacy for each room.

The floor plan makes the larger bedroom ideal for kids or guests, while the smaller room can serve multiple purposes—office, hobby space, or guest room.
The placement and sizing of these rooms show how the floor plan supports flexibility as your family grows or as needs change over time.

Flow and Connectivity Throughout the Home
One of the strongest features of this floor plan is the way it connects spaces while maintaining clear boundaries.
The open concept from the great room to the kitchen encourages interaction and keeps the home feeling airy.

At the same time, private areas like the master suite, guest bedroom, and upstairs rooms are separated to ensure privacy.
This balance is key for families or anyone planning for home remodeling or future upgrades.
Thoughtful planning like this can even increase property value and make it easier to secure home improvement loans.

Outdoor and Porch Integration
The wraparound porch isn’t just for aesthetics—it’s fully integrated into the floor plan.
Sliding doors from the master suite open directly onto the porch, creating a natural extension of indoor living.

This design enhances the sense of space and allows for versatile outdoor activities.
Whether it’s entertaining guests, enjoying a quiet morning, or adding smart home-controlled outdoor lighting, the porch’s placement in the floor plan maximizes both functionality and charm.

Practical Spaces for Daily Living
Other practical features of the floor plan include the direct access from the master suite to the laundry room, and the strategic location of closets near high-traffic areas.
These thoughtful touches make everyday tasks easier and reduce clutter.

For anyone thinking about home equity loans or refinancing a mortgage, a well-organized floor plan like this adds tangible value to the home.
It’s the kind of design that makes living here effortless, efficient, and enjoyable.
Bunk Room and Multi-Purpose Upstairs Space
The upstairs bunk room is a highlight for families or anyone seeking flexible sleeping arrangements.

Its size and location make it easy to configure for multiple beds, or even convert into a playroom, study, or media area.
This addition reinforces the home’s versatility and allows future adjustments without major remodeling.
A home remodeling contractor could easily adapt this space if needs change over time, making it a smart long-term investment.
From the foyer to the upstairs bedrooms, every aspect of this floor plan is intentional.

The layout balances open spaces with private areas, integrates storage and functional zones, and incorporates opportunities for modern amenities like smart home technology.
The wraparound porch, vaulted great room, and master suite with spa-like bath all highlight how the floor plan combines charm with practical living.
Whether you’re looking to buy, considering a home warranty, or planning home improvement projects, this house plan provides a strong foundation for both lifestyle and investment.

With careful attention to flow, accessibility, and room placement, it’s clear that every square foot was thoughtfully considered.
This rustic country home plan proves that functionality and charm can coexist beautifully.
Every room, from the guest bedroom and office to the bunk room upstairs, serves a purpose and enhances the overall living experience.

The open-concept areas encourage interaction, while private spaces ensure comfort.
From sliding patio doors to a wraparound porch, the floor plan invites you to enjoy both indoor and outdoor living.
It’s a design that accommodates today’s needs while offering flexibility for tomorrow—perfect for families, entertainers, or anyone seeking a balance between rustic aesthetics and modern convenience.
With 3,380 square feet, 3 to 4 bedrooms, and a thoughtful layout, this floor plan is more than just a blueprint; it’s a home built for living.
Building or buying a home isn’t just about picking the perfect house plan—it’s also about making smart long-term choices. From comparing mortgage rates to finding a trustworthy real estate agent, every decision adds value. Don’t forget to explore options like home insurance, home warranties, and potential refinance opportunities to protect your investment.
Want to boost your property value? Consider installing solar panels, upgrading to energy-efficient appliances, or integrating a smart home system. Plus, tools like interior design software can help you visualize and plan your dream space before the first brick is even laid.
Find More House Plans
By Bedrooms:
1 Bedroom • 2 Bedrooms • 3 Bedrooms • 4 Bedrooms • 5 Bedrooms • 6 Bedrooms • 7 Bedrooms • 8 Bedrooms • 9 Bedrooms • 10 Bedrooms
By Levels:
By Total Size:
Under 1,000 SF • 1,000 to 1,500 SF • 1,500 to 2,000 SF • 2,000 to 2,500 SF • 2,500 to 3,000 SF • 3,000 to 3,500 SF • 3,500 to 4,000 SF • 4,000 to 5,000 SF • 5,000 to 10,000 SF • 10,000 to 15,000 SF










