4-Bedroom 2-Story Mountain Ranch Home with Spectacular Rear Views (Floor Plan)

Specifications:
- 5,144 Sq Ft
- 4 Beds
- 4.5 Baths
- 2 Stories
- 3 Cars
There’s something magical about stepping into a home that feels both grand and grounded.
This Mountain Ranch with Spectacular Rear Views—spanning 5,144 square feet—does just that.
With four bedrooms, four and a half baths, and a layout that embraces nature at every turn, this plan takes mountain living and gives it a luxurious twist.
From its cedar trusses to its spacious porches and open interiors, every inch of this home celebrates light, space, and that unbeatable view.
Stay Tuned: Detailed Plan Video Awaits at the End of This Content!


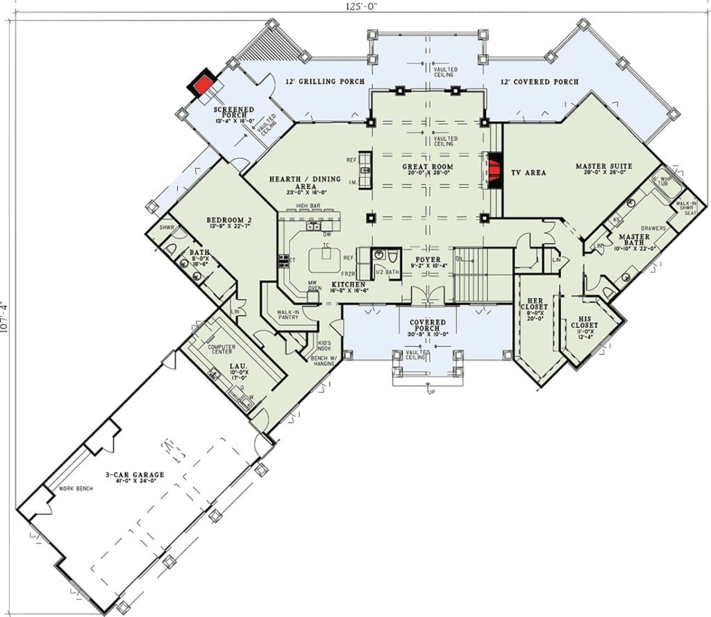
A Welcoming Entry with Rustic Charm
The moment I walk up to the front porch, those rustic columns and cedar trusses set the tone for what’s inside—warmth, craftsmanship, and connection to nature.
The entryway opens to a foyer that isn’t just an in-between space; it’s a quiet prelude to the breathtaking great room beyond.
The flow here is intentional, guiding you straight to that rear view that makes your heart skip a beat.

Even before reaching the main living areas, you can sense how this home is designed for both comfort and conversation.
The open lines of sight, the high ceiling above, and the balanced proportions make this space feel effortlessly elegant.
It’s not showy—it’s natural sophistication, the kind that keeps property value rising for years to come.

The Great Room
The great room is the heart of this mountain ranch, and it’s nothing short of spectacular.
A vaulted ceiling soars overhead, framing the mountain view through massive glass panels.
It’s the kind of space that makes you instinctively want to slow down, sink into a soft sofa, and let your worries melt away.

I love how the open layout creates a natural flow to the kitchen and hearth area.
It’s perfect for entertaining friends or just catching up on life over coffee.
Imagine gathering here on a cool evening, a fire crackling nearby, and that view stretching endlessly beyond the glass.
The open design doesn’t just make the home feel larger—it makes it feel limitless.

And yes, I can already imagine adding smart home technology here—automated blinds, lighting that shifts with the sunset, maybe even a sound system that fills the room with soft mountain acoustics.
All of it makes this great room feel alive, modern, and practical—a perfect blend of beauty and brains.
The Kitchen and Hearth
In this floor plan, the kitchen doesn’t hide—it stands proud as the social hub of the house.

With its seamless connection to the hearth and dining area, the space practically invites everyone to gather around.
Whether it’s a casual breakfast or a weekend dinner party, everything happens here.
I’d imagine designing the kitchen layout using interior design software—choosing finishes that echo the rustic beams overhead while adding sleek modern touches.
The counters would be generous, the storage thoughtful, and the view, once again, spectacular.

You could be chopping vegetables or checking your home warranty paperwork—either way, that rear view has your back.
The hearth area brings warmth to the plan, literally and emotionally.
It’s that cozy nook where conversations stretch long after dessert.
And when you step out to the screened porch from here, you realize just how beautifully this home connects indoors and out.

Outdoor Living, Year-Round
Ah, the screened porch—the dream space that makes every day feel like a getaway.
It extends directly from the hearth and kitchen, making it ideal for both family dinners and quiet morning coffees.
The cedar trusses carry the rustic theme outside, and with the mountains as a backdrop, it’s hard not to fall in love.

This porch is more than just a bonus feature; it’s an extension of the home’s lifestyle.
With the right setup, maybe even a best home security system for peace of mind, you can enjoy evenings under string lights or lazy afternoons listening to rain without worry.
And yes, this kind of outdoor space always adds to your property value.

The Master Suite
If the great room is the heart, the master suite is the soul of this floor plan.
Located on the main level, it captures those breathtaking rear views perfectly.
Imagine waking up and seeing mist rolling over the mountains right from your bed.

That’s not a vacation—that’s every day.
The bedroom flows into a luxurious master bath, complete with room for a freestanding tub and a spacious walk-in shower.
It’s private, serene, and clearly designed to spoil you just a little.
I can already picture personalizing it with modern fixtures and soft lighting—a perfect retreat after a long day.

Having a master suite like this isn’t just about comfort—it’s also smart planning.
It supports home equity loan value and adds long-term appeal for future buyers.
Even real estate agents would tell you: a master suite with a view is one of the strongest investment points in any property.

Hospitality Done Right
Also on the main floor is a lovely secondary suite, giving guests or family their own private haven.
It’s spacious, sunny, and versatile—it could easily serve as a grandparent’s room, a home office, or a creative studio.
The private bath ensures everyone has their space without crowding the main living areas.

If you ever decide to refinance your mortgage for a few updates, this room could be the perfect area to remodel.
A trusted home remodeling contractor could help turn it into a mini suite with sitting space or even a small kitchenette for added flexibility.
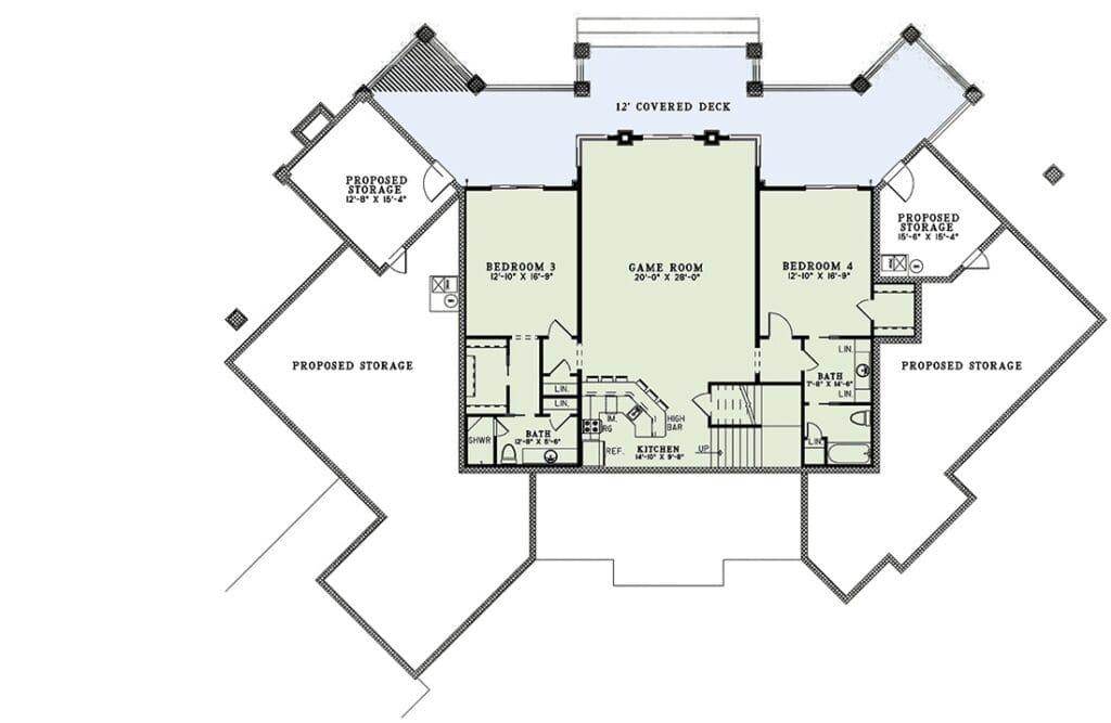
The Ultimate Gathering Spot
Downstairs, the floor plan opens into an enormous game room—one that could make even the most serious adult grin like a kid again.

It’s the perfect place for pool tables, home theaters, or game nights that go on forever.
The best part?
Like every major room in this plan, it faces the rear view, keeping nature as the backdrop to every laugh and conversation.
Two additional bedroom suites occupy this level, each with private baths.

These rooms make hosting easy—no more giving up your space for guests.
It’s a thoughtful touch that turns the lower level into a complete living space on its own.
If you’re using a building cost estimator to plan, you’ll appreciate how efficiently the space is designed—no wasted corners, just pure function and fun.
And if you ever buy this house as a mountain getaway, you’ll have plenty of room for everyone without losing privacy.

Storage and Style in One
This floor plan’s three-car garage isn’t just a parking area—it’s a well-integrated part of the home.
Positioned for easy access and balance, it offers room for vehicles, outdoor gear, and even a small workshop.
The entry into the house from here keeps daily life simple and clean.

It’s the kind of practical feature that adds long-term home insurance value and everyday convenience.
Plus, if you’re into home improvement loans, finishing part of the garage with storage systems or hobby spaces could make it even more functional.
A Floor Plan Built for Balance
What I love most about this mountain ranch floor plan is how balanced it feels.

Every level, every room, has been designed to make sense—not just visually but practically.
The main floor offers easy living and flow; the lower level provides privacy and fun.
The porches connect you to nature, while the vaulted ceilings lift your spirit every time you walk in.

If you’re getting a home loan pre-approval or working with a real estate agent to purchase the perfect mountain retreat, this plan should be at the top of your list.
Its thoughtful design, breathtaking rear views, and smart use of space make it a rare combination of beauty and brains.
And when you think about mortgage rates and the long-term investment potential of a home like this, it’s easy to see why this plan stands out.

It’s not just about having a place to live—it’s about living somewhere that feels inspired every single day.
This Mountain Ranch with Spectacular Rear Views isn’t just a floor plan—it’s a lifestyle blueprint.
Every square foot, from the vaulted great room to the game-filled lower level, feels intentional.
With 5,144 square feet of smart design and mountain soul, it’s the kind of home that keeps calling you back—whether for peace, laughter, or that view that never stops being spectacular.
Building or buying a home isn’t just about picking the perfect house plan—it’s also about making smart long-term choices. From comparing mortgage rates to finding a trustworthy real estate agent, every decision adds value. Don’t forget to explore options like home insurance, home warranties, and potential refinance opportunities to protect your investment.
Want to boost your property value? Consider installing solar panels, upgrading to energy-efficient appliances, or integrating a smart home system. Plus, tools like interior design software can help you visualize and plan your dream space before the first brick is even laid.
Find More House Plans
By Bedrooms:
1 Bedroom • 2 Bedrooms • 3 Bedrooms • 4 Bedrooms • 5 Bedrooms • 6 Bedrooms • 7 Bedrooms • 8 Bedrooms • 9 Bedrooms • 10 Bedrooms
By Levels:
By Total Size:
Under 1,000 SF • 1,000 to 1,500 SF • 1,500 to 2,000 SF • 2,000 to 2,500 SF • 2,500 to 3,000 SF • 3,000 to 3,500 SF • 3,500 to 4,000 SF • 4,000 to 5,000 SF • 5,000 to 10,000 SF • 10,000 to 15,000 SF










