4-Bedroom 2-Story Modern Farmhouse with Great Symmetry (Floor Plan)

Specifications:
- 3,740 Sq Ft
- 4 Beds
- 3.5+ Baths
- 2 Stories
- 3 Cars
Let me just say, this Modern Farmhouse plan isn’t just a house—it’s a statement.
With 3,740 square feet of perfectly balanced space, it’s the kind of home where symmetry makes you feel calm the moment you step onto the 7-foot-deep front porch.
Honestly, it’s the kind of place that makes you excited about checking mortgage rates just so you can finally make it yours.


A Symmetrical Masterpiece You’ll Love
The exterior is a perfect blend of board and batten and clapboard siding, giving it that classic yet contemporary charm.
Those reversed gables on either side of the front porch are more than decorative—they create a rhythm that immediately draws your eyes, which makes it feel just right the second you pull up.
And yes, the functioning windows above the porch?
They’re like little extras that make the house feel alive, perfect for letting in natural light or checking the weather without leaving the comfort of your porch swing.
For anyone thinking about a property investment, this kind of design detail can seriously boost property value.
Spacious, Thoughtful Floor Plan
At 3,740 square feet spread across two stories plus a bonus area, this house gives you plenty of room to live, play, and work from home without bumping elbows.
The first floor alone offers 2,795 square feet of open-concept living, ideal for entertaining or even remodeling.
I can already imagine upgrading the kitchen with smart home technology or using interior design software to create the perfect layout before even calling a home remodeling contractor.
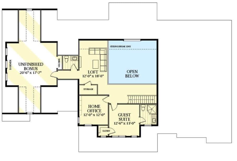
The second floor, with 945 square feet, holds the bedrooms, giving privacy without feeling disconnected.
And the bonus space?
632 square feet that could be anything from a home office to a media room—perfect for a home improvement loan project if you want to add extra flair.
A Garage That Actually Fits Your Life
Three cars, 787 square feet, attached, and with side entry—finally, a garage that doesn’t feel like a tight squeeze.
Whether you’re buying your first home or refinancing a mortgage, having a garage that accommodates vehicles, bikes, or even a small workshop makes life exponentially easier.
Plus, the attached design means no more awkward walks through snow or rain—a small convenience that adds immeasurably to property value.
And if security is a priority, this is a great spot to install the best home security system, giving peace of mind while you enjoy the modern farmhouse charm.
Bedrooms Designed for Comfort
Four bedrooms might seem standard, but in this plan, they’re anything but.
Each bedroom is thoughtfully sized, with full bathrooms totaling three and two additional half baths sprinkled through the plan.
This layout gives you flexibility—guest rooms, office spaces, or even a workout room.
Considering a home equity loan to upgrade one of these spaces?
Go for it—investing in thoughtful upgrades here can significantly impact both your comfort and property value.
Plus, a smart home technology setup in the bedrooms adds convenience and a modern touch that any tech enthusiast would appreciate.
Bathrooms That Make Life Easier
Three full bathrooms and two half baths mean no morning traffic jams, which is critical if you’re juggling work, family, or a budding social life.
The luxurious layouts also make these spaces perfect for upgrading with home improvement loans or hiring a home remodeling contractor for a spa-like feel.
Each bath can be a retreat, and with a little interior design software magic, you can see how new finishes or smart fixtures might look before committing—because why risk a poor design when your credit score and home loan pre-approval are already lined up for your dream home?
Porches That Invite Relaxation
Two porches give you options: 235 square feet in the front and a generous 659 square feet in the rear.
The front porch, perfect for a morning coffee or a chat with neighbors, brings in a sense of community.
Meanwhile, the rear porch is a prime candidate for entertaining guests, hosting a summer barbecue, or even enjoying a quiet evening under the stars.
This kind of outdoor space, coupled with thoughtful landscaping, can directly enhance property value while making your home feel like an everyday retreat.
Functional Spaces for Real Life
A 222-square-foot workshop adds a functional touch that many buyers overlook.
Whether you’re into woodworking, home improvement projects, or need storage for seasonal gear, this space can accommodate it all.
For anyone considering a home equity loan or home improvement loan, the workshop is a smart way to invest in your home without altering its clean aesthetic.
And if you’re tech-savvy, integrating smart home technology here can automate lighting, climate, or security—turning a practical space into a cutting-edge feature.
Open Living Areas for Family and Friends
The open-concept layout makes the living, dining, and kitchen areas flow naturally.

I can already picture family gatherings where no one feels cramped, while still maintaining an elegant, modern farmhouse aesthetic.
For buyers looking to purchase, these spaces make entertaining effortless, and the layout is perfect for interior design software experimentation if you want to explore furniture arrangements or accent walls before committing.
Kitchens That Inspire Creativity
The kitchen isn’t just a place to cook—it’s the hub of modern life.
With plenty of counter space and room for a kitchen island, this design allows you to channel your inner chef or host weekend brunches with friends.
Considering a home remodeling contractor for upgrades?
Smart appliances and high-end finishes can turn this into a centerpiece, increasing both enjoyment and long-term property value.
A strategically planned kitchen can even improve your home insurance profile by reducing risks associated with outdated appliances or poor layouts.
Bonus Spaces That Grow With You
The 632-square-foot bonus room can transform depending on your lifestyle.
Need a home office to manage work and personal projects?
Done.
Dreaming of a media room for movie nights?
Absolutely.
The flexibility of this space makes it a prime candidate for a home improvement loan if you want to fully customize it.
From a purchase standpoint, having adaptable spaces increases resale value while giving you room to grow as your family or hobbies expand.
Investment-Friendly Design
Let’s talk about real-world practicality: this modern farmhouse plan is not just a home—it’s an investment.
With balanced aesthetics, flexible living spaces, and a garage that handles your lifestyle, it’s built to appeal to future buyers as well.
Smart homeowners often use home equity loans or home remodeling contractor services to boost property value even further.
And if you’re buying now, making sure your credit score aligns with your home loan pre-approval can save thousands over time, especially if you plan to refinance a mortgage later.
The Practical Side of Luxury
I’d be remiss not to mention the logistical benefits.
Three-car garage, multiple porches, workshop, bonus room—all wrapped up in 3,740 square feet that balance function and style.
Using building cost estimators, homeowners can realistically budget for upgrades without feeling overwhelmed.
And if you’re concerned about protecting your investment, home insurance and a home warranty are smart moves.
It’s rare to find a property where convenience, aesthetics, and investment potential align so neatly, but this Modern Farmhouse plan nails it.
From the curb appeal that turns heads to the smart, functional interiors that make daily life a joy, this exclusive modern farmhouse plan is a perfect blend of style and practicality.
Whether you’re ready to purchase, thinking about how to best use home improvement loans, or already planning to refinance a mortgage down the road, every inch of this home feels intentional.
The mix of classic board-and-batten charm with modern conveniences like smart home technology makes it a standout investment in any market.
Owning a home like this isn’t just about square footage—it’s about creating a lifestyle.
A lifestyle where mornings on the front porch are peaceful, evenings in the rear porch are relaxing, and the rest of your time is spent enjoying spaces designed for both comfort and elegance.
Every detail—from the garage to the bonus room—is crafted to make life easier, more beautiful, and ultimately more enjoyable.
And let’s face it, when your real estate agent shows this house to prospective buyers, the property value practically sells itself.
This isn’t just a house; it’s a smart investment, a personal sanctuary, and a playground for your lifestyle, all rolled into one beautifully symmetrical modern farmhouse.
And honestly?
It might just be the kind of home that makes checking mortgage rates exciting instead of stressful.
Building or buying a home isn’t just about picking the perfect house plan—it’s also about making smart long-term choices. From comparing mortgage rates to finding a trustworthy real estate agent, every decision adds value. Don’t forget to explore options like home insurance, home warranties, and potential refinance opportunities to protect your investment.
Want to boost your property value? Consider installing solar panels, upgrading to energy-efficient appliances, or integrating a smart home system. Plus, tools like interior design software can help you visualize and plan your dream space before the first brick is even laid.
Find More House Plans
By Bedrooms:
1 Bedroom • 2 Bedrooms • 3 Bedrooms • 4 Bedrooms • 5 Bedrooms • 6 Bedrooms • 7 Bedrooms • 8 Bedrooms • 9 Bedrooms • 10 Bedrooms
By Levels:
By Total Size:
Under 1,000 SF • 1,000 to 1,500 SF • 1,500 to 2,000 SF • 2,000 to 2,500 SF • 2,500 to 3,000 SF • 3,000 to 3,500 SF • 3,500 to 4,000 SF • 4,000 to 5,000 SF • 5,000 to 10,000 SF • 10,000 to 15,000 SF










