4-Bedroom 2-Story Modern Farmhouse With Bonus Room and Side-Entry 3-Car Garage (Floor Plan)

- 3,728 sq. ft.
- 4 Beds
- 3.5 Baths
- 2 Stories
- 3 Cars
Let me just say this upfront—I’ve seen a lot of house plans.
And while I may not be a licensed real estate agent, I know a keeper when I see one.
This modern farmhouse?
Oh, it’s not just a place to live. It’s the kind of home that makes you want to refinance your mortgage just to call dibs on it.
It checks all the right boxes: charm, space, functionality, and that oh-so-alluring wraparound porch life we all secretly crave.


Big Dreams Begin on the Front Porch
Let’s start at the beginning—literally. The front porch on this modern farmhouse is not your typical “just for show” porch. It’s wide, welcoming, and pretty much demands you enjoy your morning coffee on a rocking chair while the dog naps at your feet.
The elegant structure gives this house major curb appeal, and if you’re thinking of future property value, this is a major win. You’re not just buying a home—you’re investing in an architectural statement.

Step inside and you’re greeted by 10’ ceilings that expand into soaring two-story heights in the foyer and the family room.
Now, if you’re like me and have ever tried to estimate what it might cost to build something this grand, you’ve probably already Googled “building cost estimator.” Spoiler: it’s worth every penny.

Kitchen Goals and Cozy Fireside Vibes
Let’s move into the kitchen, shall we? This is where the magic happens. And I’m not just talking about pancakes and midnight snacks.
We’re talking open layout magic. The family room, dining, and kitchen flow together effortlessly, so you’re never isolated while trying to whip up dinner.

The island sink faces forward toward the living room, which means you can keep an eye on your kids, the fireplace, and whatever show is streaming on your smart home technology setup—all at once.
You’ve also got a walk-in food pantry and a butler’s pantry. I mean, do I even need to explain how rare and glorious that combo is?

It’s like having two extra secret rooms where your snacks and holiday serving dishes go to party.
And speaking of fire, the family room boasts a big fireplace flanked by built-ins—perfect for displaying that designer vase you bought during a home improvement loan-funded spree, or maybe just a framed photo of the dog. I don’t judge.

A Study With Pocket Doors? Yes, Please.
Tucked away off the main hallway is the study, complete with elegant pocket doors that you can close when you need quiet. This space is ideal for working from home, reading, or hiding from your in-laws when they stop by unexpectedly.
Trust me, a room like this adds serious functionality—and increases the property value while we’re at it.

You could even use interior design software to plan the perfect layout in here—bookshelves, a comfy reading chair, perhaps a giant map of the world to dream about all the trips you’ll take when the mortgage is finally paid off.
Bedrooms That Mean Business
Now let’s talk about bedrooms. Every single one of them has a walk-in closet. That’s right—no fighting over closet space in this house. This feature is not just a luxury; it’s an actual lifestyle upgrade.

Whether you’re organizing clothes by color (guilty!) or hiding those Amazon purchases you definitely didn’t tell your spouse about, these closets are up for the job.
The primary master suite is located on the first floor and comes with its own back porch access and a dreamy tray ceiling that practically whispers “you deserve this.”

Oh, and the walk-in closet? It’s split into “his” and “hers” sections—perfect if your credit score took a hit from all that shoe shopping and you’re trying to justify your spending with organization.
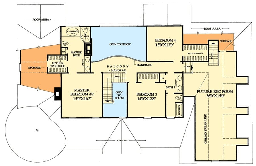
Feeling adventurous? There’s also a second master suite upstairs. That’s right—you get to choose. Upstairs or down, you’re covered either way.

This flexibility makes it a stellar investment property too if you ever decide to sell or rent it out. Multiple master suites = cha-ching.
Outdoor Living Done Right
This modern farmhouse wasn’t just designed for indoor comfort—it shines in the great outdoors too. Off the back, you’ll find multiple porches and even a barbecue porch.

Imagine flipping burgers under the stars while the kids chase fireflies. Or maybe you’ve installed the best home security system and you’re watching them on the porch cam while enjoying a drink. Either way, this space is made for living.
The porch views are maximized by glass walls that bring the outdoors in, bathing the entire living area in natural light. It’s the kind of thing that makes your home feel bigger, brighter, and, dare I say, a little bit magical.

And if you’re budgeting for improvements or landscaping with a home equity loan, this is where you’ll want to splurge.
Bonus Space and the Magic of “Future Potential”
One of my favorite parts of this home plan? The optional bonus space upstairs. It’s not just a glorified attic—it’s an opportunity.

A future game room, media room, home gym, or a teen hangout zone. Finish it now or later, depending on your timeline and whether you’ve got that home loan pre-approval sorted.
Having this kind of flexibility is a game-changer for growing families, remote workers, or anyone who’s ever considered hiring a home remodeling contractor but didn’t quite know where to start.

This space gives you a blank canvas to create exactly what you need—and maybe even use that interior design software you downloaded but never opened.
Garage Goals
Let’s not forget about the 3-car garage, tucked neatly to the side, making this home ideal for a corner lot. Whether you’re storing cars, bikes, tools, or the world’s largest collection of Christmas decorations, this space handles it all.

Bonus: if you’ve ever had to deal with a cramped, street-facing garage, this layout will feel like winning the home insurance jackpot. Less exposure = more peace of mind.
And for those of us who think of a garage as more than just a car-holding bay, this one’s generous footprint (864 sq. ft.!) leaves room for workbenches, storage systems, or even a hobby corner you can finally buy that toolset for.

Upstairs: Not Just an Afterthought
Let’s start with the second-floor master suite. Yep, this house gives you options. Whether you prefer to sleep closer to the kitchen (hello midnight snacks) or further away from the chaos (hello peace and quiet), the second suite is a total win.
It’s private, spacious, and lets you live like royalty—even if your credit score took a minor hit after buying that custom four-poster bed.

Just down the hall, two additional family bedrooms share a well-designed hall bath. Perfect for kids, guests, or maybe your sister who “just needs to crash for a few days” and then stays for three months.
Each bedroom has its own walk-in closet too, which is practically unheard of in many two-story homes. Again, this is a layout that says, “We thought of everything.”

Future Rec Space: The Room That Does It All
Now, this might be my favorite part of the upstairs—the future rec space. It’s not just an empty room; it’s a blank slate full of possibilities.
Game room? Yoga studio? Second living area with the best home security system to keep an eye on the kiddos? You decide.

This flexible square footage means you can adapt your home over time. If you’ve been thinking about diving into the world of home improvement loans, this is a great area to start.
Finish it to your heart’s content and use interior design software to visualize it all before you lift a hammer. Your future self will thank you.

A Smart Home for Modern Living
Of course, this house doesn’t just lean on charm—it’s ready for 21st-century living too. You can easily integrate smart home technology throughout, from voice-activated lighting and thermostats to advanced security systems.
Imagine unlocking your front door with your phone while you’re still pulling into the side-load garage. Fancy? Yes. Practical? Absolutely.

Smart technology isn’t just cool—it can also increase your property value and reduce your insurance premiums.

Some home insurance providers even offer discounts if your place is well-equipped with smoke detectors, water sensors, and smart locks. That’s a win for your wallet and your peace of mind.
At the end of the day, a house like this isn’t just square footage—it’s a dream realized. It’s morning coffee on the porch, game nights in the rec room, holidays in the open-concept kitchen.
It’s knowing you’ve made a smart investment—one that grows in value and in meaning.
So whether you’re calculating mortgage rates, checking your credit score, or getting your paperwork ready for home loan pre-approval, just know this: this modern farmhouse is worth the effort.
If you’re ready to build or buy, don’t just scroll past this one. This house plan is more than a floor plan—it’s a future. Your future. And it’s looking pretty fantastic from here.
Building or buying a home isn’t just about picking the perfect house plan—it’s also about making smart long-term choices. From comparing mortgage rates to finding a trustworthy real estate agent, every decision adds value. Don’t forget to explore options like home insurance, home warranties, and potential refinance opportunities to protect your investment.
Want to boost your property value? Consider installing solar panels, upgrading to energy-efficient appliances, or integrating a smart home system. Plus, tools like interior design software can help you visualize and plan your dream space before the first brick is even laid.
Find More House Plans
By Bedrooms:
1 Bedroom • 2 Bedrooms • 3 Bedrooms • 4 Bedrooms • 5 Bedrooms • 6 Bedrooms • 7 Bedrooms • 8 Bedrooms • 9 Bedrooms • 10 Bedrooms
By Levels:
By Total Size:
Under 1,000 SF • 1,000 to 1,500 SF • 1,500 to 2,000 SF • 2,000 to 2,500 SF • 2,500 to 3,000 SF • 3,000 to 3,500 SF • 3,500 to 4,000 SF • 4,000 to 5,000 SF • 5,000 to 10,000 SF • 10,000 to 15,000 SF










