4-Bedroom 2-Story Modern Farmhouse with Bonus Room and Spacious Porches (Floor Plan)

Specifications:
- 2,859 sq. ft.
- 4 Beds
- 4.5 Baths
- 2 Stories
- 2 Cars
There’s something about a modern farmhouse that just feels right—the kind of place that makes you instantly relax the moment you step through the door.
This stunning 2,859 sq. ft. Craftsman Mountain farmhouse takes that cozy charm and elevates it with refined details, open living spaces, and an outdoor setup that’s ready for year-round fun.
From the grand two-story great room to the barbecue porch, this house plan blends style, practicality, and warmth in all the right ways.


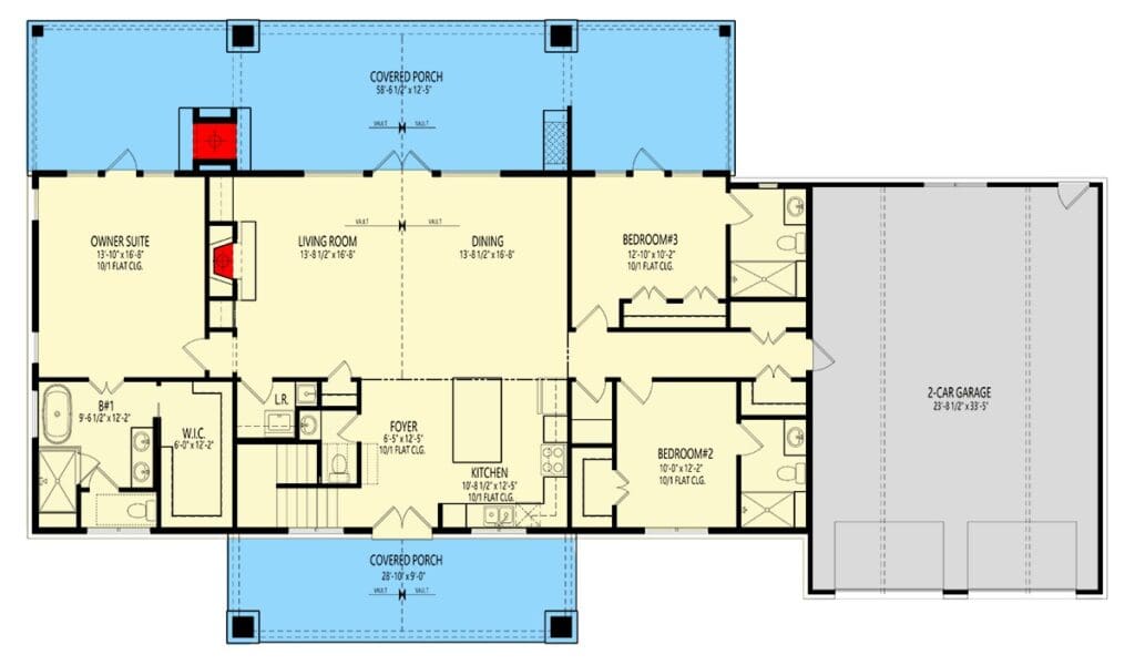
A Grand Welcome: The Foyer and Great Room
The moment you enter, you’re greeted by a foyer that feels both inviting and impressive.
It opens straight into the two-story great room, where natural light pours through tall windows, creating a sense of spaciousness and serenity.
The walls of glass bring the outside in, offering a seamless transition to the back porch and filling the home with views of your yard.
The great room is centered around a cozy fireplace—perfect for chilly evenings or lazy Sundays.

And because the space connects directly to the kitchen and dining area, you’re never far from the action.
Whether you’re entertaining friends or spending a quiet night at home, the open design keeps everyone connected while maintaining an easy flow between rooms.
It’s the kind of layout that not only looks amazing but also boosts your property value.
Open living areas continue to be one of the top features buyers seek, making this design a smart long-term investment if you ever decide to sell—or simply want to refinance your mortgage later on.

The Heart of the Home: A Kitchen That Works as Hard as You Do
If there’s one room that steals the show, it’s the kitchen. Thoughtfully designed for both function and style, it features an oversized island with a forward-facing sink, letting you chat with guests in the family room while preparing dinner.
No more turning your back on the fun—everything’s right in view.
And when it comes to storage, this home doesn’t hold back. You’ll find not only a generous walk-in food pantry but also a butler’s pantry—a dream come true for anyone who loves to cook, bake, or host dinner parties.
Picture all your appliances neatly tucked away, your countertops clutter-free, and everything right where you need it.

It’s a space that perfectly balances practicality with elegance. Whether you’re brewing your morning coffee or testing a new recipe, this kitchen is ready for it all.
And if you ever decide to upgrade with smart home technology—think voice-controlled lights, built-in appliances, or an automated coffee maker—this layout can handle it with ease.
An Owner’s Suite Designed for Relaxation
Down the hall, the owner’s suite offers a peaceful retreat that feels more like a boutique getaway than just a bedroom.
A beautiful tray ceiling adds height and character, while large windows fill the space with soft, natural light.

The ensuite bathroom is spa-inspired, featuring a soaking tub, walk-in shower, and dual vanities that make getting ready a breeze.
Of course, the massive walk-in closet deserves its own moment of appreciation—it’s the kind of space that makes you rethink your wardrobe entirely.
And here’s a bonus: the owner’s suite includes direct access to the back porch, so you can step outside in the morning with a cup of coffee or enjoy the night air before bed.
It’s the perfect blend of luxury and comfort, designed for those who appreciate the finer things without wanting to sacrifice warmth or practicality.

Pair this with a solid home insurance plan and a reliable home warranty, and you’ve got yourself a haven that’s as protected as it is beautiful.
Bedrooms That Keep Everyone Happy
Every bedroom in this house plan comes with a walk-in closet, so there’s no fighting over storage space (a true miracle in family living).
Two additional bedrooms are located on the main floor, sharing a full bathroom that’s conveniently accessible from the hallway.

The thoughtful layout ensures privacy and comfort for every member of the family—or visiting guests.
Whether you use the third bedroom as a nursery, guest room, or even a home office, you’ll appreciate the flexibility this design provides.
If you’re planning to buy this home as an investment property or vacation retreat, having multiple well-sized bedrooms with walk-in closets can significantly increase your property value and rental potential.

It’s the kind of detail that matters to both homeowners and real estate agents alike.
Upstairs Flexibility: The Loft, Den, and Bonus Room
Head upstairs, and the versatility continues. A spacious loft overlooks the great room below, offering a bright and open area perfect for reading, relaxing, or even working from home.
Beside it sits a quiet den that makes for an ideal study, office, or homework nook.

Then there’s the large recreation room, which can easily transform into an optional fourth bedroom, media room, or hobby space.
Maybe you’ll turn it into a gym, a playroom, or even a second living area—it’s all up to you.
And when you’re ready to finish it, you could consider using a home improvement loan or tapping into your home equity loan to make the upgrades you’ve been dreaming of.

Even the optional 414 sq. ft. bonus space gives you future flexibility. You can keep it unfinished until you’re ready, then transform it into a guest suite, art studio, or whatever fits your family’s needs best.
This kind of adaptability makes the home not just a place to live, but a place to grow into.
Outdoor Living That Steals the Show
If you love spending time outside, this home plan was made for you. With a 260 sq. ft. front porch that says “welcome home” and a massive 727 sq. ft. rear porch built for entertaining, you’ll have no shortage of fresh-air hangouts.

The rear porch takes outdoor living to a new level—it includes a fireplace, full outdoor kitchen, and room for both dining and lounging.
Imagine hosting weekend barbecues, family birthdays, or just cozy evenings with a blanket and a book.
This space isn’t just beautiful—it’s functional, adding true value to your home.

And if you’re someone who loves to plan ahead, pairing this outdoor setup with the best home security system ensures your gatherings stay safe and worry-free.
Smart Design for Everyday Life
From its open-concept flow to its thoughtful use of space, every inch of this modern farmhouse is designed for real life.
The side-load, two-car garage offers convenience and curb appeal, especially if your lot sits on a corner.

The mudroom near the garage keeps shoes and clutter out of sight, while the connected laundry area simplifies daily routines.
All these details—combined with features like smart home compatibility, energy-efficient construction, and timeless farmhouse styling—make this plan a true gem.
It’s a design that not only feels right for now but promises lasting value for years to come.

The Perfect Blend of Comfort, Design, and Lasting Value
Every once in a while, a home design comes along that just clicks.
This modern farmhouse plan—spanning 2,859 sq. ft. of pure character—manages to be elegant without feeling pretentious, cozy without feeling cramped, and modern without losing that timeless farmhouse warmth.
In below dives into what makes this home not only a joy to live in but also a smart investment for the future.

Outdoor Living That Redefines Relaxation
Let’s start with one of the home’s standout features—the outdoor living area. The 727 sq. ft. rear porch isn’t just a place to grill a few burgers; it’s an extension of your indoor living space.
With a built-in barbecue kitchen and a fireplace, this porch is ready for everything from summer cookouts to chilly fall evenings.
You can easily imagine friends gathered around, music playing softly in the background, and maybe even a string of lights twinkling overhead.

The design encourages connection and enjoyment of the outdoors—something that enhances your lifestyle while increasing your home’s property value.
If you’ve ever used interior design software to map out furniture and décor, you’ll know that flow matters. Here, the connection between indoor and outdoor spaces is seamless.
Large glass doors in the great room open directly to the back porch, so whether you’re hosting a birthday party or enjoying a quiet breakfast, the transition feels natural and inviting.

A Kitchen That Elevates Every Meal
The kitchen in this modern farmhouse deserves its own applause. It’s not just functional—it’s spectacular.
The central island provides plenty of prep space, seating, and a sink that faces the family room so you can stay connected while cooking.
The walk-in food pantry and butler’s pantry make storage and organization effortless. Whether you’re buying in bulk or preparing for a holiday dinner, everything has its place.

And if you’re a tech-savvy homeowner, integrating smart home technology here can make daily tasks even easier—imagine lights that dim automatically for ambiance or an oven that preheats before you even walk in the door.
Beyond aesthetics, this kitchen design adds real value. If you’re ever considering a refinance mortgage or exploring home improvement loans to upgrade finishes, this space is where your investment will shine the most.
High-quality cabinetry, energy-efficient appliances, and a thoughtful layout all boost long-term value and comfort.

The Master Suite: Your Private Sanctuary
The owner’s suite on the main floor is nothing short of a dream. It’s spacious, serene, and strategically positioned for privacy.
The tray ceiling gives it an elegant touch, while direct access to the back porch invites fresh air and relaxation at any hour.
Inside the ensuite bathroom, the spa-like atmosphere continues—complete with a soaking tub, dual vanities, and a large walk-in shower.

The walk-in closet is generous enough to handle any wardrobe (or two), and its organization potential is endless.
If you ever consult a building cost estimator to expand or customize, you’ll see how the thoughtful proportions of this space give you flexibility without driving up unnecessary costs.
And from a financial perspective, the owner’s suite is a key selling point that keeps property value strong, no matter how the market shifts.

Flexible Spaces for Every Lifestyle
The upper floor is where this plan truly shines for versatility. The loft overlooks the great room, creating visual drama and openness, while the nearby den offers a quieter retreat for work, reading, or study.
Then there’s the large recreation room—a blank canvas that can adapt as your life evolves.
Need a fourth bedroom? Done. Want a home theater or gaming lounge? Easy. Thinking about transforming it into a gym or studio later? No problem.

The optional 414 sq. ft. bonus space adds even more potential, perfect for growing families or future income opportunities like short-term rentals.
If you ever decide to buy this home as an investment property, these adaptable spaces can help attract renters or boost resale interest.
And when you’re ready to make upgrades, consulting a reliable home remodeling contractor can help you maximize both functionality and aesthetics.

A Garage That’s More Than Just Parking Space
The attached, front-entry 2-car garage—spanning 817 sq. ft.—offers practicality with a touch of style.
It’s large enough for vehicles, tools, and a little extra workspace if you enjoy DIY projects.
The side-load design also makes it ideal for corner lots, giving the home a clean, balanced look from the street.

This isn’t just a garage—it’s part of the home’s flow. The direct connection to the mudroom helps keep things tidy, ensuring muddy shoes and sports gear don’t make their way into your pristine living areas.
It’s one of those everyday conveniences you’ll appreciate more than you’d expect.
Energy Efficiency and Smart Security
Modern farmhouse design isn’t just about looks—it’s also about living smarter. This plan easily accommodates the best home security system options available today, from video doorbells to motion-sensor lighting and app-controlled locks.

Combined with energy-efficient construction and smart thermostats, it ensures comfort, safety, and savings all in one.
Integrating these technologies isn’t just about convenience—it’s about future-proofing your investment.
When you consider how mortgage rates, property values, and insurance costs can fluctuate, a home that’s built to be efficient and secure gives you more stability in the long run.

Speaking of stability, maintaining solid home insurance and an active home warranty is a must.
Together, they protect your finances from unexpected repair costs, giving you peace of mind as you enjoy everything your farmhouse offers.
From the kitchen to the porches, this house plan has a flow that just makes sense. The open concept promotes family connection, while the private bedrooms and upstairs flex spaces offer room to breathe.

Every corner feels intentional—crafted for comfort, efficiency, and long-term satisfaction.
Whether you’re using home equity to fund improvements or just settling in for the long haul, this home offers a perfect balance of lifestyle and investment.

It’s large enough to grow into, yet intimate enough to always feel like home.
And when the time comes to work with a real estate agent—whether buying, selling, or investing—you’ll find that this kind of floor plan holds its value beautifully.

Its blend of traditional farmhouse appeal and modern functionality makes it a timeless choice in any market.
Owning a home like this is about more than just comfort—it’s about creating a foundation for your financial future.
With its open layout, multiple porches, flexible living spaces, and thoughtful design, this modern farmhouse is both a joy to live in and a wise purchase decision.
It’s the kind of property that can grow with you, whether that means finishing the bonus room, upgrading appliances, or refinancing to secure better mortgage terms.
With every improvement, you’re not just enhancing your lifestyle—you’re strengthening your investment.
Building or buying a home isn’t just about picking the perfect house plan—it’s also about making smart long-term choices. From comparing mortgage rates to finding a trustworthy real estate agent, every decision adds value. Don’t forget to explore options like home insurance, home warranties, and potential refinance opportunities to protect your investment.
Want to boost your property value? Consider installing solar panels, upgrading to energy-efficient appliances, or integrating a smart home system. Plus, tools like interior design software can help you visualize and plan your dream space before the first brick is even laid.
Find More House Plans
By Bedrooms:
1 Bedroom • 2 Bedrooms • 3 Bedrooms • 4 Bedrooms • 5 Bedrooms • 6 Bedrooms • 7 Bedrooms • 8 Bedrooms • 9 Bedrooms • 10 Bedrooms
By Levels:
By Total Size:
Under 1,000 SF • 1,000 to 1,500 SF • 1,500 to 2,000 SF • 2,000 to 2,500 SF • 2,500 to 3,000 SF • 3,000 to 3,500 SF • 3,500 to 4,000 SF • 4,000 to 5,000 SF • 5,000 to 10,000 SF • 10,000 to 15,000 SF










