4-Bedroom 2-Story Mid-Century Modern Mountain House with Vaulted Master Suite (Floor Plan)

Specifications:
- 2,318 Sq Ft
- 2 – 4 Beds
- 2 – 3 Baths
- 2 Stories
- 2 Cars
From the moment I laid eyes on this mid-century modern mountain house plan, I knew it was something special.
Designed for a rear sloped lot, this 2,318-square-foot home perfectly blends open living spaces, private retreats, and outdoor connection.
With three levels of outdoor living and thoughtful interior flow, it’s clear the floor plan was designed to feel both expansive and welcoming.
Let me walk you through how each level works and why this plan makes sense for real life.







The Heart of Open Living
The main level is where this home truly shines.
Open and airy, the living room, kitchen, and dining areas flow seamlessly together.
I love how the kitchen island doubles as a casual dining spot, perfect for morning coffee or a late-night snack.

For larger gatherings, there’s still room for a formal dining table without feeling cramped.
The floor plan emphasizes connection: whether you’re cooking, entertaining, or just relaxing, nothing feels cut off.
The wrap-around deck expands the main level outdoors, offering space for grilling, dining, or simply enjoying the mountain views.

It’s easy to imagine mornings here, coffee in hand, or evenings hosting friends while the sun sets over the peaks.
Two bedrooms occupy this level, separated by a full bath—a smart layout for privacy.
Whether it’s kids, guests, or even a home office, the main floor gives flexibility while keeping the open living area the central hub.

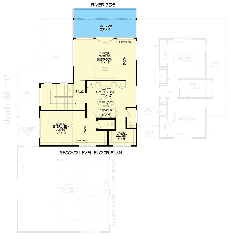
A Private Retreat
Upstairs, the floor plan dedicates the entire level to the master suite.
This layout choice transforms the bedroom into more than just a sleeping space—it’s a private retreat.
The suite includes a five-fixture bathroom, a private balcony, and an exercise room that can double as a second closet.

The separation from the main level ensures privacy while still keeping you connected to the house’s flow.
The upper-level balcony is perfectly positioned to enjoy views while remaining tucked away from the main living areas.
I can picture myself stepping out in the morning, soaking in fresh mountain air, and starting the day in this serene space.

The design of this floor maximizes both comfort and functionality, showing how thoughtful placement of rooms can elevate everyday living.
Storage, Recreation, and Flexibility
The lower level is a highlight of this floor plan, offering plenty of storage and a foundation for future expansion.
Currently, it opens onto a patio, but the design anticipates growth: you could add two more bedrooms, a full bath, and a large recreation room.

This level provides flexibility for changing family needs or lifestyle updates, making it a practical and valuable part of the home.
Even without expansion, the lower level’s recreation space provides room for games, hobbies, or a home gym.
The storage options are generous, keeping seasonal items or gear out of sight but easily accessible.

This thoughtful layout ensures that as your needs evolve, the home can adapt without compromising flow or comfort.
Three Levels of Connection
One of the most unique aspects of this house plan is its three levels of outdoor living.
The main level deck wraps around the home, perfect for entertaining or relaxing.

The upper-level master balcony creates a private escape, while the lower patio opens onto the yard or mountain scenery.
This floor plan integrates indoor and outdoor spaces seamlessly.
Each deck or patio is connected to functional interior spaces, allowing for easy flow from cooking and dining areas to fresh air and nature.

It’s a design that encourages outdoor enjoyment while maximizing views, making the home feel larger and more connected to its surroundings.
Flow and Function
What really stands out about this mountain house plan is how naturally the spaces flow.
The main level’s open layout encourages interaction, while the placement of bedrooms provides privacy.

The upper-level master suite is a self-contained retreat, and the lower level offers room to expand or accommodate recreational needs.
This careful attention to room placement makes daily life feel effortless.
The main living areas, bedrooms, and decks are all positioned for comfort and convenience.

It’s easy to see how furniture placement, traffic patterns, and natural light were all considered in the floor plan, creating spaces that feel both functional and beautiful.
Balancing Privacy and Accessibility
The main-level bedrooms are smartly located with a full bath between them, offering privacy while keeping the spaces connected to shared areas.
This arrangement works well for kids, guests, or even a home office if you need one.

The master suite upstairs keeps parents or homeowners slightly separated, giving the entire household a sense of balance.
The floor plan’s bedroom placement also allows for future expansion on the lower level.
Adding bedrooms there keeps all living areas functional without overcrowding the main and upper levels.

It’s a versatile design that adapts to families at different stages, making it a long-term solution rather than a temporary fix.
Bathrooms and Convenience
This plan includes two to three bathrooms, designed to complement the bedroom layout.

The main level has a full bath between the two bedrooms, while the upper-level master suite boasts a five-fixture bathroom.
The lower level allows for future addition of a full bath during expansion, maintaining the home’s functionality as needs change.
Thoughtful bathroom placement is a hallmark of this floor plan, reducing congestion and keeping spaces private yet accessible.

Each fixture, door placement, and connection to bedrooms or recreation areas reflects careful planning that improves daily life.
Recreation and Flexibility on the Lower Level
The lower-level recreation area is more than just a bonus—it’s a key component of the floor plan.
Designed for potential future expansion, this space can serve as a media room, playroom, gym, or guest area.

The connection to the patio ensures natural light and outdoor access, keeping the area from feeling like a basement dungeon.
The floor plan allows homeowners to customize this level based on lifestyle needs.
Whether it’s creating extra bedrooms, adding a hobby area, or designing a space for entertaining, the lower level is a functional and flexible canvas.

Extending Living Spaces
Each outdoor area in this house plan is thoughtfully connected to indoor spaces.
The main-level wrap-around deck, the upper-level master balcony, and the lower patio all extend the living environment, making the home feel larger and more versatile.
The floor plan maximizes both privacy and accessibility.

You can step outside from almost any level, enjoy mountain views, and make the most of outdoor living.
The design ensures that indoor-outdoor flow is not an afterthought but a central part of how the home functions.
Practicality Meets Style
Finally, what makes this floor plan exceptional is how it balances practicality and style.

Every level is purposeful: open living areas for socializing, bedrooms for privacy, a master suite for retreat, and a lower level for expansion.
Outdoor spaces integrate seamlessly with indoor areas, making the home feel airy, connected, and inviting.
From circulation to room placement, this house plan demonstrates how thoughtful design can improve daily living.

The layout allows homeowners to entertain, relax, and adapt over time—all while keeping style and comfort at the forefront.
This mid-century modern mountain house plan works because it combines smart spatial planning with flexibility for the future.
The main level fosters interaction, the upper-level master suite offers seclusion, and the lower level provides room to grow.

Decks and patios enhance outdoor living while the indoor layout ensures functionality and flow.
For anyone buying a home or planning an investment, this plan offers long-term versatility and lifestyle benefits.
Each square foot is used wisely, creating a home that supports family life, socializing, relaxation, and potential expansion.
In short, it’s a floor plan designed to meet today’s needs while anticipating tomorrow’s possibilities.
Building or buying a home isn’t just about picking the perfect house plan—it’s also about making smart long-term choices. From comparing mortgage rates to finding a trustworthy real estate agent, every decision adds value. Don’t forget to explore options like home insurance, home warranties, and potential refinance opportunities to protect your investment.
Want to boost your property value? Consider installing solar panels, upgrading to energy-efficient appliances, or integrating a smart home system. Plus, tools like interior design software can help you visualize and plan your dream space before the first brick is even laid.
Find More House Plans
By Bedrooms:
1 Bedroom • 2 Bedrooms • 3 Bedrooms • 4 Bedrooms • 5 Bedrooms • 6 Bedrooms • 7 Bedrooms • 8 Bedrooms • 9 Bedrooms • 10 Bedrooms
By Levels:
By Total Size:
Under 1,000 SF • 1,000 to 1,500 SF • 1,500 to 2,000 SF • 2,000 to 2,500 SF • 2,500 to 3,000 SF • 3,000 to 3,500 SF • 3,500 to 4,000 SF • 4,000 to 5,000 SF • 5,000 to 10,000 SF • 10,000 to 15,000 SF










