4-Bedroom 2-Story Luxury Farmhouse With Vaulted Ceilings and Outdoor Living (Floor Plan)

Specifications:
- 5,575 Sq. Ft.
- 4 Beds
- 5 Baths
- 2 Stories
- 3 Cars
Let me paint you a picture.
Imagine waking up in a gorgeous modern farmhouse, birds chirping outside, your coffee brewing in a sun-drenched kitchen, and not a single sock out of place because, yes, every bedroom has its own walk-in closet.
This house plan isn’t just another home—it’s the dream.
And if you’re someone who checks mortgage rates like the weather, buckle up.
We’re about to take a joyride through 5,575 square feet of luxury, functionality, and design brilliance.


Open Spaces and Big Dreams
If there’s one thing I’ve learned from binge-watching renovation shows and daydreaming on real estate sites, it’s that open layouts are basically the Beyoncé of floor plans. This house? Nailed it.
The great room, kitchen, and dining room all flow together like they were born to be one.
And with that jaw-dropping 2-story ceiling overhead, you can finally host that holiday dinner without having to squeeze Aunt Martha next to the trash can.
The walls of glass in the back? Not only do they flood the space with natural light, but they collapse. Yes, you heard me. It’s like the house just takes a deep breath and says, “Let’s go outside.”
The seamless transition to the covered outdoor living room means summer barbecues, fall bonfires, and spring garden parties are always just one push of a wall away. It’s the ultimate invitation to live both inside and out—no RSVP needed.
Kitchen Goals with a Side of Sanity
Let’s talk about the kitchen for a hot minute because, honestly, it deserves a standing ovation.
The island is massive and—get this—the sink faces the family room fireplace.
So while you’re rinsing kale , you’re not banished from the conversation or missing out on that warm fire glow. Genius.
And just when you thought it couldn’t get better, this plan serves up not just a walk-in food pantry, but a butler’s pantry too.

That’s right, you get a backstage area for your kitchen. Suddenly, prepping dinner for friends or hosting book club feels effortless.
Oh, and if you’re considering this place as an investment, let’s just say the layout sells itself.
If you’re crunching the numbers with a building cost estimator or eyeing home improvement loans to make your Pinterest dreams come true, this kitchen setup is worth every penny.
And if you’re like me and occasionally cook with all four burners blazing while Googling “how to not burn rice,” this setup is basically therapy.
A Master Suite Made for Royalty
Now, let’s stroll over to the master suite—aka the nap sanctuary.
The tray ceiling gives it this elegant touch that says, “I own plush bathrobes and I take bubble baths.”
You’ve got private access to the back porch, so you can sneak out with a glass of wine under the stars while the rest of the house is asleep.
The walk-in closet is big enough to make a real estate agent swoon, and the master bath? Think spa retreat meets practical luxury.
If you’ve ever worried about property value, let me tell you—this suite alone is raising it just by existing.

And for the security-savvy among us, this is where the best home security system really flexes.
Motion sensors, smart locks, even a door camera with two-way talk —you can install it all here without compromising the aesthetics.
Work, Play, and Everything In Between
This house is smart, like top-of-the-class smart. There’s a designated study for those of us working from home, pretending to be on Zoom while secretly watching home renovation videos.
And just in case your credit score needs some time to improve before you purchase the home of your dreams, this space doubles as a reading nook, hobby room, or a secret snack cave. No judgment.
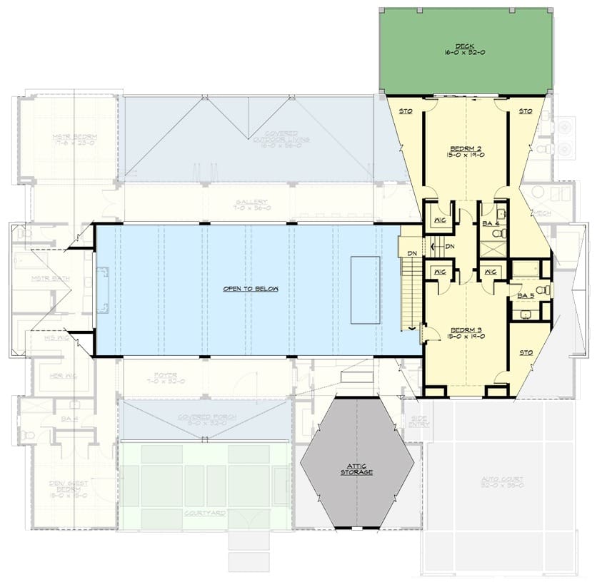
Upstairs, two bedrooms share a Jack and Jill bathroom—perfect for kids, guests, or that one cousin who always visits “just for the weekend” and stays until your birthday.
One of the bedrooms even has its own private deck. Yep. A deck. It’s basically a teenage dream come true or a very fancy coffee spot.
And don’t get me started on the optional bonus space. That’s where you can go wild with your interior design software and map out a future home theater, yoga studio, or craft explosion zone.
When you’re ready to finish it, it’s like unlocking a hidden level in the game of homeownership.
Garage Goals and Corner-Lot Glory
Let’s step outside again—but this time to the garage.

It’s a side-load design, which not only makes your home look a lot more polished from the front, but it’s also perfect for corner lots.
There’s an auto court that gives you access to 1,225 square feet of parking space—hello, car collectors and big families.
There’s a 2-car garage with pantry access , plus a 1-car garage that connects to the life management center.
If you don’t know what a life management center is, it’s basically a laundry room on steroids.
Or a mudroom that finally gets the respect it deserves. Either way, it’s where chaos goes to die.
If you’re considering whether to buy or refinance mortgage for a better deal, this garage setup adds real appeal.
It’s functionality meets form, and it makes storing your stuff—cars, sports gear, mystery bins—super easy.
Plus, you’ll finally have a reason to say, “Let’s take this discussion to the auto court,” which sounds incredibly classy.
Outdoor Living That’s Honestly Unfair
Let’s be honest—most backyards are either “meh” or “I guess we’ll mow it eventually.” Not this one.

This modern farmhouse practically throws its arms open and hugs the outdoors.
The covered outdoor living area is so seamlessly connected to the main living space that you might forget where the house ends and the porch begins.
Remember those collapsible glass walls? They’re not just in the main living area—they’re also in the master bedroom and exercise room.
Picture yourself doing yoga in the morning while birds sing and sunlight streams in. Or maybe you’re more into lounging in a hammock and pretending you’re outdoorsy.
Either way, this design delivers serious “wow” factor while boosting your property value faster than you can say “home equity loan.”
Plus, there’s a barbecue porch. Let me repeat that. A barbecue porch.
If that doesn’t make you want to fire up some ribs and invite every cousin you’ve ever met, I don’t know what will.
It’s the kind of feature that makes a home feel like a vacation—and gives your home insurance company a reason to smile .

Exercise Room: Because the Gym is Always Too Crowded Anyway
Let’s talk about the exercise room. It’s spacious, bright, and just steps from your bedroom.
If you’ve ever made a New Year’s resolution to work out and then conveniently forgot about it by mid-January, this room is your accountability partner.
And yes, it’s equipped with walls of glass that also collapse. So your early morning spin session? Now it comes with a breeze.
And if you’re not the treadmill type, this room easily transforms into a dance studio, playroom, or meditation space.
No home remodeling contractor needed—it’s flexible, functional, and fun.
And trust me, adding a private gym to your property is the kind of thing that future buyers will fall head-over-heels for. Talk about a solid investment.
Bedrooms for Everyone
We’ve already covered the dreamy master suite, but the rest of the bedrooms deserve some love too.
Downstairs, you’ve got split bedrooms—translation: privacy for guests, teenagers, or in-laws.

Everyone gets their own walk-in closet, which basically eliminates 90% of the usual household drama.
And upstairs, the two bedrooms share a Jack and Jill bath. Remember how Bed 2 has its own private deck? That’s the cherry on top.
Whether it’s for sunbathing, stargazing, or sulking in style, it’s an absolute win. Plus, more outdoor space?
That’s a big boost for property value—and an even bigger win for bragging rights.
If you’re house hunting with a real estate agent, you’ll want to put this floor plan on the top of the list.
It’s rare to find a layout that offers this much comfort and privacy, while still keeping everyone connected.
If homes were dating profiles, this one would be the total package: charming, strong, intelligent, and doesn’t leave socks on the floor.
With 5,575 square feet of heated living space, 4 bedrooms, 5 bathrooms, and all the extras—barbecue porch, bonus space, study, side-load garage, walk-in closets, and yes, even an auto court—it’s more than just a house. It’s a forever kind of home.

Whether you’re considering your next big purchase, planning a dream build, or strategizing how to grow your home equity through smart upgrades and stylish living, this modern farmhouse delivers in every way.
Sure, mortgage rates will fluctuate, and you may one day decide to refinance mortgage to get a better deal.
But one thing’s certain: with a home like this, you’re not just buying square footage—you’re investing in a lifestyle. One filled with comfort, elegance, and a whole lot of backyard BBQs.
And hey, if you ever need help choosing porch furniture or which grill to put outside—I’m just a scroll away. Happy home planning!
Building or buying a home isn’t just about picking the perfect house plan—it’s also about making smart long-term choices. From comparing mortgage rates to finding a trustworthy real estate agent, every decision adds value. Don’t forget to explore options like home insurance, home warranties, and potential refinance opportunities to protect your investment.
Want to boost your property value? Consider installing solar panels, upgrading to energy-efficient appliances, or integrating a smart home system. Plus, tools like interior design software can help you visualize and plan your dream space before the first brick is even laid.
Find More House Plans
By Bedrooms:
1 Bedroom • 2 Bedrooms • 3 Bedrooms • 4 Bedrooms • 5 Bedrooms • 6 Bedrooms • 7 Bedrooms • 8 Bedrooms • 9 Bedrooms • 10 Bedrooms
By Levels:
By Total Size:
Under 1,000 SF • 1,000 to 1,500 SF • 1,500 to 2,000 SF • 2,000 to 2,500 SF • 2,500 to 3,000 SF • 3,000 to 3,500 SF • 3,500 to 4,000 SF • 4,000 to 5,000 SF • 5,000 to 10,000 SF • 10,000 to 15,000 SF










