4-Bedroom 2-Story Grand Modern Farmhouse with Courtyard Garage and Guest Casita (Floor Plan)

Specification:
- 7,557 sq. ft.
- 4 Beds
- 5.5 Baths
- 2 Stories
- 4 Cars
Some house plans quietly impress you, and others kick the door open and say, “Welcome home, we thought of everything.”
This 7,557 sq. ft. Modern Farmhouse is absolutely the second type.
From the moment I started walking through it on paper, I could already picture daily life unfolding here, coffee in hand, fireplace glowing, and not a single regret about the decision to buy or purchase something truly special.
This is the kind of home that feels like both a lifestyle upgrade and a smart long-term investment.


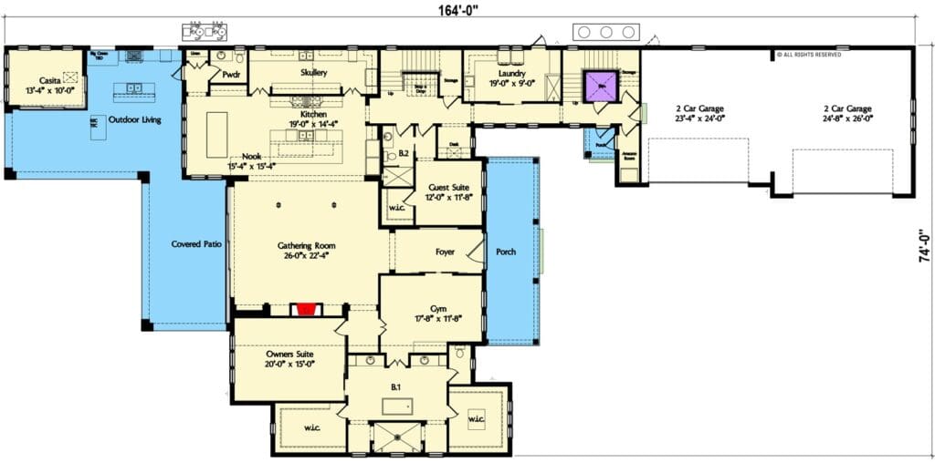
A Grand First Impression That Sets the Tone
Stepping onto the inviting front porch, I’m immediately drawn into a soaring foyer that doesn’t just greet you—it announces you’ve arrived somewhere important.
The open-concept gathering room stretches out ahead, and it’s the kind of space that makes you forget walls ever existed.
Whether you’re hosting a crowd or lounging with family, everything flows effortlessly, which is exactly what today’s buyers are after when watching mortgage rates and thinking carefully about property value.
I love how the layout balances grandeur with comfort. The family room fireplace anchors the space beautifully, and since the kitchen sink faces forward from the island, I can cook, chat, and keep an eye on everything at once.
It’s the sort of design that makes everyday living feel intentional, not accidental—and yes, it also makes your real estate agent smile when talking resale.
A Kitchen That Works as Hard as You Do
If kitchens could win awards, this one would have a shelf full of trophies. The gourmet setup is equal parts beautiful and practical, featuring a large island, a walk-in food pantry, and a butler’s pantry that quietly handles overflow like a backstage pro.
Add in the hidden scullery, and suddenly hosting dinner parties doesn’t mean cluttered counters or frantic cleanup.
I can already see how this space supports both daily life and long-term planning. When you’re thinking about home improvement loans or working with a building cost estimator to see what’s possible, having this level of built-in efficiency saves money down the line.
Plus, it’s a dream canvas if you enjoy experimenting with interior design software before finalizing finishes.
Walls of Glass and Outdoor Living Done Right
One of my favorite features is how walls of glass pull the outdoors straight into the heart of the home.
Natural light floods the living areas, and the views extend seamlessly toward the covered patio and backyard. This isn’t just about aesthetics—it’s about how a house feels hour by hour, season by season.
Outdoor living spaces here aren’t an afterthought. The expansive covered patio is perfect for al fresco dining, quiet mornings, or lively evenings around the outdoor kitchen. The barbecue porch alone might convince you to cancel restaurant plans permanently.
When you factor in home insurance considerations, well-designed outdoor areas like these actually add confidence and protection, especially when paired with the best home security system and modern smart home technology.
A Study, a Gym, and Thoughtful Everyday Spaces
Near the foyer, the dedicated study is perfectly placed for productivity without isolation. I imagine closing the door for focused work, virtual meetings, or managing finances—maybe even checking credit score updates or finalizing a home loan pre-approval without distraction.
Then there’s the private gym, which feels like a gift to future me. No driving, no crowds, just a personal wellness space built right in. Between this and the multiple living areas throughout the house, the plan supports real-life routines beautifully.
It’s also a big plus when considering long-term lifestyle flexibility or future home equity loan options tied to value-boosting amenities.

The Main-Level Owner’s Suite: A Private Retreat
The main-level Owner’s Suite is where this home really starts whispering luxury. Tucked away for privacy, it feels like a true retreat rather than just another bedroom.
Dual walk-in closets mean no negotiating space, and the ensuite bath is designed for serious relaxation.
What I love most is the tray ceiling and the direct access to the back porch. Morning coffee outside, evening wind-downs under the stars—this suite understands how people actually want to live.
Every bedroom in the house includes a walk-in closet, which may sound small, but it’s one of those details that quietly boosts comfort and resale appeal at the same time.
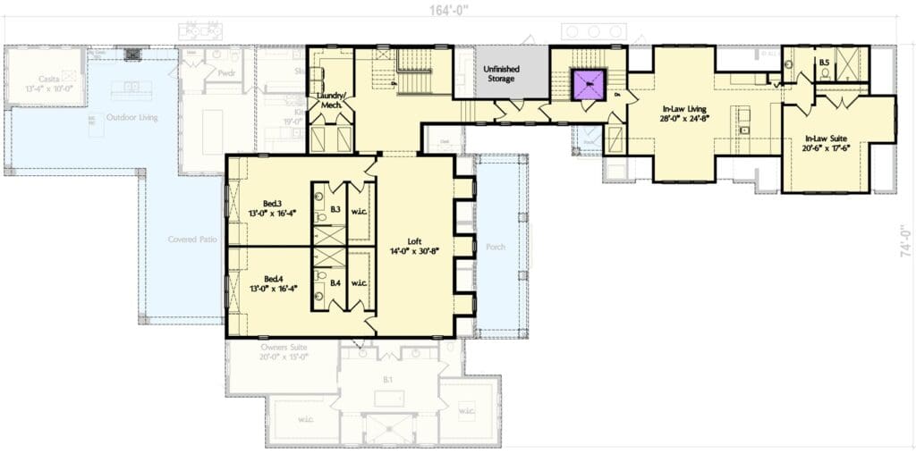
Multi-Generational Living Without Compromise
This plan shines when it comes to flexibility. With dual staircases and a private elevator serving the second-floor in-law apartment, everyone gets independence without losing connection.
This kind of thoughtful separation is invaluable, especially for multi-generational households or long-term guests.
Upstairs, the In-Law Suite apartment is expansive enough to include space for a functional kitchen, a generous bedroom, and a full bath. It doesn’t feel secondary—it feels intentional. For families thinking strategically about investment potential, rental options, or future caregiving needs, this feature alone can justify the purchase.
Upstairs Living Spaces That Actually Get Used
The second floor doesn’t just add bedrooms—it adds lifestyle. A spacious loft serves as a secondary gathering area, ideal for a media room, reading nook, or relaxed hangout space. Two additional upstairs bedrooms, each with private baths and walk-in closets, ensure comfort without competition.
There’s also a large in-law living area that can double as a game or recreation room, which pairs perfectly with the main-level gym. Add in the upstairs laundry—because hauling baskets across floors is no one’s dream—and daily routines become smoother, simpler, and more efficient.
At this point, I’m already thinking about how well this home supports long-term living, future home remodeling contractor projects, and smart upgrades that continue building equity. And we haven’t even talked about the courtyard garage, casita, or bonus space yet—but that’s where things get even more exciting.
The Courtyard Garage and Corner-Lot Advantage
Let’s start with the 4-car courtyard garage, because it’s more than just a place to park. With a side-load configuration, this home is perfectly suited for a corner lot, instantly boosting curb appeal and functionality.
I love how the courtyard layout adds privacy while still feeling welcoming, especially when guests arrive.
From a practical standpoint, this garage setup supports everything from extra storage to workshop space, and it keeps the front elevation clean and elegant. It’s also the kind of feature that quietly enhances property value over time.
When you’re running numbers with a building cost estimator or discussing long-term plans with a real estate agent, details like this matter more than people realize.
The Casita: Small Space, Big Impact
Then there’s the charming 166 sq. ft. casita, which might be compact, but it’s incredibly mighty in terms of flexibility.
With its own private outdoor living space, it’s ideal for guests, extended family, a quiet office, or even a creative retreat. I can easily see it becoming that one space everyone wants to claim first.
From an investment perspective, the casita opens doors. Whether it’s used for visiting relatives or adapted later for other purposes, having a separate structure like this gives the home an edge.
It’s the kind of feature that future buyers love—and the kind that makes you feel confident about the purchase even as market conditions and mortgage rates shift.
Indoor-Outdoor Living That Feels Effortless
What really ties everything together is how seamlessly this home blends indoor and outdoor living. The covered patio, connected porches, and outdoor kitchen create a natural extension of the interior spaces.
Hosting gatherings here feels easy, not staged. I imagine weekend barbecues, holiday dinners, or quiet evenings where the line between inside and outside simply disappears.
This level of thoughtful design also pairs beautifully with smart home technology. Automated lighting, climate control, and security features integrate effortlessly, especially when you want the best home security system protecting both interior and exterior spaces. It’s comfort with peace of mind baked right in.
Bonus Space That Grows With You
One of my favorite details is the optional bonus space. It’s there when you’re ready—no pressure, no rush.
Finish it later as a playroom, studio, guest suite, or hobby room when life demands more space. That flexibility is invaluable, especially if you’re planning ahead or considering future home improvement loans.
This “finish-when-you’re-ready” mindset makes financial sense too. It allows you to buy the home now, enjoy it fully, and scale up later without committing upfront.
When paired with a solid home warranty and proactive planning, it’s a strategy that protects both lifestyle and budget.

Everyday Functionality, Perfectly Placed
Daily routines are where a house truly proves itself, and this one excels. A main-level laundry keeps chores convenient, while the additional upstairs laundry supports multi-generational living without bottlenecks.
The mudroom acts as a practical buffer zone—bags, shoes, and gear all have a place, and clutter never spills into living areas.
These may seem like small details, but they’re exactly what people look for when evaluating a home’s livability.
They also make a difference if you ever decide to refinance mortgage terms or tap into a home equity loan down the road. Lenders and buyers both appreciate homes that are designed to function well, not just photograph well.
Designed for Longevity and Peace of Mind
This plan doesn’t just focus on how the home looks today—it considers how it performs over time. Durable layouts, flexible spaces, and thoughtful separation of living areas all contribute to long-term confidence.
Pair that with the right home insurance coverage and a strong credit score, and you’re setting yourself up for stability as well as comfort.
If upgrades or changes ever cross your mind, the structure supports them beautifully. Working with a home remodeling contractor in the future won’t feel like forcing changes into an inflexible box. The bones of this house are strong, adaptable, and future-ready.
What really stands out to me is how this house manages to feel both grand and personal at the same time. It supports quiet mornings and lively celebrations, solo workouts and multi-generational gatherings.
Whether you’re thinking emotionally—about comfort, family, and enjoyment—or strategically—about investment, resale, and flexibility—it delivers on both fronts.
This is the kind of home you buy with confidence, knowing it can grow and change alongside you. It’s not just a place to live; it’s a place that supports decisions, from your initial home loan pre-approval all the way through long-term ownership.
At the end of the day, this 7,557 sq. ft. Modern Farmhouse doesn’t just check boxes—it anticipates them. Open layout? Yes. Multiple living zones?
Absolutely. Private suites, outdoor living, wellness spaces, storage, flexibility, and future-proof design? All there.
For anyone looking to purchase a home that balances beauty, practicality, and smart planning, this one stands tall.
It’s equal parts comfort and confidence, and it proves that when a house plan is done right, it doesn’t just meet expectations—it quietly exceeds them, day after day.
Building or buying a home isn’t just about picking the perfect house plan—it’s also about making smart long-term choices. From comparing mortgage rates to finding a trustworthy real estate agent, every decision adds value. Don’t forget to explore options like home insurance, home warranties, and potential refinance opportunities to protect your investment.
Want to boost your property value? Consider installing solar panels, upgrading to energy-efficient appliances, or integrating a smart home system. Plus, tools like interior design software can help you visualize and plan your dream space before the first brick is even laid.
Find More House Plans
By Bedrooms:
1 Bedroom • 2 Bedrooms • 3 Bedrooms • 4 Bedrooms • 5 Bedrooms • 6 Bedrooms • 7 Bedrooms • 8 Bedrooms • 9 Bedrooms • 10 Bedrooms
By Levels:
By Total Size:
Under 1,000 SF • 1,000 to 1,500 SF • 1,500 to 2,000 SF • 2,000 to 2,500 SF • 2,500 to 3,000 SF • 3,000 to 3,500 SF • 3,500 to 4,000 SF • 4,000 to 5,000 SF • 5,000 to 10,000 SF • 10,000 to 15,000 SF










