4-Bedroom 2-Story Farmhouse Plan with Loft Retreat and Rear Porch Living (Floor Plan)

Specifications:
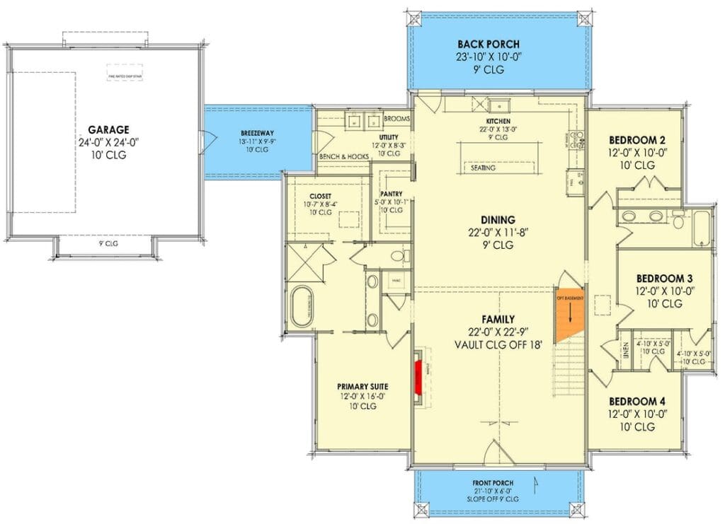
- 2,953 sq. ft.
- 4 Beds
- 2 Baths
- 2 Stories
- 2 Cars
If I could bottle up the feeling of walking into a home that instantly feels right—you know, that perfect mix of cozy charm and modern brilliance—this house plan would be it.
Picture wide-open spaces, sunlit rooms, a family room fireplace, and outdoor living galore (yes, there’s even a barbecue porch).
I’m not exaggerating when I say this plan ticks all the boxes for both comfort and curb appeal.
And whether you’re planning to buy, build, or even refinance your mortgage someday, this home’s design is one you’ll want to keep on your vision board.


Where Comfort Meets Character
The moment you step through the front door, the open layout greets you like an old friend. The family room, dining area, and kitchen flow effortlessly together, creating a space that just begs for laughter, conversation, and the occasional food fight (kidding—mostly).
But here’s what really gets me: the fireplace in the family room is visible from the kitchen island. You can actually cook dinner while basking in that cozy glow. It’s like having your own live campfire experience, minus the smoke.
The sink sits right in the island, facing the heart of the room, so you can keep up with family chatter or your favorite reality show while you cook.
And because no chef likes clutter, there’s both a walk-in pantry and a butler’s pantry. One for storage, one for style. You can stash your bulk groceries in one and still look like a master of organization when guests peek around.
Now, let’s talk practicality—because every dream home needs a little dose of reality. With today’s mortgage rates, this 2,953-square-foot masterpiece feels like a true investment in both your happiness and your future.
And as any savvy homeowner or real estate agent will tell you, smart layout and timeless design do wonders for property value.
A Bright, Airy Haven of Glass and Light
One of my favorite design details? The walls of glass. They flood the interior with natural light and bring a stunning view of the porch and backyard into every corner of the home.
Whether you’re sipping coffee in the morning or hosting a sunset dinner, the seamless blend of indoors and outdoors feels magical.
With smart home technology now practically a must-have, imagine how incredible this space could feel with automated blinds, energy-efficient lighting, and voice-controlled climate settings.
You could be flipping burgers on the barbecue porch while adjusting the indoor temperature with a simple voice command. Pretty cool, right?
And if you’re still figuring out your layout or furniture, you can play around with interior design software to visualize every inch of your farmhouse paradise before moving in. It’s like creating your dream Pinterest board in real life.
The Master Suite: Your Sanctuary Awaits
Let’s be honest—everyone secretly judges a house by its master suite. This one? It’s downright dreamy.
The tray ceiling adds a sense of grandeur, while a private door opens directly to the back porch—perfect for sneaking out with your morning coffee before anyone else wakes up.
Each of the home’s four bedrooms has its own walk-in closet, so no one has to fight over storage space. You could probably even use one as a mini boutique or dressing room (I won’t tell).
The master suite also boosts property value, especially for buyers who appreciate smart floor planning. And when you pair that with home insurance coverage tailored to protect a build of this quality, you’re looking at both peace of mind and a home that’s built to last.

The Perfect Plan for Family and Function
Split bedrooms might sound like a technical detail, but it’s actually genius. The master suite sits on one side of the home, while the secondary bedrooms are tucked neatly on the other. Translation: privacy. Parents can relax in their wing while the kids or guests enjoy theirs, and everyone wins.
Upstairs, the loft area offers flexibility galore. Need a home office? A cozy reading nook? A playroom for the kids? Done.
It’s the kind of adaptable space that keeps giving—especially if you’re working with a home remodeling contractor who can customize it later.
Speaking of flexibility, there’s optional bonus space waiting for you to finish when you’re ready.
That’s the beauty of a well-thought-out design—you can build at your own pace and budget. A building cost estimator tool can help you crunch the numbers and see what works best before you dive in.
Outdoor Living, Elevated
Modern farmhouse living wouldn’t be complete without the great outdoors—and this plan nails it. There’s an expansive rear porch and an additional deck perfect for entertaining.
Throw in a barbecue grill, comfy seating, and maybe even a string of café lights, and you’ve got yourself the ultimate backyard retreat.
And here’s where home equity loans or home improvement loans come into play. You can use them to add that outdoor kitchen, install the best home security system, or build your dream firepit setup without draining your savings.
The key is treating each upgrade as both a lifestyle perk and an investment in your home’s long-term property value.
The side-load garage also gives this home a clean, elegant curb appeal—especially handy for a corner lot. Pulling into your driveway feels less like a routine chore and more like arriving at your personal country retreat.
Style Meets Smart Spending
I’ll be honest—building a home this beautiful doesn’t come cheap. But with the right planning, it’s totally achievable. Getting a home loan pre-approval is step one.
Once you know your budget, you can work with a real estate agent and use online building cost estimators to keep everything on track.
And when you’re comparing mortgage rates, remember: you’re not just buying walls and windows. You’re investing in your peace, comfort, and memories that will last for years. Plus, maintaining a solid credit score means you’ll score better loan terms and potentially save thousands over time.
Once construction is complete, it’s wise to look into a home warranty. It’ll protect you from unexpected repair costs—because even the best-designed homes occasionally need a little TLC.
So yes, building your modern farmhouse might take planning, patience, and a few spreadsheets, but it’s all worth it when you’re sipping lemonade on that back porch, watching the sunset glow against your new home’s gleaming white exterior.
Living Large in the Modern Farmhouse of Your Dreams
This modern farmhouse isn’t just a pretty face—it’s designed for real life. Every inch of its 2,953 sq. ft. feels intentional, from the vaulted ceilings to the split-bedroom layout.

It’s a home that perfectly balances openness and coziness, sophistication and simplicity. And the best part? It’s built to grow with you—your lifestyle, your family, and even your investment goals.
A Two-Story Great Room That Steals the Show
Let’s start with the heart of the home—the vaulted family room. It’s big, bright, and breathtaking. The soaring ceiling gives you that “wow” moment every time you walk in, while the fireplace anchors the space with warmth and charm.
Picture lazy Sunday mornings here, coffee in hand, sunlight streaming through walls of glass, and the faint crackle of the fire in the background.
This family room seamlessly opens to the dining area and kitchen, so even when you’re hosting guests or corralling kids, you’ll always feel connected. It’s that open layout magic—where everyone can laugh, cook, and hang out together without feeling cramped.
The flow of this space doesn’t just create comfort—it enhances property value too. Any real estate agent will tell you that homes with open floor plans and natural light command attention in today’s market.
And if you ever decide to refinance your mortgage or buy a second property, the value of this design will only shine brighter.
A Kitchen That Makes You Want to Cook
Now, let’s talk about the kitchen—because this one deserves a standing ovation. The large island, complete with a forward-facing sink, lets you prep meals while chatting with guests or watching a movie by the fireplace. And between the walk-in food pantry and the butler’s pantry, storage battles are officially over.
You could practically run a small catering business from here. The setup is efficient, stylish, and undeniably functional. Whether you’re making Sunday pancakes or hosting Thanksgiving dinner, this space is ready for it all.
If you’re planning finishes and layouts, interior design software can help visualize the perfect balance of modern and farmhouse charm. Think quartz countertops, open shelving, and a farmhouse sink that feels timeless.
And when it’s all said and done, protecting it with home insurance and a solid home warranty just makes sense—because this kitchen is an investment worth safeguarding.
A Master Suite Made for Peace and Privacy
If home were a sanctuary, this master suite would be the holy grail. Located on one side of the home for maximum privacy, it’s your personal retreat after a long day. The tray ceiling adds elegance, while the private door to the back porch gives you easy access to peaceful mornings and quiet nights.
And yes—there’s a massive walk-in closet. Actually, every bedroom in this house comes with one. So, if you’ve ever dreamed of color-coded wardrobes or a shoe collection worthy of a boutique, here’s your chance.
This master suite’s design isn’t just about comfort—it’s also about property value. Luxurious bedroom suites are high on every buyer’s wish list, and this one checks every box. Add some smart home technology (like automated lighting and climate control), and it becomes a next-level retreat.
If you ever use a home equity loan to add built-ins or upgrade your bathroom finishes, those improvements can further boost both livability and resale potential.
Split Bedrooms for Smart Living
The split-bedroom design is one of the unsung heroes of this floor plan. With the master suite on one side and secondary bedrooms on the other, everyone gets privacy without sacrificing togetherness.

It’s perfect for families with kids, frequent guests, or even multigenerational living. The layout makes daily life easier and more peaceful—no more hallway traffic jams or bedtime noise battles.
This thoughtful design is also great if you ever plan to buy or build this home as an investment. Homes with well-separated sleeping zones tend to attract more buyers and renters because they offer flexibility and comfort in equal measure.
Loft Living and Optional Bonus Space
Upstairs, the spacious loft opens the door to endless possibilities. It can become a cozy reading nook, a home office, a playroom, or even a media zone. The beauty lies in the flexibility—it’s a space that evolves as your needs change.
And when you’re ready, the optional bonus space can be finished later. Maybe it becomes a guest suite, a gym, or a creative studio. Working with a home remodeling contractor can help tailor this area exactly to your liking.
To stay on budget, a building cost estimator is your best friend. It helps plan expenses before breaking ground on new features—because nothing ruins a renovation buzz faster than unexpected costs.
And if you ever fund these upgrades through home improvement loans, you’ll be investing in your home’s long-term appeal and property value.
Outdoor Living Spaces that Redefine Relaxation
No modern farmhouse is complete without outdoor living—and this plan takes it to the next level. The back porch, the deck, and the breezeway make outdoor gatherings effortless. Whether you’re hosting a summer barbecue or enjoying a quiet evening by candlelight, this home delivers.
The barbecue porch is an entertainer’s dream. Imagine grilling steaks while chatting with friends under the stars. Add a sound system, some string lights, and maybe even a pergola—suddenly, your backyard becomes a destination.
The outdoor setup is also ideal for home equity loan upgrades. From an outdoor kitchen to built-in seating, every addition adds lifestyle value. And for peace of mind, investing in the best home security system keeps your property safe while you’re enjoying those long evenings outside.
The side-load garage adds curb appeal, especially on a corner lot. It keeps the front façade clean and elegant, giving the home that “model house” look every time you pull in.
A Smart Approach to Building and Buying
Building your dream home is exciting, but let’s be honest—it’s also a financial journey. Getting home loan pre-approval helps you understand what’s possible before you dive in.
Comparing mortgage rates gives you a clearer idea of your options, while maintaining a healthy credit score ensures you get the best terms possible.
And once you move in, having home insurance and a home warranty in place gives you peace of mind that your investment is protected—because beautiful homes deserve proper protection.
If you ever decide to refinance your mortgage, you can use your growing equity to fund upgrades or simply enjoy lower payments.
Every choice you make along the way—whether it’s a new addition, a security upgrade, or a renovation—builds toward lasting property value.

What I love most about this 4-bedroom modern farmhouse is that it’s timeless. It’s not just a house you purchase; it’s one you grow into.
From its vaulted ceilings to its open kitchen and walls of glass, it’s a design that feels warm, bright, and alive.
This home doesn’t just look good—it lives well. It’s a place where kids can grow, guests can gather, and you can enjoy every season of life surrounded by light, laughter, and that undeniable farmhouse charm.
And at the end of the day, that’s what truly makes this house plan special. It’s not just an investment in real estate—it’s an investment in your future, your comfort, and your story.
Because when a house is designed this thoughtfully—with style, space, and purpose—it doesn’t just shelter you. It welcomes you home.
Building or buying a home isn’t just about picking the perfect house plan—it’s also about making smart long-term choices. From comparing mortgage rates to finding a trustworthy real estate agent, every decision adds value. Don’t forget to explore options like home insurance, home warranties, and potential refinance opportunities to protect your investment.
Want to boost your property value? Consider installing solar panels, upgrading to energy-efficient appliances, or integrating a smart home system. Plus, tools like interior design software can help you visualize and plan your dream space before the first brick is even laid.
Find More House Plans
By Bedrooms:
1 Bedroom • 2 Bedrooms • 3 Bedrooms • 4 Bedrooms • 5 Bedrooms • 6 Bedrooms • 7 Bedrooms • 8 Bedrooms • 9 Bedrooms • 10 Bedrooms
By Levels:
By Total Size:
Under 1,000 SF • 1,000 to 1,500 SF • 1,500 to 2,000 SF • 2,000 to 2,500 SF • 2,500 to 3,000 SF • 3,000 to 3,500 SF • 3,500 to 4,000 SF • 4,000 to 5,000 SF • 5,000 to 10,000 SF • 10,000 to 15,000 SF










