4-Bedroom 2-Story Farmhouse Plan With 3-Car Side Entry Garage and Outdoor Living Space (Floor Plan)

- 3,472 sq. ft.
- 4 Beds
- 3.5 Baths
- 2 Stories
- 3 Cars
Let me just say it: I’m in love with this house. You know how you walk into some homes and immediately want to throw your credit score at them?
Yeah, this is one of those.
It’s got everything you could possibly want in a modern farmhouse—and maybe a few things you didn’t know you needed until now (hello, barbecue porch).
But this beauty isn’t just about charm; it’s got function, flow, and the kind of smart features that would make your real estate agent do a happy dance.
So grab your cup of coffee, pretend you’re already living here, and let me take you on a little tour of a house plan that could be your best investment yet.
From the outside, this modern farmhouse doesn’t just whisper curb appeal—it shouts it from the rooftops (but in a classy, Southern-drawled kind of way).


First Impressions Matter—And This One Wows
With its classic Georgian symmetry and elegant round windows on both ends, it’s the kind of house that makes people slow down when they drive by.
You’ll know what I mean the moment you see those arched transoms topping the dining and living room windows. They’re not just pretty; they make the home feel grand without feeling… well, intimidating.
Oh, and did I mention the side-load garage? This baby was built for corner lots, making it as practical as it is gorgeous. If you’re trying to impress guests, the curving staircase in the foyer will do that in two seconds flat.
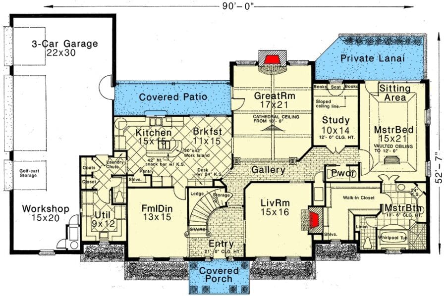
A Kitchen That Makes You Look Like You Know What You’re Doing
Whether you’re a five-star chef or just someone who excels at reheating leftovers, this kitchen will make you feel like a culinary genius.
It’s open to the family room (yes, with a fireplace—cue cozy evenings), and the sink is in the island facing forward, so you can chat with your family or spy on your dog instead of staring at a wall while doing dishes.
But the real showstopper? The walk-in food pantry and the butler’s pantry. Two pantries. That’s double the storage, double the organization, and double the justification for your bulk Costco runs.
And if you’re thinking long-term, these smart features can help maintain your property value, making your future home equity loan conversations go a lot smoother.
Natural Light and Big Glass Dreams
You haven’t truly lived until you’ve stood in a great room with vaulted, beamed ceilings and walls of glass that let in light like a golden retriever lets in love—freely and enthusiastically.
These windows don’t just light the room; they open it up to the outdoors, connecting your living space to the barbecue porch and backyard.
This seamless blend of indoor-outdoor living means you can throw unforgettable parties, grill like a pro, or just sit with your dog and a good book, feeling like you’ve won at life.
And let’s be honest, that kind of emotional satisfaction? It beats scrolling through interior design software trying to fake the vibe.
A Master Suite That Deserves a Crown
Let’s talk about your future bedroom. This master suite is a showstopper. It’s large, luxurious, and topped with a beautiful double tray ceiling that screams elegance.
And yes, there’s a private door to the back porch—perfect for those quiet, early mornings when it’s just you, the sunrise, and a steaming cup of coffee.
Need more to love? You’ve got a spacious walk-in closet, of course. But there’s also a private lanai where you can hide from responsibilities (or your kids) for a bit.
This is the kind of retreat that makes you feel like you’ve stepped into a resort—without the overpriced mini-bar.
Plus, investing in a home with this level of comfort and quality increases your property value, which is a win if you’re thinking about a future refinance mortgage or just bragging rights at the next neighborhood potluck.

Bedrooms With Personality (and Storage)
Moving upstairs, you’ll find three more bedrooms, and they all come with walk-in closets. Every single one.
No more arguing over closet space or hiding your winter clothes under the bed.
These bedrooms are big, bright, and perfect for guests, kids, or even that home office you swear you’ll keep clean this time.
And let’s not forget the bonus space. It’s optional now, but when you’re ready, it’s there waiting.
Home gym? Movie room? Secret lair? The possibilities are endless—and that kind of flexibility is great for both living and resale. Smart investment, right?
Speaking of planning ahead, this is the perfect moment to mention home warranty options. Trust me, when your air conditioner decides to break mid-summer, you’ll be glad you thought ahead.
Smart Layout, Smarter Living
This floor plan is all about flow. With split bedrooms for privacy and wide-open common areas for gathering, it’s the kind of layout that works for both everyday living and entertaining.
You’ve got formal rooms flanking the foyer for those fancier occasions, and then you can shift gears into casual comfort in the vaulted great room at the back.
Having a clear idea of your floor plan like this one can help during the home loan pre-approval process, especially when working with your real estate agent or using a building cost estimator to stay on budget.
And if you’re still in the “dreaming but not buying yet” phase, it doesn’t hurt to test out a few layouts with your favorite interior design software just to see how things could look once you move in and start decorating.
Covered in Charm, and Also Porches
Front porch? Check. Back porch? Check. Barbecue porch? Oh, absolutely check.
You could practically live outside if you wanted to. Whether you’re sipping sweet tea in a rocking chair or firing up the grill for the big game, this house has your outdoor living dreams covered.
Porches are more than just pretty features—they’re functional spaces that increase livable square footage and appeal to buyers, making your purchase even more worthwhile down the road.
And with the rise of smart home technology, you could even install the best home security system to keep your home safe while you’re out there flipping burgers.
Peace of mind and grilled perfection? Yes, please.
Elegant Formal Spaces and a Grand First Impression
This house knows how to make an entrance—literally.
Step through the front door and you’re greeted by a gracefully curved staircase in the foyer, flanked by formal living and dining rooms that each wear their own arched transom windows like crown jewels.
These details don’t just make a statement—they boost property value and add timeless appeal.
Entertaining here feels upscale without being stuffy. You could easily host a candlelit holiday dinner in the formal dining room or let your future real estate agent use it as selling when you’re ready to make a smart investment move.
A Vaulted Great Room That Steals the Show
Toward the back of the home lies the heart of the design: a vaulted and beamed great room with enough space to host movie nights, birthdays, or even a dance-off if that’s your thing.
The soaring ceiling adds drama, while the walls of glass let in natural light and frame gorgeous views of the outdoor living area.
This spacious room is ideal for quality time with the family, and it seamlessly connects to the kitchen, keeping everyone in the mix.
From a financial angle, design choices like this elevate both lifestyle and long-term home equity, especially when paired with thoughtful lighting and smart home technology upgrades.
A Kitchen Designed for Daily Life and Gourmet Dreams
At the center of the open layout sits a show-stopping kitchen—big, beautiful, and fully equipped to handle everything from midnight snacks to Sunday brunches.
The island, complete with a forward-facing sink, keeps you involved in the action while prepping meals or rinsing veggies. No more staring at a wall while your friends chat in the family room.
And yes, this kitchen comes with both a walk-in pantry and a butler’s pantry. That’s not just luxury—it’s practical.
You can store bulk items, prep for entertaining, and hide clutter from guests.

Efficiency like this saves time and money, which matters when you’re managing your home insurance, budgeting with a building cost estimator, or eyeing future home remodeling contractor projects.
Outdoor Living Done Right With Multiple Porches
Let’s talk porches—because this home goes all-in. You’ve got a covered front porch for rocking chairs and neighbor-waving, a rear porch with backyard access, and the cherry on top: a barbecue porch designed to host your legendary cookouts.
These outdoor living spaces aren’t just relaxing; they expand your usable square footage and provide long-term investment benefits.
Plus, they’re perfect for integrating features from the best home security system or smart outdoor lighting, keeping your home secure while you enjoy the evening breeze.
A Private Master Suite With Resort-Like Comfort
The master suite in this plan is no afterthought—it’s a sanctuary. Double tray ceilings elevate the room with layered elegance, and the private lanai access gives you your own personal connection to the outdoors. Morning coffee in peace? Yes, please.
Inside, the massive walk-in closet is a dream come true, and the en-suite bath is ready for pampering.
Luxuries like this make your home feel like a retreat and add serious weight to your home’s appraised value, especially when considering a future refinance mortgage or prepping for home loan pre-approval.
This is where you recharge, where the day melts away, and where the financial confidence of homeownership really sinks in.
Three Spacious Upstairs Bedrooms With Walk-In Closets
Upstairs, the plan keeps delivering. Each of the three additional bedrooms features its own generously sized walk-in closet.
Whether you have kids, guests, or are thinking resale, this setup ticks every box. Bonus? No fighting over closet space. Everyone wins.
These well-sized rooms are a standout for growing families or anyone looking to buy with an eye toward resale. As your needs evolve, they can transform into home offices, hobby spaces, or guest suites.
Add in a bit of custom décor using your favorite interior design software, and suddenly, they’re more than just bedrooms—they’re multi-purpose masterpieces.
Flexible Bonus Space to Expand As You Grow
There’s a bonus space upstairs that’s optional—but let’s be honest, it won’t stay unfinished for long.
This area is primed for a home theater, gym, or whatever Pinterest project you’ve been dreaming about. The point is, you can expand as your life changes.
And if you’re not ready to tackle it now? No worries. With time, you can finish it using a home improvement loan or by tapping into the home equity you’ve built up.
Having flexible space like this adds not only daily convenience, but also future-proofing for your lifestyle—and your finances.
A Three-Car Side-Load Garage With Room to Spare
Let’s not forget the side-load garage. Designed for up to three vehicles, it’s the kind of garage that doesn’t just store cars—it adds beauty and functionality.
The side placement keeps the front of the home clean and symmetrical , and the 938 sq. ft. space provides plenty of storage for tools, sports gear, or even your own workshop.
This design choice is perfect for corner lots and adds practical curb appeal that’s often overlooked.
And when you’re chatting with your lender about your mortgage rates, features like this might just push your property value higher.
A Plan That Balances Beauty and Brains
What I love about this house is that it’s not just beautiful—it’s smart. The layout has intention. The features aren’t flashy just for the sake of it; they serve real needs.
Walk-in closets in every bedroom. A kitchen that functions like a pro chef’s playground. Seamless transitions between formal and casual spaces.

All of it comes together to make everyday living easier and more enjoyable. And from a money perspective? It’s a solid move.
When you’re thinking about how to purchase a home that delivers both comfort and long-term value, this plan checks every box—while staying flexible for the future.
This isn’t just another house plan—it’s a well-balanced mix of elegance, efficiency, and enduring value.
From its striking front elevation to the luxurious master suite, from the open-concept living spaces to the thoughtful storage and porches—it’s clear this home was designed to grow with you, support your lifestyle, and hold its worth.
If you’re thinking about buying, now’s the time to explore mortgage rates, connect with your real estate agent, and consider the long-term value of owning a home that makes life better in every square foot.
Whether it’s the joy of grilling on your back porch, the peace of knowing your home insurance is protecting your investment, or the pride of growing your home equity, this plan delivers.
And honestly? It feels good knowing you’ve found a home that’s not just smart for your future—but also a joy to live in right now.
Building or buying a home isn’t just about picking the perfect house plan—it’s also about making smart long-term choices. From comparing mortgage rates to finding a trustworthy real estate agent, every decision adds value. Don’t forget to explore options like home insurance, home warranties, and potential refinance opportunities to protect your investment.
Want to boost your property value? Consider installing solar panels, upgrading to energy-efficient appliances, or integrating a smart home system. Plus, tools like interior design software can help you visualize and plan your dream space before the first brick is even laid.
Find More House Plans
By Bedrooms:
1 Bedroom • 2 Bedrooms • 3 Bedrooms • 4 Bedrooms • 5 Bedrooms • 6 Bedrooms • 7 Bedrooms • 8 Bedrooms • 9 Bedrooms • 10 Bedrooms
By Levels:
By Total Size:
Under 1,000 SF • 1,000 to 1,500 SF • 1,500 to 2,000 SF • 2,000 to 2,500 SF • 2,500 to 3,000 SF • 3,000 to 3,500 SF • 3,500 to 4,000 SF • 4,000 to 5,000 SF • 5,000 to 10,000 SF • 10,000 to 15,000 SF










