4-Bedroom 2-Story Contemporary Northwest House with Guest Suite (Floor Plan)

Specifications:
- 4,505 Sq Ft
- 4 Beds
- 4.5 Baths
- 2 Stories
- 3 Cars
I’ve seen plenty of house plans, but this 5-bedroom Contemporary Northwest home caught my attention for how perfectly it balances everyday comfort with stunning design.
With 4,505 square feet of living space spread over two stories, plus a 3-car garage that could make any car enthusiast grin, this plan feels like it’s made for living large — without wasting a single corner.
Let’s take a tour through each part of this layout and see why it just works.


The Grand Entrance and Foyer Flow
The moment you step through the front door, you’re greeted by a foyer that’s open to above — meaning you get that dramatic “wow” effect right away.
The natural flow leads your eyes straight into the great room, and you instantly sense how open and connected everything feels.
This layout’s flow reminds me why a good real estate agent always says “first impressions matter.”
The open foyer and soaring ceiling give the home an elevated feel, something that adds instant property value.
And honestly, it’s just satisfying to walk into a house that breathes.
The Great Room
From the foyer, the great room takes center stage — a massive, open space with its own fireplace and vaulted ceiling.
The design keeps the great room open to the kitchen and dining areas, making it ideal for casual hangouts or big celebrations.
I love how this layout encourages togetherness.
It’s perfect for movie nights or lazy weekends.
Plus, the large windows pull in light from the covered patio, creating that seamless indoor-outdoor connection that’s a Northwest signature.
And if you ever decide to install the best home security system, this central space gives you a perfect overview of the home’s main zones.
This kind of design doesn’t just make life comfortable — it’s also a smart investment.
Open layouts like this tend to increase property value, which comes in handy if you ever refinance your mortgage or explore a home equity loan down the road.
The Kitchen and Dining Connection
Just off the great room sits a chef’s dream — the kitchen.
Its generous island doubles as prep space and a casual breakfast bar.
To one side, the dining area sits perfectly placed for family dinners or quick meals before dashing out the door.
The flow here is flawless.
You can cook, serve, and chat without missing a beat.
The walk-in pantry is tucked right behind the kitchen, offering storage space that would make any baker or snack-lover happy.
It’s the kind of space that makes you think about long-term living — where modern smart home technology could control your lighting or appliances, and interior design software could help you visualize decor changes before you commit.
These touches don’t just make daily life easier; they can help you estimate your building cost if you plan to upgrade later using a home improvement loan.
The Guest Suite
The main-floor guest suite feels like a mini luxury apartment.

With its own guest bath, walk-in closet, and direct access to the covered patio, it’s a space where visitors can truly unwind.
This private suite is smartly placed at the back of the house, away from the main activity zones.
It’s perfect for hosting family or friends without anyone feeling cramped.
And if you’ve ever had a guest stay too long, you’ll appreciate how this layout gives them space — but not too much space!
Design-wise, it’s also a clever investment.
A private guest suite like this increases your property value and can even serve as a future office or multi-generational living area.
With the right home warranty and home insurance, you’re covered for comfort and protection at the same time.
Office and Mudroom Efficiency
Near the guest suite sits a roomy office — ideal for remote work or managing household tasks.
It’s quietly separated from the main living area, so you can focus without distractions.
Across the hall, the mudroom connects the garage to the interior, keeping daily clutter in check.
I’m always impressed by how these practical spaces make the entire home function better.
The 3-car garage leads straight into this mudroom, and right next door you’ll find a half bath and coat closet — the kind of small details that make life smoother.
If you’ve ever tried to calculate remodel costs using a building cost estimator, you’d know that functionality like this pays off in the long run.
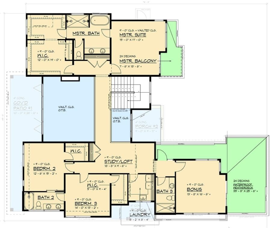
The Stairs That Lead to Serenity
Head up the stairs, and you’ll discover that the second floor feels like an entirely new world.
The study/loft sits at the top landing, acting as a bright and open hub for reading, homework, or just sipping coffee with a view of the lower level.
It’s these thoughtful spaces that make the design stand out.
Instead of wasting square footage on empty hallways, the plan uses every inch wisely — a strategy that any home remodeling contractor would admire.
The Master Suite
Now, let’s talk about the master suite — the crown jewel of the second floor.
With a vaulted ceiling, private balcony, and spa-style bathroom, it feels more like a resort than a bedroom.
The ensuite features dual sinks, a soaking tub, and a walk-in shower, all leading to a massive walk-in closet that could practically qualify as another room.
The placement is smart too — tucked away for peace and privacy, yet close enough to the other bedrooms for convenience.

It’s the kind of suite that makes you feel rewarded every day.
And if you’re planning to buy or purchase this home, the master suite alone might convince your lender to fast-track your home loan pre-approval.
Homes with luxurious, private retreats like this tend to hold strong property value, especially when mortgage rates shift and buyers seek comfort they can’t find in older layouts.
Bedrooms That Balance Family and Flexibility
Two more bedrooms share this upper level, each with walk-in closets and access to a full bathroom.
These rooms are ideal for family, guests, or creative spaces like a craft room or gym.
The proportions are generous, and the closets?
A dream for anyone who’s ever run out of storage.
Between them sits the laundry room, conveniently located on the same floor as the bedrooms — no more hauling baskets up and down stairs.
It’s these everyday conveniences that quietly boost your property value and make you fall in love with your home over and over.
The Bonus Room
Then there’s the bonus room, and honestly, I’d probably lose hours here.
It could be a home theater, playroom, or personal fitness zone.
With a private bathroom nearby and easy access to the weatherproof deck, this room becomes the wildcard of the floor plan — ready to adapt to whatever your life needs.
If you’ve ever explored home improvement loans for creating a game room or entertainment space, you’ll appreciate how this area is prepped for upgrades.
And with home insurance protecting your investment, you can rest easy while having fun.
Outdoor Spaces Made for Living
What’s a Northwest home without outdoor living?
This plan includes two covered patios on the main level and two upper decks, connecting you to the outdoors all year long.
The main patio extends the great room, while the upper deck off the bonus room feels like an entertainer’s dream.
Add cozy seating, maybe a firepit, and some ambient lighting — it’s easy to imagine spending most evenings here.
These outdoor areas not only expand your living space but also boost property value, especially if you ever decide to refinance your mortgage or list your home for sale.
Every corner of this 4,505-square-foot Contemporary Northwest home feels intentional — from the open foyer to the secluded master suite.
It’s a design that blends elegance, practicality, and long-term value.

This plan isn’t just a blueprint; it’s a lifestyle built around comfort and smart design choices.
Whether you’re upgrading through a home equity loan, protecting your investment with home insurance, or simply dreaming about future home improvement projects, this layout makes it all worthwhile.
For me, it’s more than just a house plan — it’s a reminder that great design isn’t about size or status.
It’s about balance, flow, and spaces that make you feel at home every single day.
Building or buying a home isn’t just about picking the perfect house plan—it’s also about making smart long-term choices. From comparing mortgage rates to finding a trustworthy real estate agent, every decision adds value. Don’t forget to explore options like home insurance, home warranties, and potential refinance opportunities to protect your investment.
Want to boost your property value? Consider installing solar panels, upgrading to energy-efficient appliances, or integrating a smart home system. Plus, tools like interior design software can help you visualize and plan your dream space before the first brick is even laid.
Find More House Plans
By Bedrooms:
1 Bedroom • 2 Bedrooms • 3 Bedrooms • 4 Bedrooms • 5 Bedrooms • 6 Bedrooms • 7 Bedrooms • 8 Bedrooms • 9 Bedrooms • 10 Bedrooms
By Levels:
By Total Size:
Under 1,000 SF • 1,000 to 1,500 SF • 1,500 to 2,000 SF • 2,000 to 2,500 SF • 2,500 to 3,000 SF • 3,000 to 3,500 SF • 3,500 to 4,000 SF • 4,000 to 5,000 SF • 5,000 to 10,000 SF • 10,000 to 15,000 SF










