4-Bedroom 1-Story Transitional House with Finished Lower Level (Floor Plan)

Specifications:
- 5,560 Sq Ft
- 4 Beds
- 4.5+ Baths
- 1 Stories
- 4 Cars
I’ve looked at a lot of floor plans—but few deliver the level of balance and beauty this one does.
This single-story transitional house plan spans an impressive 5,560 square feet, blending refined layout choices with livable comfort.
With 4 bedrooms, 4.5+ baths, and a massive finished lower level, this home is designed for anyone who needs space, flow, and flexibility.
And the best part?
It manages to feel luxurious and down-to-earth at the same time.
Let’s explore how the design comes together.


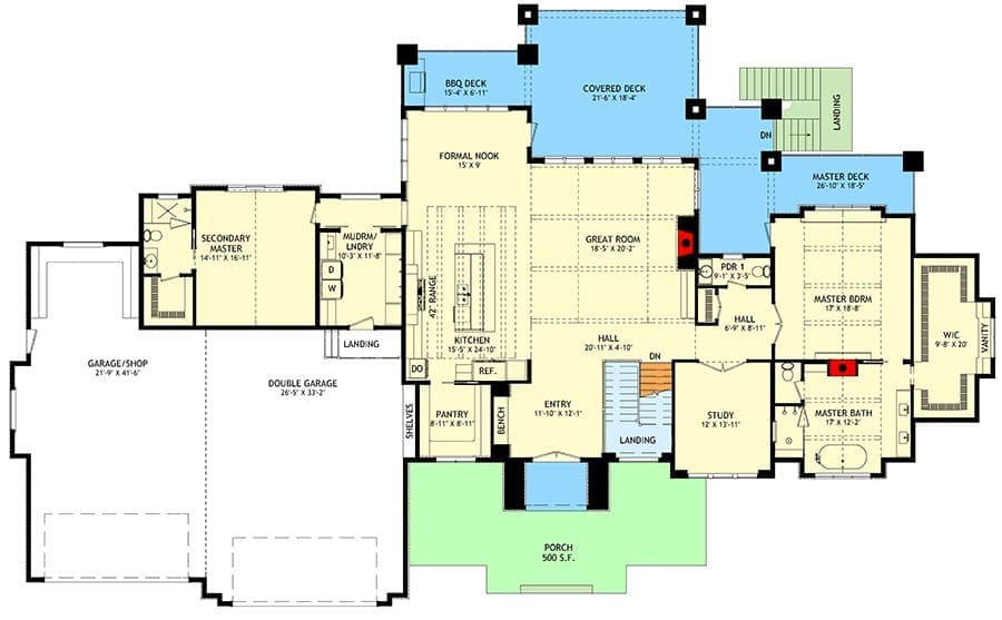
Expansive One-Story Living with Smart Layout
The main floor’s 3,122 square feet are a masterclass in how to make one-level living feel both open and grounded.
This isn’t your typical ranch-style layout—this is next-level transitional design that creates connection between rooms while maintaining individual purpose.
The open-concept great room, kitchen, and dining areas are the heart of the home.
The flow between these spaces is natural, making it ideal for both day-to-day family life and larger gatherings.

Whether you’re making breakfast or hosting game night, this layout keeps everyone connected without tripping over each other.
Generous sightlines, ample wall space for built-ins or art, and strategic window placement also make the interior feel even larger.
It’s a floor plan that gives you options—exactly what you want when you’re working with interior design software or planning your furniture layout with a sharp eye for style.
Private Bedroom Layout with Four Distinct Suites
In many homes, bedrooms get the short end of the square-foot stick—but not here.

This plan includes four bedrooms, each positioned for privacy and comfort.
The primary suite is placed in its own wing, completely separated from the secondary bedrooms.
This room feels like a retreat.
The size is generous, with space for a king-sized bed and a sitting area.
The en-suite bath includes double vanities, a walk-in shower, and a large soaking tub that practically demands bubble baths.
And the walk-in closet?

Let’s just say it’s big enough that it might require its own zip code.
The other three bedrooms are spaced evenly throughout the layout, each with its own full bath, making them ideal for teens, guests, or long-term family stays.
This setup provides personal space and comfort to everyone—something that future property value hinges on more than ever.
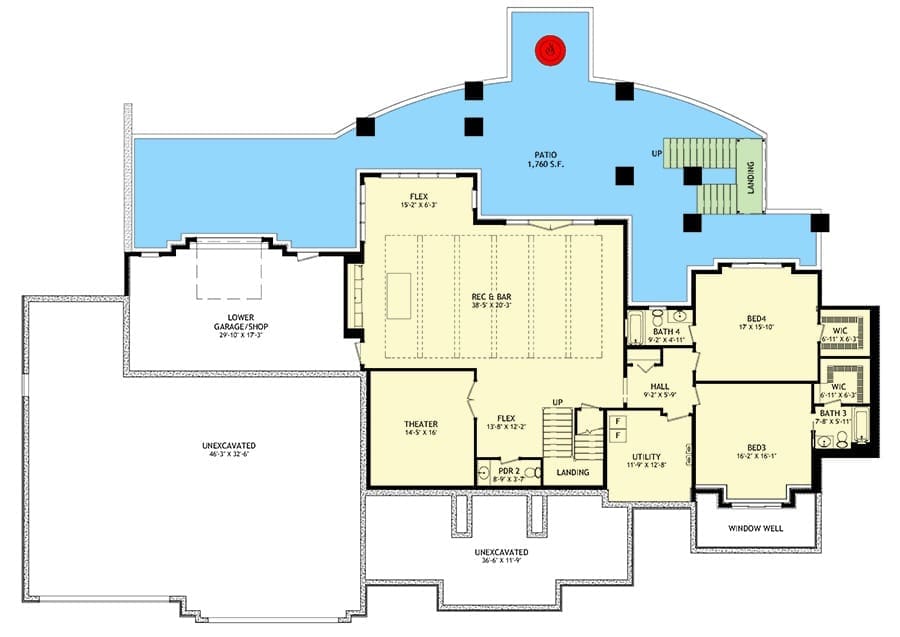
Finished Lower Level Adds Over 2,400 Square Feet of Flexible Space
What truly takes this home from “wow” to “where do I sign?” is the 2,438 square feet of finished lower level.

This isn’t just a basement—it’s a second act to the floor plan.
It opens up a whole new world of possibilities: a full entertainment zone, home gym, guest suite, craft area, or even an in-law suite.
This space is wide open, with room to customize depending on your lifestyle.
There’s also 161 square feet of unfinished basement, perfect for storage or as future flex space.
You could even consider adding a wine cellar or storm shelter.
The direct garage access on this level means you can enter from below—ideal when carrying in groceries or setting up a lower-level guest space.

And with today’s renovation options, a home improvement loan or home equity loan could help you transform this entire level into the ultimate retreat.
Oversized Garage with Drive-Under Design
The garage isn’t just big—it’s massive, with 1,730 square feet to hold up to four cars.
The drive-under design gives you both front and rear entry points, which isn’t just convenient—it’s practical.
Park the boat.
Store the ATVs.

Or just enjoy the luxury of never playing musical chairs with your vehicles.
Connected to the garage is a 537 square foot workshop, making this layout a dream come true for hobbyists or anyone who needs serious storage and workbench space.
From auto repair to woodworking, this area is ready to handle it.
And trust me, this kind of space can seriously impress when it’s time to buy, sell, or appraise.
Front and Rear Outdoor Living Built Into the Plan
No great layout is complete without outdoor living, and this plan absolutely delivers.

The 500 square foot front porch offers a classic welcoming space that’s perfect for rocking chairs and morning coffee.
But it’s the 1,760 square foot rear porch that really shines.
It connects seamlessly to the main living area, blurring the lines between indoors and outdoors.
Whether you’re entertaining or just unwinding, there’s more than enough room for an outdoor kitchen, multiple seating zones, and a dining area.
Above that, the 802 square foot deck offers yet another outdoor tier—ideal for grilling or lounging in the sun.

For anyone thinking about smart home technology or the best home security system, this floor plan allows easy integration of cameras, lighting, and automated shades across both porch and deck areas.
Square Footage That’s Maximized in Every Direction
In a house this large, smart distribution of square footage makes all the difference.
The plan includes everything you could want—without creating wasted space.
The generous width of 123’6″ and depth of 64’8″ give the house a wide, balanced footprint.

And with a maximum ridge height of 25′, the roofline maintains curb appeal without feeling overpowering.
Whether you’re using a building cost estimator to budget or planning future changes with a home remodeling contractor, this floor plan gives you the bones of a house that adapts to your life—without feeling cramped or overbuilt.
Functionality That Matches Everyday Needs
Beyond the spaciousness, this layout nails the everyday details.
The flow from garage to mudroom to kitchen is perfect for managing groceries, gear, and guests.

Powder rooms are placed for convenience.
Closets appear exactly where you need them.
These aren’t flashy features, but they’re the kind of smart choices that make daily living smoother.
And if you’re thinking long term (and you should be), this functionality adds serious weight when you’re talking to a real estate agent, calculating mortgage rates, or looking to refinance your mortgage later on.
What makes this single-story transitional plan with finished lower level so special isn’t just its size—though, yeah, 5,560 square feet is nothing to sneeze at.

It’s how well it uses every square foot.
It’s how it blends openness with privacy, function with beauty, indoor with outdoor.
Whether you’re looking to purchase your forever home, improve your credit score to get there, or make a smart long-term investment, this layout supports your goals.
It’s a house plan that feels as good as it looks—and that’s a combination worth building on.
Building or buying a home isn’t just about picking the perfect house plan—it’s also about making smart long-term choices. From comparing mortgage rates to finding a trustworthy real estate agent, every decision adds value. Don’t forget to explore options like home insurance, home warranties, and potential refinance opportunities to protect your investment.
Want to boost your property value? Consider installing solar panels, upgrading to energy-efficient appliances, or integrating a smart home system. Plus, tools like interior design software can help you visualize and plan your dream space before the first brick is even laid.
Find More House Plans
By Bedrooms:
1 Bedroom • 2 Bedrooms • 3 Bedrooms • 4 Bedrooms • 5 Bedrooms • 6 Bedrooms • 7 Bedrooms • 8 Bedrooms • 9 Bedrooms • 10 Bedrooms
By Levels:
By Total Size:
Under 1,000 SF • 1,000 to 1,500 SF • 1,500 to 2,000 SF • 2,000 to 2,500 SF • 2,500 to 3,000 SF • 3,000 to 3,500 SF • 3,500 to 4,000 SF • 4,000 to 5,000 SF • 5,000 to 10,000 SF • 10,000 to 15,000 SF










