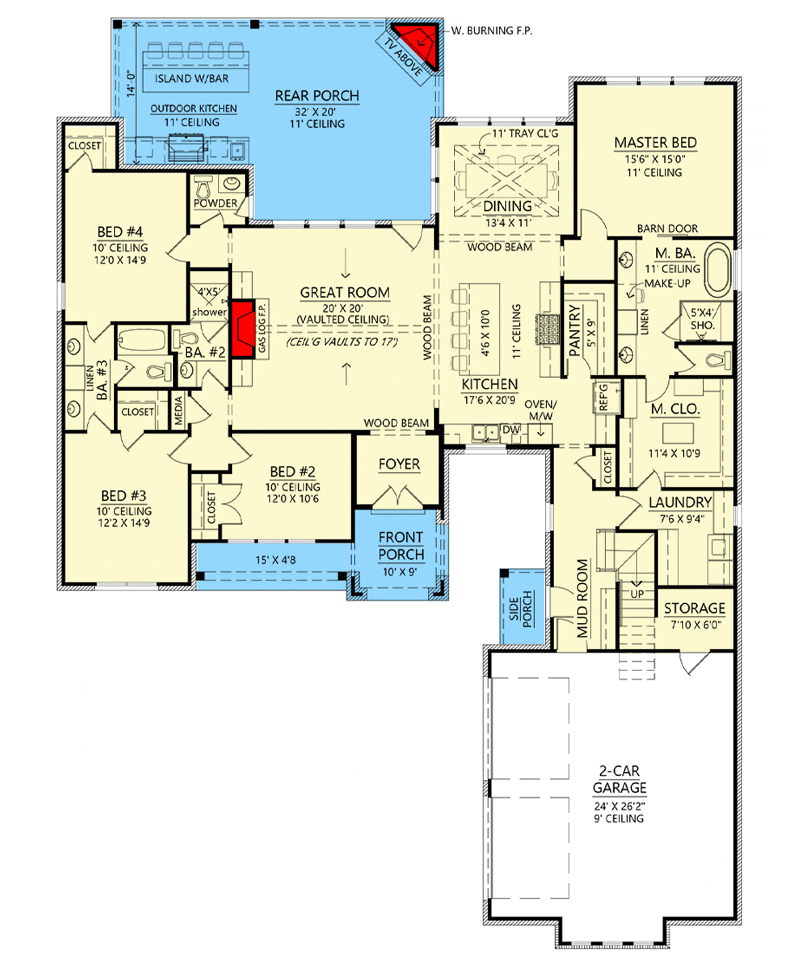
4-Bedroom 1-Story Transitional Farmhouse with Outdoor Fireplace (Floor Plan)

Specifications:
- 2,768 Sq Ft
- 4 Beds
- 3.5 – 4.5 Baths
- 1 Stories
- 2 Cars
Some house plans are functional.
Others are beautiful.
But every so often, you find one that’s both—and that’s exactly what this 2,768 square-foot transitional farmhouse delivers.
With four bedrooms, three and a half baths, a vaulted great room, and a jaw-dropping covered porch complete with its own fireplace, this home feels like it was designed for living well.
Let’s step inside and explore the details.





A Foyer That Opens into a Vaulted Great Room
The front porch leads to a welcoming foyer, and then—bam—you’re right in the great room.
With its 17-foot vaulted ceiling, the space feels airy and expansive, yet the fireplace grounds it with warmth.
This room is the heart of the plan.
Whether you’re curled up on a quiet evening or entertaining guests, the layout keeps everyone connected.
It’s also the kind of architectural feature that boosts property value over time, making the purchase as much an investment as it is a home.

A Private Wing with Three Bedrooms
On the left side of the great room, the floor plan dedicates an entire wing to secondary bedrooms.
Two are tucked behind the fireplace, joined by a Jack-and-Jill bathroom.
It’s an efficient design—each bedroom has privacy while still sharing amenities.
Nearby, a third bedroom sits closer to the front of the home.
With its placement, it could be a guest room, a study, or a teenager’s retreat.
The flexibility built into this wing makes it practical for families of all sizes.
A Master Suite Designed for Comfort
Now let’s cross the house to the right side, where the master suite enjoys its own private corner.

Spacious and peaceful, it includes a private bath and a generous walk-in closet.
The best detail?
That closet connects directly to the laundry room.
This thoughtful design streamlines everyday living.
Instead of hauling laundry across the house, everything stays close and convenient.
Small touches like this are what make the plan stand out—not only for daily comfort but also for long-term investment appeal.
Mudroom Connection to the Garage
One of the unsung heroes of this plan is the mudroom.

Located between the master suite and the garage, it acts as the perfect buffer zone.
Shoes, coats, sports gear—it all lands here before entering the main living spaces.
Connected directly to the two-car garage, this mudroom layout keeps the rest of the house clean and organized.
For buyers thinking about efficiency, this feature adds value without needing costly home improvement loans or remodels later.
Kitchen at the Heart of the Layout
The kitchen takes center stage, sitting between the great room and the dining area.
This location makes it easy to stay connected, whether you’re cooking dinner, helping with homework, or hosting a party.

Because the kitchen is such a focal point, it’s easy to picture customizing it with interior design software before purchase.
Imagine different cabinet finishes or experimenting with countertop choices virtually.
It’s the kind of detail that makes a house feel truly yours, while also safeguarding property value.
Dining That Extends Outdoors
Just off the kitchen is the dining area, perfectly positioned to flow into the rear porch.
This seamless transition between indoor and outdoor dining makes the home ideal for gatherings.
Holiday dinners inside?

Check.
Summer barbecues outside?
Double check.
The dining area becomes more than just a room—it’s a flexible space that supports both everyday life and special occasions.
The Outdoor Porch as a Living Room
The crown jewel of this floor plan has to be the rear porch.
At 640 square feet, it’s not just a porch—it’s practically an outdoor living room.

And with its fireplace, wet bar, and outdoor kitchen, it’s equipped for every season.
Picture this: crisp autumn nights by the fire, summer evenings grilling dinner, or even hosting friends for a weekend get-together.
This porch expands the living space in ways that make the entire home feel larger.
It’s also a feature that enhances long-term investment potential, as outdoor living is one of today’s most sought-after amenities.
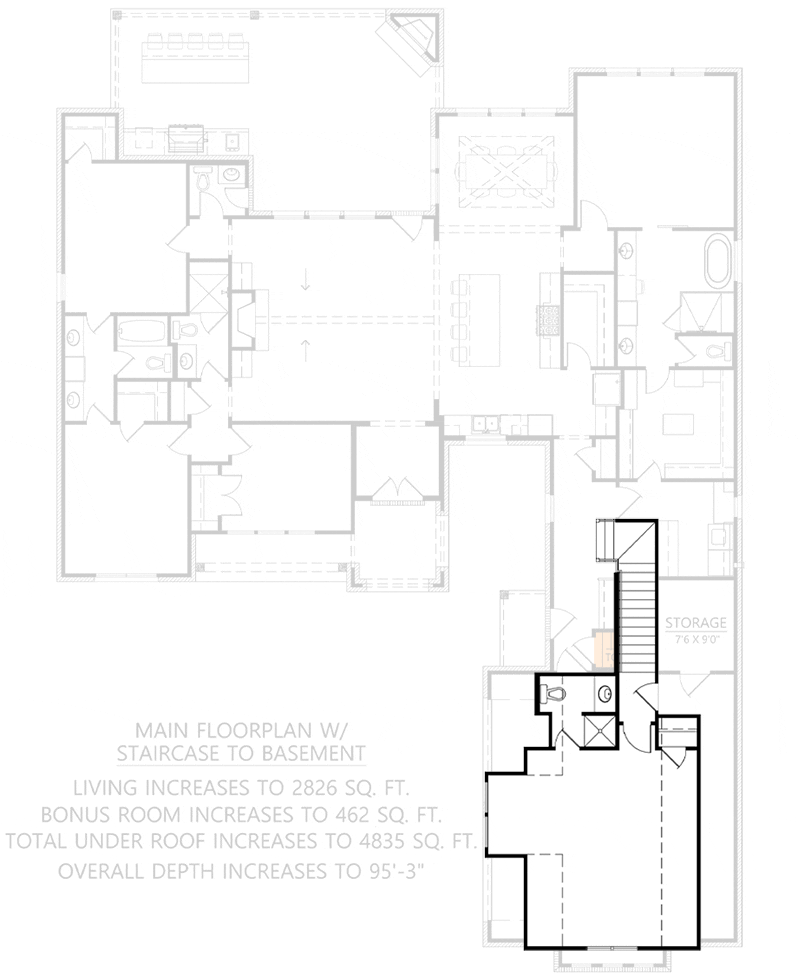
A Garage Built for More Than Cars
At 716 square feet, the two-car garage offers plenty of room for vehicles and then some.

There’s space for tools, seasonal storage, or even a small workshop.
Connected directly to the mudroom, it’s practical without being an afterthought.
For homeowners who buy with future needs in mind, this kind of garage layout is invaluable.
It provides flexibility now and saves money later on potential remodeling.
The Great Room as the Centerpiece
Returning to the vaulted great room, it’s clear why this space is the centerpiece of the floor plan.
With bedrooms to one side, the master suite on the other, and the kitchen and dining areas flowing naturally around it, everything revolves around this central hub.

The height makes it dramatic, but the fireplace keeps it welcoming.
It’s both a showpiece and a gathering space, ensuring that the home always feels like the perfect blend of style and comfort.
Everyday Living Made Easy
When you look at the whole floor plan, what stands out is how it anticipates real life.
Bedrooms are arranged for privacy.
The master suite makes laundry effortless.

The mudroom keeps clutter contained.
The garage and porch extend functionality beyond the core of the house.
Buying this home isn’t just about purchase price—it’s about investing in a design that simplifies life.
From securing home insurance to considering a refinance mortgage later, the layout supports both daily routines and long-term financial planning.
Lasting Value in Every Square Foot
At 2,768 square feet, every inch of this transitional farmhouse works hard.
Nothing feels wasted, and yet nothing feels cramped.

The vaulted ceilings, outdoor porch, and thoughtful connections between spaces create a home that feels larger than its square footage.
This isn’t just a house plan—it’s a blueprint for lasting value.
Whether you’re thinking about home equity loan options, protecting your investment with a home warranty, or simply enjoying it as your forever home, the layout provides the foundation for both comfort and security.
What makes this transitional farmhouse different is how it combines elegance with practicality.
The vaulted great room offers drama, while the outdoor porch ensures everyday enjoyment.

The bedrooms provide privacy, while the mudroom and laundry connections make chores easier.
It’s a home designed not just for now, but for the long run.
A purchase like this isn’t just about square footage—it’s about creating a lifestyle and securing an investment.
And when a floor plan delivers this much balance, you know it’s built to stand the test of time.
Building or buying a home isn’t just about picking the perfect house plan—it’s also about making smart long-term choices. From comparing mortgage rates to finding a trustworthy real estate agent, every decision adds value. Don’t forget to explore options like home insurance, home warranties, and potential refinance opportunities to protect your investment.
Want to boost your property value? Consider installing solar panels, upgrading to energy-efficient appliances, or integrating a smart home system. Plus, tools like interior design software can help you visualize and plan your dream space before the first brick is even laid.
Find More House Plans
By Bedrooms:
1 Bedroom • 2 Bedrooms • 3 Bedrooms • 4 Bedrooms • 5 Bedrooms • 6 Bedrooms • 7 Bedrooms • 8 Bedrooms • 9 Bedrooms • 10 Bedrooms
By Levels:
By Total Size:
Under 1,000 SF • 1,000 to 1,500 SF • 1,500 to 2,000 SF • 2,000 to 2,500 SF • 2,500 to 3,000 SF • 3,000 to 3,500 SF • 3,500 to 4,000 SF • 4,000 to 5,000 SF • 5,000 to 10,000 SF • 10,000 to 15,000 SF










