4-Bedroom 1-Story Mountain Craftsman House with Angled and Breezeway Attached Garages (Floor Plan)

Specifications:
- 7,410 Sq Ft
- 4 Beds
- 3.5+ Baths
- 1 Stories
- 5 Cars
I’ve always believed that the best homes don’t just look impressive—they feel right.
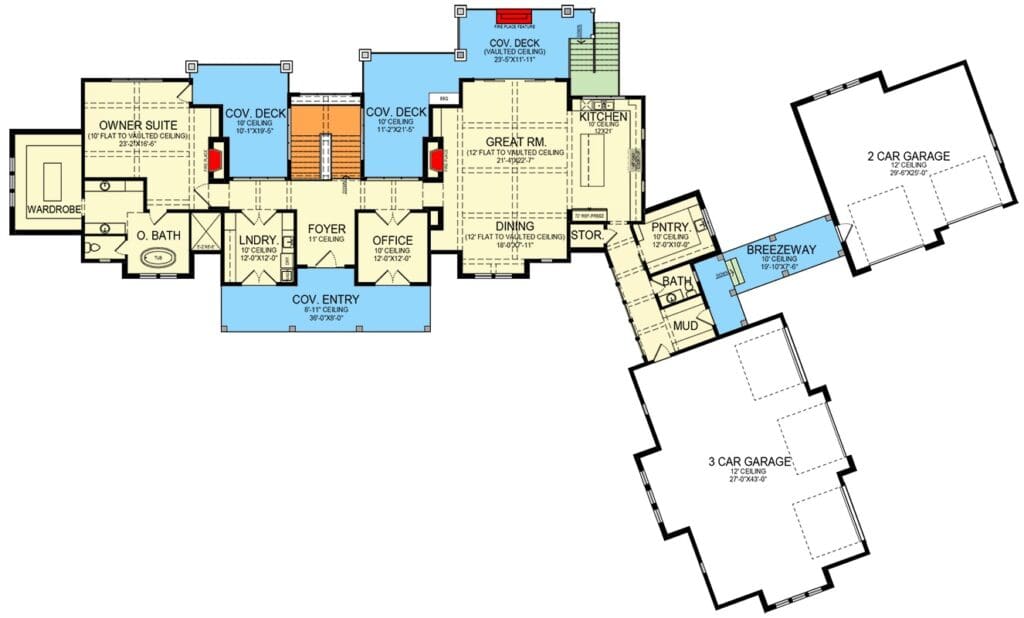
This Mountain Craftsman house plan, sprawling over a generous 7,410 square feet, is the kind of place that makes you want to toss your coat on the hook, light a fire, and never leave.
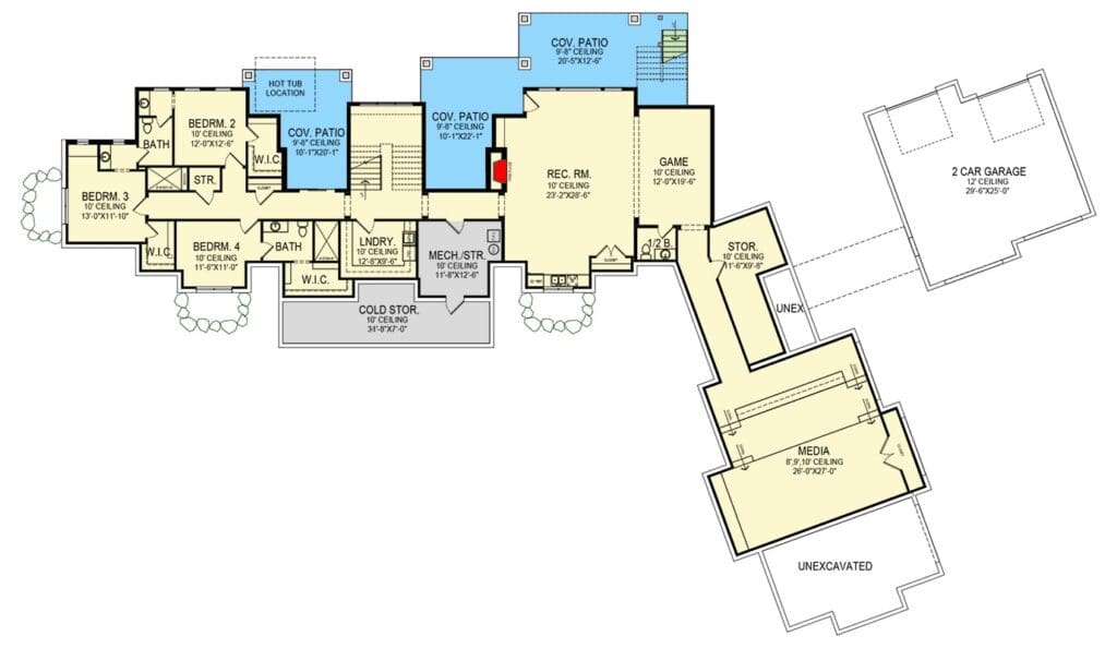
With 4 bedrooms, 3.5+ baths, and two beautifully angled garages (a 3-car and a 2-car connected by a breezeway), this single-story wonder blends rustic mountain charm with modern luxury.
Let’s step inside, shall we?


A Welcoming Entry That Feels Like a Warm Handshake
The covered entry is where first impressions happen—and this one doesn’t disappoint.
With its 8’11” ceiling and a touch of Craftsman detailing, the moment I step through the foyer’s 11-foot-high entryway, I’m greeted by an open flow that immediately feels inviting.
The natural wood tones and stone accents hint at the mountain setting, and I can’t help but think that this is where my future real estate agent would beam and say, “Now this is a property with value.”
And they’d be right—because this layout is smartly designed to make the most of every inch.
It’s the kind of thoughtful plan that could boost your property value before you even finish unpacking your boxes.
An Office That Makes Work Feel Like a Privilege
Just off the foyer sits a 12’x12’ office—a quiet corner that proves working from home doesn’t have to mean working from the kitchen table.
I can already imagine adding a few personal touches using interior design software to visualize my dream setup: bookshelves, warm lighting, maybe even a mini espresso bar (for research purposes, of course).
It’s a space that says, “Yes, I’m professional,” but also whispers, “I take my coffee very seriously.”
A Great Room That Lives Up to Its Name
Now, onto the great room—where “great” is almost an understatement.
With a 21’4” x 22’7” footprint, and ceilings that vault dramatically overhead, this space feels like it was made for laughter, family gatherings, and evenings curled up by the fireplace.
I can already picture smart home technology controlling the lighting, music, and climate with a simple voice command.
Imagine saying, “Dim the lights,” and watching the room shift from bright and energetic to cozy and romantic.
It’s the modern mountain dream.
And for anyone thinking about the investment side of homeownership, this open concept makes every square foot count—ideal for resale or for maximizing your home equity loan potential down the line.

A Dining Room That Deserves a Feast
Just off the great room, the dining space stretches out gracefully, with large windows framing mountain views.
Whether it’s a formal dinner or an impromptu pizza night, this space transforms with ease.
It connects seamlessly to the kitchen, which is always a good sign for anyone who enjoys entertaining.
After all, who wants to balance hot plates across the room when you could glide straight from stovetop to table?
The Kitchen
Ah, the kitchen—aka the soul of the house.
Measuring 12’x21’, this space is the culinary command center, complete with a massive island and a walk-in pantry big enough to make any home chef grin.
The layout makes it easy to move between prep, cooking, and plating without missing a beat.
And if you’ve ever thought about your credit score in relation to upgrading appliances or exploring refinance mortgage options for a kitchen remodel, this one already checks all the boxes.
No need for remodeling contractors here—it’s move-in ready perfection.
For the practical-minded, there’s even a storage area nearby for bulk items (because buying in bulk is the kind of investment that makes both your wallet and your stomach happy).
Luxury Meets Peace and Quiet
The owner’s suite sits on the opposite wing of the home, giving it a sense of seclusion that feels utterly luxurious.
The 23’x16’6” bedroom opens onto a private covered deck—perfect for morning coffee or late-night stargazing.
Inside, a vaulted ceiling draws your eyes upward, while the ensuite bath rivals any luxury spa.
A soaking tub, walk-in shower, dual sinks, and a wardrobe so large it could have its own zip code—this is where “home sweet home” becomes “home spectacular home.”
It’s the kind of space that makes you think about the importance of good home insurance and maybe even a home warranty, because a suite like this deserves to be protected.

Covered Decks for Year-Round Enjoyment
This plan doesn’t skimp on outdoor living.
Two covered decks—one stretching nearly 24 feet—create the ultimate relaxation zone.
Picture hosting friends for a barbecue under the vaulted ceiling, complete with mountain breezes and the smell of pine in the air.
The built-in fireplace adds the perfect cozy touch, turning chilly evenings into something to look forward to.
And with the best home security system installed, I’d have no worries about enjoying those nights in complete peace of mind.
Laundry, Mudroom, and More
On the practical side, the laundry room (12’x12’) makes chores surprisingly pleasant—if that’s even possible.
There’s space for folding, sorting, and maybe even sneaking in a podcast or two.
Right next door, the mudroom connects to a handy bath and a breezeway that links the main house to the garages.
This clever design keeps the mess out of the main living areas, which is something every parent, pet owner, or weekend adventurer can appreciate.
I can already see how the breezeway creates a natural transition between indoors and out—one of those subtle touches that a good building cost estimator would call “worth every penny.”
The Dual Garages
Here’s where this plan really stands out.
The angled 3-car garage and separate 2-car garage are connected by that smart breezeway.
It’s not just about having space for five cars (though that’s impressive); it’s about flexibility.
One could easily serve as a workshop, studio, or even a home gym.
And yes, I can see the investment potential again—spaces like this add undeniable appeal when you’re ready to buy, refinance, or eventually sell.
If you’re the type who likes to tinker, restore, or remodel, these garages offer endless possibilities.

And if you’ve ever worked with a home remodeling contractor, you know how valuable that extra elbow room can be.
The Flow That Makes Living Easy
Every inch of this one-story design feels intentional.
The living areas flow naturally, with privacy where you want it and open connection where it counts.
The covered entry, great room, and decks encourage gathering, while the owner’s suite and office offer peaceful retreats.
For anyone considering purchase as an investment or a forever home, this layout delivers functionality and beauty in equal measure.
And with smart home technology integrated seamlessly, managing energy use, lighting, and security becomes almost effortless.
Why This Mountain Craftsman Plan Stands Out
In the world of real estate, homes often promise “character” but deliver cluttered layouts or wasted space.
This one?
It delivers charm and practicality.
From the cozy covered decks to the soaring great room ceilings, every detail feels curated to support real living.
And whether you’re calculating mortgage rates, exploring home loan pre-approval, or simply dreaming about your next move, this floor plan makes a strong case for saying yes.
It’s designed to grow with you, protect your investment, and offer a backdrop for countless memories.
With thoughtful touches like the breezeway connection, multiple garages, and abundant storage, it’s the kind of home that balances style with purpose.
I’d even say it has the potential to become that once-in-a-lifetime purchase—the one you look back on and think, I really nailed it that time.
At the end of the day, this Mountain Craftsman house plan isn’t just about square footage or ceiling height—it’s about how those spaces make you feel.
It’s about the laughter echoing through the great room, the smell of coffee on the covered deck, and the quiet satisfaction of knowing you’ve made a solid investment.

Whether you’re buying, building, or dreaming, this design offers the perfect blend of beauty, functionality, and forward-thinking features.
And who knows—with the right home improvement loans, a trusted contractor, and maybe a sprinkle of creativity—you could make it entirely your own.
In short, this isn’t just a house.
It’s a mountain retreat, a family hub, a smart investment, and most of all, a place that feels like home the moment you step through the door.
Building or buying a home isn’t just about picking the perfect house plan—it’s also about making smart long-term choices. From comparing mortgage rates to finding a trustworthy real estate agent, every decision adds value. Don’t forget to explore options like home insurance, home warranties, and potential refinance opportunities to protect your investment.
Want to boost your property value? Consider installing solar panels, upgrading to energy-efficient appliances, or integrating a smart home system. Plus, tools like interior design software can help you visualize and plan your dream space before the first brick is even laid.
Find More House Plans
By Bedrooms:
1 Bedroom • 2 Bedrooms • 3 Bedrooms • 4 Bedrooms • 5 Bedrooms • 6 Bedrooms • 7 Bedrooms • 8 Bedrooms • 9 Bedrooms • 10 Bedrooms
By Levels:
By Total Size:
Under 1,000 SF • 1,000 to 1,500 SF • 1,500 to 2,000 SF • 2,000 to 2,500 SF • 2,500 to 3,000 SF • 3,000 to 3,500 SF • 3,500 to 4,000 SF • 4,000 to 5,000 SF • 5,000 to 10,000 SF • 10,000 to 15,000 SF










