4-Bedroom 1-Story Modern Farmhouse Barndo with Workshop Garage (Floor Plan)

Specifications:
- 2,500 Sq Ft
- 4 Beds
- 3 Baths
- 1 Stories
- 3 Cars
When I first looked at this 2,500-square-foot modern farmhouse barndominium-style plan, I thought, “This is the one.”
You know how some homes just feel right?
This one has all the ingredients—space, charm, practicality, and a pinch of “wow.”
With four bedrooms, three bathrooms, a single-story layout, and a 3-car oversized garage, this design manages to be both stylish and sensible.
Let’s walk through it room by room and see why it works so well.
Stay Tuned: Detailed Plan Video Awaits at the End of This Content!







Welcoming Curb Appeal and Barndo Style
The front view sets the tone immediately: a modern farmhouse with barndo flair that looks like it belongs in a glossy real estate agent brochure.
The clean design, practical structure, and big garage create an impression of balance—both rustic and modern.
With 2×6 exterior walls and conventional wood framing, the building process stays straightforward.
A building cost estimator could tell you exactly how much this would run, but even without numbers, you can tell this home is designed to last.
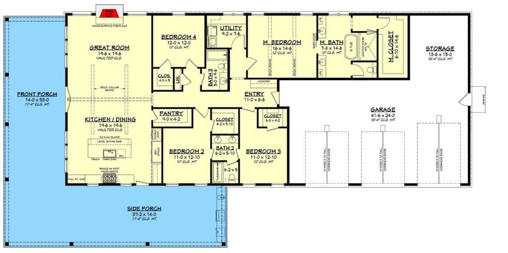
The Oversized 3-Car Workshop Garage
If you’ve ever dreamed of a garage that could handle more than just cars, this is it.

The 1,260-square-foot oversized garage holds three vehicles comfortably and still leaves plenty of room for a workshop or storage.
Whether you’re into woodworking, DIY projects, or tinkering with tools, the extra workshop space is like a built-in bonus.
Above it, accessible storage makes holiday decorations and keepsakes easy to manage.
For a family planning a big purchase like this, the garage also adds to long-term property value.
Think about it: the best home security system installed here would not only protect vehicles but also safeguard all your investments in tools, hobbies, and even future home improvement loans you might put toward projects inside.

The Open-Concept Great Room
Step inside, and you’re welcomed into the great room with its massive vaulted ceiling.
This space is the heart of the home—airy, bright, and perfect for gathering.
Large windows bring in natural light, making the space feel even bigger than its footprint suggests.
It’s also a great showcase for smart home technology.
Imagine controlling the lighting or thermostat from your phone while sitting on the couch, or knowing your best home security system is integrated seamlessly.
Every inch of this open concept is designed for both beauty and function, ensuring that comfort goes hand in hand with investment value.

A Kitchen That Works as Hard as You Do
The kitchen is what seals the deal for me.
It features a generous eat-at island, perfect for breakfast, homework sessions, or casual meals.
Behind it, the large walk-in pantry provides storage that makes you feel like you finally have your life together.
No more cluttered shelves or mystery cans—it’s all organized and accessible.
If you’re into design, interior design software could help you experiment with cabinet colors, backsplashes, or lighting in this space.
And down the road, if you ever decide to bring in a home remodeling contractor to upgrade finishes, you’ll have a perfect base layout already in place.

Dining Area for Everyday Living
The dining area flows seamlessly from the kitchen, tying the open-concept layout together.
With its proximity to both the porch and the great room, this space works equally well for family dinners or larger gatherings.
Imagine celebrating milestones here—birthdays, holidays, and maybe even a refinance mortgage party when you’ve secured a better deal on your loan. (Hey, celebrations come in all forms.)
Four Bedrooms with Comfort and Privacy
This single-story plan makes smart use of its 2,500 square feet by providing four bedrooms.
The primary suite is spacious and tucked away for privacy, complete with its own bathroom designed for relaxation.

The remaining three bedrooms share two additional bathrooms, offering flexibility for kids, guests, or even a home office.
Because everything is on one level, it’s ideal for all stages of life.
Families with young kids don’t have to worry about stairs, and retirees won’t either.
That accessibility adds long-term investment value and boosts property value should you ever decide to sell.
Bathrooms That Blend Style and Function
With three bathrooms in the plan, there’s no need to fight over sinks or showers in the morning.

Each bathroom is conveniently located near bedrooms or common areas, so everyone has access without crowding.
Down the road, if you take out a home equity loan or a home improvement loan, you could easily upgrade finishes here—adding spa-like touches to make daily routines feel luxurious.
Wraparound Porch for Outdoor Living
Ah, the wraparound porch—arguably the star of this plan.
Whether it’s a morning coffee or an evening chat, this space invites you to slow down.
Rocking chairs, hanging plants, and maybe even a porch swing would make this area the ultimate relaxation zone.

From a buyer’s perspective, porches like this can significantly boost property value.
They also make the home more appealing to anyone looking to buy, whether you’re considering it as a personal investment or part of future real estate opportunities.
Storage Above the Living Space
One clever feature is the storage above the main living area, accessible from the garage.
It’s not just attic space—it’s functional, easy-to-reach storage that helps keep the home clutter-free.
This kind of smart design is exactly what makes a purchase like this feel like a long-term win.
Practical Details That Add Value
Beyond the big highlights, it’s the practical details that make this floor plan shine.

Conventional wood framing makes building easier, while the one-story design keeps everything accessible.
Every square foot is accounted for, making it feel larger than its 2,500-square-foot size.
With the right home insurance, a solid home warranty, and the guidance of a trusted real estate agent, this plan isn’t just about design—it’s about making a sound investment.
Add in a home loan pre-approval process, and suddenly the dream feels that much more real.
Why This Plan Works as a Long-Term Investment
At the end of the day, this 4-bed modern farmhouse barndo-style home isn’t just about good looks.

It’s about practicality, livability, and investment.
Between the oversized garage, the vaulted great room, and the spacious porch, every feature is designed for modern families who want comfort and flexibility.
And let’s be honest: with mortgage rates always shifting, now might be the perfect time to buy or at least start the process.
Whether you’re running numbers on a refinance mortgage, calculating options with a building cost estimator, or dreaming of what’s possible with a home equity loan later, this house gives you options.
It’s not just a place to live—it’s a property built for growth, memories, and long-term value.
This house plan nails the balance between charm and functionality.

With 2,500 square feet, four bedrooms, three bathrooms, an oversized 3-car workshop garage, and a porch that wraps around like a hug, it checks every box.
From the open-concept great room to the private bedrooms, every detail supports a lifestyle that blends comfort and investment potential.
Sure, you’ll need to consider mortgage rates, home insurance, and all the fun parts of financing, but isn’t that worth it for a home that truly feels like “the one”?
Whether you’re ready to purchase today or still exploring options with your favorite home remodeling contractor, this modern farmhouse barndo-style plan stands out as a smart, lasting choice.
Building or buying a home isn’t just about picking the perfect house plan—it’s also about making smart long-term choices. From comparing mortgage rates to finding a trustworthy real estate agent, every decision adds value. Don’t forget to explore options like home insurance, home warranties, and potential refinance opportunities to protect your investment.
Want to boost your property value? Consider installing solar panels, upgrading to energy-efficient appliances, or integrating a smart home system. Plus, tools like interior design software can help you visualize and plan your dream space before the first brick is even laid.
Find More House Plans
By Bedrooms:
1 Bedroom • 2 Bedrooms • 3 Bedrooms • 4 Bedrooms • 5 Bedrooms • 6 Bedrooms • 7 Bedrooms • 8 Bedrooms • 9 Bedrooms • 10 Bedrooms
By Levels:
By Total Size:
Under 1,000 SF • 1,000 to 1,500 SF • 1,500 to 2,000 SF • 2,000 to 2,500 SF • 2,500 to 3,000 SF • 3,000 to 3,500 SF • 3,500 to 4,000 SF • 4,000 to 5,000 SF • 5,000 to 10,000 SF • 10,000 to 15,000 SF










