4-Bedroom 1-Story Modern Farmhouse With Expansive Outdoor Living and Side Garage (Floor Plan)

- 3,354 sq. ft.
- 4 Beds
- 4.5 Baths
- 1 Stories
- 3 Cars
You know that moment when you walk into a house and instantly think, “Yep, I could live here forever”? That’s the exact vibe this modern farmhouse gives off.
With its open layout, cozy fireplaces, and porches big enough to host an entire summer of barbecues, this home is built for both comfort and everyday function.
And let’s be real—who doesn’t want a home that looks like it belongs on the cover of a magazine, but also makes sense for daily life?
Let’s dive into this dream plan and see why it’s not just a house—it’s an investment in lifestyle, future value, and maybe even your credit score’s new best friend.



The Open Layout: Living Without Barriers
The beauty of an open floor plan is that it doesn’t just give you space—it gives you freedom.
Imagine preparing dinner at the kitchen island, keeping an eye on the kids doing homework at the dining table, and still catching the punchline of whatever story your friend is telling from the sofa. That’s the magic here.
And while we’re talking design, let’s not forget that this layout has a hidden perk: it increases property value.
Open-concept homes are hot in the market, which means if you ever decide to sell , you’ll have buyers ready to line up. Think of it as a built-in investment that works as hard as you do.
A Kitchen That Means Business
This kitchen is more than a place to boil water for pasta—it’s a serious command center. The large island doubles as both prep space and a hangout spot (hello, midnight snacks).
And the fact that the sink faces the family room fireplace? Genius. You’ll never miss a second of the game or your favorite show while washing up.
The walk-in food pantry is the kind of feature that makes you want to buy in bulk just because you can. And the butler’s pantry? That’s a game-changer for entertaining.
It’s the secret passageway that keeps clutter hidden when guests drop by. Honestly, it’s the type of feature that can make a real estate agent grin ear to ear when showing the house to potential buyers.

Cozy Fireplaces and Walls of Glass
The family room fireplace is the heart of the home, adding warmth and ambiance whether you’re curled up with a book or binge-watching something you swore you’d only watch one episode of.
Combine that with the walls of glass that flood the space with natural light, and you’ve got the kind of atmosphere that feels like a daily retreat.
Not to mention, large windows and glass walls are a dream when it comes to property appraisals—they enhance property value and add that “wow” factor.
Plus, smart home technology can pair perfectly here, letting you control shades, lighting, and security all from your phone. Talk about the best home security system with a side of convenience.
Bedrooms That Don’t Compete
One of the smartest design choices in this plan is the split-bedroom layout. Translation: the master suite is on one side of the house, while the other bedrooms are on the opposite side.
This gives everyone privacy (and keeps your teen’s late-night gaming from shaking the walls of your sanctuary).
Each bedroom gets a walk-in closet, which is not only practical but also helps if you ever go to refinance mortgage later and need to show off premium features.

Walk-in closets are always a selling point—no one ever complains about too much storage.
A Master Suite That Feels Like a Hotel Stay
The master suite isn’t just a room; it’s an experience. You get a vaulted ceiling that instantly makes the space feel grand, plus a massive bathroom that could honestly double as a spa.
And the oversized closet? Let’s just say you might need to call a home remodeling contractor to help design the custom shelving, because you’ll have the room for it.
What really steals the show, though, is the private porch access. Imagine sipping your morning coffee outside without having to tiptoe past the rest of the house.
That kind of detail makes everyday life feel like a vacation.
Outdoor Living Done Right
Speaking of porches, this home has them in spades. A spacious front porch welcomes guests with charm, while the vaulted rear porch sets the stage for family gatherings, lazy afternoons, or serious barbecue sessions.
There’s even a designated barbecue porch for the grill master of the house.If you’re worried about building costs, don’t stress too much—features like this add undeniable value.

Using a building cost estimator can show you that the investment in outdoor living pays off big time, especially when appraisers factor in lifestyle features.
And don’t forget, adding features like outdoor lighting or even a home warranty for built-in appliances can make ownership even more stress-free.
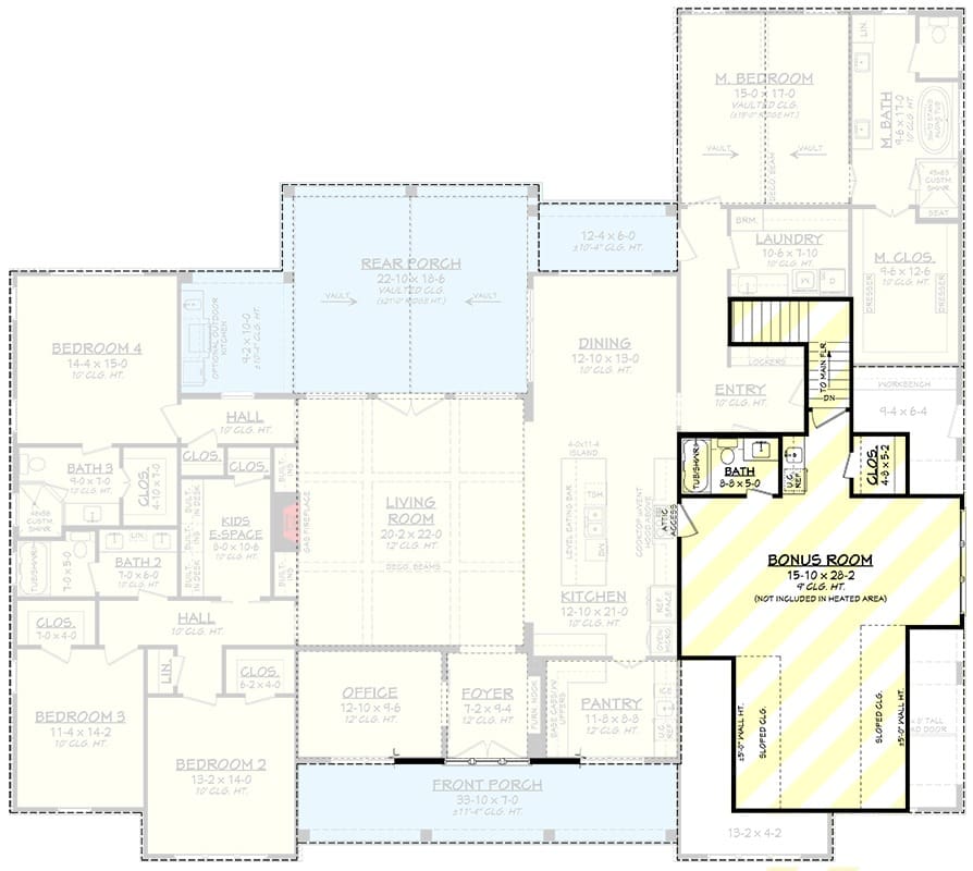
Bonus Space With Endless Possibilities
This plan comes with an unfinished bonus room, which is basically a blank check for your imagination.
Want a game room? Done. Need a guest suite? Easy. Dreaming of a home office, art studio, or even a gym with smart home technology built in? This space has your name on it.
And here’s a tip: finishing bonus space can be one of the smartest moves you make for property value.
Whether you finance it with home improvement loans or tap into a home equity loan, it’s the kind of project that pays dividends when you sell.
Plus, working with the right home remodeling contractor ensures it turns out exactly as you envision.

The Side-Load Garage: Practical Meets Polished
The 3-car side-entry garage isn’t just a parking spot; it’s a statement. It keeps the front of your home looking polished and uncluttered, which makes a huge difference in curb appeal.
And if your lot happens to be on a corner, this design makes the house fit like it was always meant to be there.
For families, having a garage like this is pure gold. It provides room for cars, storage, and all the seasonal stuff we somehow accumulate.
Plus, with today’s mortgage rates, making sure your home has all the functional features you’ll want long-term is key to smart ownership.
A Private Study That Means Business
Working from home is the new normal for many of us, and this farmhouse delivers with a private study tucked neatly away.
Whether you’re running a business, grinding through online classes, or just need a quiet escape for reading, the study is the perfect spot.
And here’s a bonus: a well-designed office can actually boost your property value. Buyers love flexibility, and a dedicated work space adds to the home’s overall appeal.

It’s also the kind of feature a real estate agent will highlight front and center when showing the home.
The Charm of Split Bedrooms
The split-bedroom design in this house plan is a game-changer. By separating the master suite from the secondary bedrooms, everyone gets their own slice of privacy. Parents on one side, kids or guests on the other—it’s the perfect setup.
Each of the four bedrooms comes with its own walk-in closet, which isn’t just practical but also adds long-term value.
And if you’re thinking ahead, this layout makes it easy to adapt the rooms later, whether it’s for a growing family, hosting visitors, or even transforming one into a hobby room.
Living Room With Wood Beam Accents
Step into the living room, and you’ll see wood beam accents that instantly warm up the space. Paired with a cozy fireplace, it’s the kind of room that makes winter evenings feel like a Hallmark movie.
But this space isn’t just about looks—it’s about flow. The living room connects seamlessly to the kitchen and vaulted rear porch, creating a central hub for family life.
When friends come over, there’s no awkward crowding or bottlenecking. Just open, airy space that works as beautifully for entertaining as it does for daily routines.

The Kitchen: Where Function Meets Comfort
We’ve already touched on the brilliance of the double pantries (walk-in plus butler’s), but let’s talk about how this kitchen functions in the bigger picture.
The large island isn’t just great for meal prep—it’s a gathering spot. Imagine the kids doing homework while dinner simmers on the stove, or friends chatting while you prep appetizers.
And with the sink facing forward toward the family room fireplace, this kitchen design is all about connection.
You don’t feel isolated while cooking—you’re right in the middle of the action. It’s the kind of thoughtful design detail that makes you realize this plan was drawn up with real life in mind.
Bonus Room: A Space That Adapts to You
Upstairs, you’ve got a bonus room that’s ready for anything. At over 700 sq. ft., it’s a blank canvas waiting for your creativity.
Turn it into a game room, home theater, guest suite, or even a gym with smart home technology built in.
Finishing this space is also a smart financial move. Whether funded through home improvement loans or a home equity loan, projects like these pay off in property value.

And if you bring in a home remodeling contractor, you can design it to match your exact vision—no compromises necessary.
Garage Goals: Room for Three Cars and More
The side-entry, 3-car garage is another standout feature. It’s functional, stylish, and ideal for a corner lot.
More than just a place to park, it doubles as a storage solution for tools, bikes, sports gear, or even a workshop space.
From an investment standpoint, a garage like this is gold. Not only does it appeal to buyers down the line, but it also makes life more convenient every single day.
And if you’ve ever factored garage space into a purchase decision, you know it can be just as important as bedroom count.
Beyond the big-ticket features, it’s the small details in this plan that truly shine. The mudroom that keeps everyday messes out of sight.
The laundry room positioned for maximum convenience. The flow from the dining area to the outdoor spaces. Every inch has been designed to make life easier.

These are the touches that make you realize you’re not just buying square footage—you’re buying a lifestyle. A lifestyle where the house works with you, not against you.
At the end of the day, this modern farmhouse house plan offers everything a homeowner could want: style, functionality, comfort, and long-term value.
From the open layout and wood-beamed living room to the master suite retreat and expansive porches, it’s a home that blends beauty with practicality.
So, whether you’re ready to buy now, planning your next big purchase, or simply daydreaming about your future investment, this house plan deserves a spot at the top of your list.
With smart features, thoughtful design, and the kind of charm that never goes out of style, it’s not just a floor plan—it’s a forever plan.
Building or buying a home isn’t just about picking the perfect house plan—it’s also about making smart long-term choices. From comparing mortgage rates to finding a trustworthy real estate agent, every decision adds value. Don’t forget to explore options like home insurance, home warranties, and potential refinance opportunities to protect your investment.
Want to boost your property value? Consider installing solar panels, upgrading to energy-efficient appliances, or integrating a smart home system. Plus, tools like interior design software can help you visualize and plan your dream space before the first brick is even laid.
Find More House Plans
By Bedrooms:
1 Bedroom • 2 Bedrooms • 3 Bedrooms • 4 Bedrooms • 5 Bedrooms • 6 Bedrooms • 7 Bedrooms • 8 Bedrooms • 9 Bedrooms • 10 Bedrooms
By Levels:
By Total Size:
Under 1,000 SF • 1,000 to 1,500 SF • 1,500 to 2,000 SF • 2,000 to 2,500 SF • 2,500 to 3,000 SF • 3,000 to 3,500 SF • 3,500 to 4,000 SF • 4,000 to 5,000 SF • 5,000 to 10,000 SF • 10,000 to 15,000 SF










