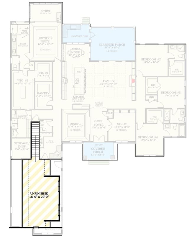
4-Bedroom 1-Story Modern Farmhouse With Courtyard Entry 3-Car Garage (Floor Plan)

- 3,699 sq. ft.
- 4 Beds
- 4.5 Baths
- 1 Stories
- 3 Cars
If you’ve ever flipped through glossy home magazines and thought, “That’s it, that’s the dream,” then this modern farmhouse might just be your happily-ever-after in floor plan form.
With 4 bedrooms, 4.5 bathrooms, an optional bonus space, and over 3,600 square feet of heated living, it’s a house that somehow manages to feel both luxurious and homey.
Oh, and did I mention the barbecue porch?
Because yes, it has one, and yes, you’re already picturing yourself grilling there.




First Impressions That Stick
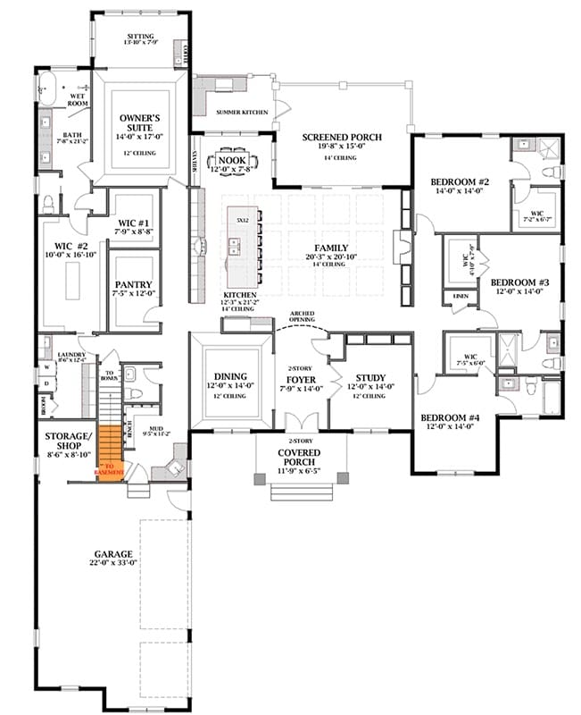
Let’s start with the exterior. This isn’t just a house—it’s an announcement. With its painted brick façade and transitional design, the curb appeal alone could raise your property value before you even unpack.
The side-load garage gives it a polished corner-lot look while keeping your three-car collection neatly tucked away. (Or two cars and a boat, or one car and enough bikes to open a rental shop. Your call.)
When people walk up to the front porch—84 square feet of welcoming charm—they’ll know you didn’t just purchase a house.
You made an investment in comfort and style. And let’s be honest: having a home like this makes the conversation with your real estate agent worth every second.
Open Spaces, Cozy Corners
Step inside, and you’re greeted with a wide-open layout that makes you feel like the house is giving you a hug.
The family room sits front and center with its fireplace—perfect for cozy nights with the best home security system keeping watch while you binge your favorite shows. Walls of glass stretch across the back, pulling in sunshine and giving you full views of the porch and backyard.

The kitchen flows seamlessly into this space, and this is no ordinary kitchen. The island is designed with a forward-facing sink, which means you get to cook while still being part of the action.
You can talk to friends at the island, keep an eye on the game in the living room, or make sure no one is stealing snacks too early from the barbecue porch.
Pantries That Mean Business
If you’ve ever run out of storage space (and really, who hasn’t?), you’ll love the walk-in food pantry and butler’s pantry.
These spaces don’t just add convenience—they add serious functionality.
And functionality is the kind of detail that’s worth factoring into a building cost estimator, because let’s be real: a good pantry is practically priceless.
The butler’s pantry becomes your secret weapon when entertaining. Stash the mess behind closed doors, keep drinks flowing, and let guests think you magically manage it all without breaking a sweat.

Bedrooms That Don’t Play Favorites
One of the absolute joys of this farmhouse plan is that every bedroom comes with a walk-in closet. Yes, every single one.
Which means no fights over storage space, no awkward shelving units crammed into corners, and no sad “guest closet” that’s basically a broom cupboard.
This is smart home technology at its finest: designing with real human needs in mind.
The split-bedroom design means the master suite gets its own private wing, separated from the secondary bedrooms.
That’s not just good design—it’s peace of mind. Whether you’re working from home in the study or unwinding in your tray-ceilinged master bedroom, you’ll have the perfect balance of privacy and connection.
Master Suite Magic
Speaking of the master suite, let’s pause for a moment of appreciation. The tray ceiling brings elegance without being pretentious. The walk-in closet is the kind of space that interior design software would use as a model.

And the private door to the back porch? That’s your secret escape to fresh air and starlit nights.
And because life isn’t all romance and relaxation, the master suite’s thoughtful design also factors into practicalities like your credit score, mortgage rates, and refinance mortgage opportunities.
A house like this isn’t just where you sleep—it’s a strategic purchase and a long-term investment.
Outdoor Living Done Right
Farmhouse living without outdoor space would be like coffee without caffeine: technically possible, but why would you?The flow between indoor and outdoor spaces is effortless. You’re not just stepping outside—you’re extending your living room into nature.
And if you’re considering home improvement loans down the line, you might think about adding an outdoor fireplace, a pizza oven, or even expanding the deck. This plan gives you the foundation, and the possibilities are endless.

Bonus Space Above the Garage
Sometimes, the cherry on top is optional, and in this case, it’s the bonus room above the garage. With an extra 472 square feet, you can finish it when you’re ready.
Home theater? Gym? Guest suite? Craft space? (Or a fortress of solitude where you hide from laundry.) Whatever your choice, this flexibility adds tremendous value.
And here’s the kicker: finishing bonus space is one of the smartest ways to boost your property value. Whether you finance it with a home equity loan or work with a home remodeling contractor, this is the kind of project that pays off in both lifestyle and resale.
Behind the Scenes: Functionality That Matters
It’s not just about the flashy features. This house plan takes care of the nitty-gritty too. The three-car attached garage is generous at 742 square feet, perfect for storage or even a small workshop (85 square feet included!).
Add in thoughtful details like a study for work-from-home life and a layout that feels intuitive, and suddenly you’re living in a house that works with you, not against you.

And let’s not forget practical matters like home insurance and a home warranty. With a house of this caliber, you’ll want coverage that matches the quality of your investment. After all, it’s not just about buying a property—it’s about protecting your future.
Living the Dream Inside and Out
By now, you’re probably picturing yourself in this modern farmhouse—coffee mug in hand, slippers on, strolling through that sunlit open layout.
But let’s dig a little deeper into how this home plan really delivers on both lifestyle and financial fronts.
Because owning a dream home isn’t just about beauty; it’s about making a smart, lasting purchase that feels like an investment you’ll never regret.
Everyday Living That Feels Effortless
The open-concept design in this house plan isn’t just a buzzword—it’s a game-changer. Imagine being able to whip up dinner in the kitchen while still being part of the action in the family room.

No walls blocking you off, no shouting down the hallway. Instead, you’re chatting with guests, checking on homework, or sneaking glances at the TV—all while standing at the island sink.
And that fireplace in the family room? It’s not just décor; it’s a lifestyle upgrade. Combine it with the best home security system and some cozy throws, and suddenly your evenings feel like a retreat.
Whether it’s winter holidays or lazy Sunday mornings, this space is designed for connection and comfort.
A Study That Works Hard
If you’ve ever tried working from the kitchen table, you know the struggle. This farmhouse plan solves that with a dedicated study.
Quiet, private, and tucked away, it’s the kind of space where you can focus on your credit score, refinance mortgage paperwork, or just have uninterrupted Zoom calls.

A study like this is also a huge plus for property value. More buyers are working remotely, and when you eventually decide to sell, a real estate agent will practically highlight this room with a spotlight.
Bedrooms Built for Real Life
We talked about every bedroom having a walk-in closet, but it’s worth revisiting because—let’s be real—that’s a luxury most homes don’t deliver.
Kids get space for their growing wardrobes, guests feel like VIPs, and you finally get the organized closet you’ve always dreamed of.
The master suite, though, is the true showstopper. Between the tray ceiling, porch access, and spa-worthy ensuite, it’s not just a bedroom—it’s your sanctuary.
And sanctuary-level features are the kind that push property value higher and make you feel good about every mortgage payment you make.

A Kitchen Worth Celebrating
If the heart of the home is the kitchen, then this one has the stamina of a marathon runner. That island with the forward-facing sink? Brilliant.
Add in a walk-in pantry and a butler’s pantry, and you’re basically running your own gourmet headquarters.
When entertaining, the butler’s pantry saves you from chaos. And on a daily basis, the walk-in pantry keeps life organized.
Both are features that any building cost estimator would list as “high-value perks,” because they make the house feel bigger, smarter, and more livable.
Outdoor Living That Wins Hearts
Step outside, and it’s clear this home was designed for people who love to blend indoor and outdoor living.With spaces like these, you’re not just buying square footage—you’re buying experiences.

And when you look at the purchase from an investment angle, these features put your home leagues ahead of typical builds.
Bonus Room Possibilities
The optional bonus space above the garage is like a blank canvas. Want a media room? Done. Gym? Easy. A quiet guest suite for in-laws? Absolutely.
Finishing this area with the help of a home remodeling contractor can add real equity to your home.
Whether you fund it with a home equity loan or home improvement loans, you’re creating flexible space that works for your lifestyle while also padding your resale value. That’s the definition of a smart buy.
Garage Goals
Now let’s talk garages. This one isn’t just for parking cars—it’s 742 square feet of potential. With room for three cars and a built-in 85-square-foot workshop, you’ll have space for tools, storage, and projects.

And let’s be honest: garages like this are the unsung heroes of family life. Bikes, holiday decorations, lawn equipment—they all need a home, and this plan delivers it in style.
If I had to sum this house up in one word, it would be “balance.” It balances charm with functionality, elegance with everyday ease, and lifestyle perks with smart financial moves.
You’re not just buying a floor plan—you’re buying mornings on the porch, evenings by the fireplace, and a future that feels both secure and exciting.
So whether you’re crunching numbers with a building cost estimator, working with a real estate agent to close the deal, or daydreaming about the first barbecue on your new porch, this 4-bedroom, 1-story modern farmhouse delivers.
It’s a buy that feels like a gift to yourself, your family, and your future.
Building or buying a home isn’t just about picking the perfect house plan—it’s also about making smart long-term choices. From comparing mortgage rates to finding a trustworthy real estate agent, every decision adds value. Don’t forget to explore options like home insurance, home warranties, and potential refinance opportunities to protect your investment.
Want to boost your property value? Consider installing solar panels, upgrading to energy-efficient appliances, or integrating a smart home system. Plus, tools like interior design software can help you visualize and plan your dream space before the first brick is even laid.
Find More House Plans
By Bedrooms:
1 Bedroom • 2 Bedrooms • 3 Bedrooms • 4 Bedrooms • 5 Bedrooms • 6 Bedrooms • 7 Bedrooms • 8 Bedrooms • 9 Bedrooms • 10 Bedrooms
By Levels:
By Total Size:
Under 1,000 SF • 1,000 to 1,500 SF • 1,500 to 2,000 SF • 2,000 to 2,500 SF • 2,500 to 3,000 SF • 3,000 to 3,500 SF • 3,500 to 4,000 SF • 4,000 to 5,000 SF • 5,000 to 10,000 SF • 10,000 to 15,000 SF










