4-Bedroom 1-Story Modern Farmhouse with Outdoor fireplace (Floor Plan)

Specifications:
- 2970 Sq Ft
- 4 Beds
- 3 Baths
- 1 Stories
- 2 Cars
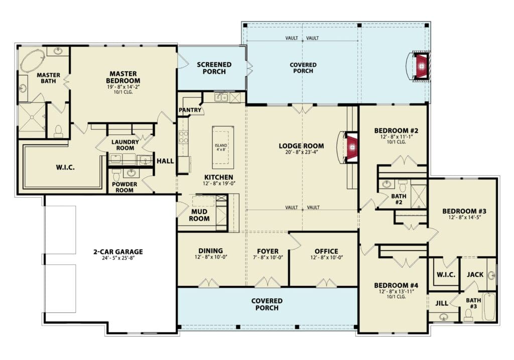
When I first looked at the Mount Silverthorne Cottage floor plan, I knew it was something special.
With 2,970 square feet of space, four bedrooms, and three bathrooms all on a single story, this modern farmhouse design balances style, comfort, and functionality.
Both the front and rear covered porches welcome you into the home, creating a perfect combination of indoor-outdoor living.
Let’s walk through the floor plan and see why it’s designed for everyday life as well as entertaining.
Stay Tuned: Detailed Plan Video Awaits at the End of This Content!

The Inviting Front Porch and Foyer
The floor plan starts with a charming covered front porch, the perfect spot for morning coffee or a relaxed evening.
Walking through the front door, the foyer opens directly into the lodge room, setting the tone for an open, airy space.
The layout ensures a seamless flow, making it easy to move between rooms.

The lodge room itself features a fireplace and plenty of space for seating, making it the heart of the home.
Its central location allows natural light to fill the home while connecting to the kitchen and dining areas.
The Central Hub of the Home
The lodge room sits at the center of the floor plan, creating a natural gathering space for family and friends.

Its open design flows effortlessly into the kitchen, ensuring that conversation continues even while cooking.
With room for a large sectional or multiple seating areas, this space makes entertaining simple and functional.
The fireplace is strategically placed for both visual appeal and warmth, while the surrounding area allows for easy placement of furniture using interior design software if you’re into visualizing layouts before moving in.

Kitchen and Pantry
Adjacent to the lodge room, the kitchen layout is designed for both convenience and efficiency.
A sizable pantry provides storage space, and the open concept ensures easy access to the dining and living areas.
The kitchen island can serve as a prep space, breakfast bar, or casual dining area.

Its position in the floor plan also makes it easy to step out onto the rear covered porch or screened deck for outdoor meals or relaxation.
This connectivity is a highlight of the Mount Silverthorne layout, blending indoor functionality with outdoor living.
Rear Porch and Screened Deck
One of the floor plan’s standout features is the rear covered porch and screened deck, which extends the living space outdoors.

The screened deck includes a built-in fireplace, making it perfect for evening gatherings or quiet moments.
Its location directly off the kitchen and lodge room encourages a natural flow between indoor and outdoor spaces.
The design ensures privacy while still offering beautiful views of the backyard, making it ideal for entertaining or simply enjoying a serene afternoon.

Master Bedroom Suite
The master suite in the floor plan is positioned for privacy and convenience.
It includes a master bath, walk-in closet, and direct access to the screened porch.
The master bath layout allows for a comfortable daily routine, while the walk-in closet is spacious enough to organize clothing and accessories efficiently.

The proximity to the rear porch enhances the feeling of a private retreat within the home, and the suite’s location in the floor plan ensures quiet away from the main living areas.
Secondary Bedrooms
The floor plan includes three additional bedrooms.

Two share a Jack-and-Jill bathroom, an efficient design for families that balances privacy and accessibility.
The third bedroom features an en suite bathroom, making it perfect for guests or older children.
All bedrooms are positioned strategically in the layout to maximize space while maintaining privacy.

Their locations ensure that the home can accommodate family life, guest stays, or even a small office without disrupting the flow of the main living areas.
Office and Functional Spaces
The inclusion of a dedicated office, mudroom, and laundry room highlights the practicality of this floor plan.

The office is tucked away for quiet work, while the mudroom serves as a functional entry point from the garage.
The laundry room’s location is convenient for daily chores, situated near the bedrooms without interrupting living spaces.
A powder room completes the functional areas, ensuring that guests don’t need to access private bathrooms.

Garage and Entry Access
The two-car garage is integrated into the floor plan, offering easy access to the mudroom and kitchen.
This design simplifies daily routines, like unloading groceries or entering with wet shoes, while keeping the flow of the home intuitive.

The garage’s placement also ensures that vehicles are tucked away from the main living areas without sacrificing accessibility or convenience.
Flow and Connectivity of the Floor Plan
What really makes Mount Silverthorne Cottage’s floor plan special is its flow.
The design connects indoor and outdoor spaces naturally, from the front porch through the lodge room to the rear screened deck.

Bedrooms are separated from the main living areas for privacy, yet the kitchen, lodge room, and dining areas remain open and connected.
This balance of separation and connectivity makes daily living easy while providing flexibility for entertaining or quiet moments.
Outdoor Integration and Lifestyle
The floor plan’s inclusion of dual covered porches and a screened deck reinforces the indoor-outdoor lifestyle that modern homeowners desire.

Whether it’s a morning coffee on the front porch or evening relaxation on the rear deck, the layout encourages interaction with nature.
The rear porch’s built-in fireplace adds both style and function, extending usability into cooler months and enhancing the overall outdoor experience.
Every aspect of the Mount Silverthorne Cottage floor plan has been designed with both comfort and functionality in mind.

From the central lodge room to the master suite, secondary bedrooms, and functional spaces like the office and mudroom, this one-story modern farmhouse balances aesthetic appeal with practical living.
The connection between indoor and outdoor spaces ensures versatility and enjoyment, while the thoughtful bedroom and bathroom placements provide privacy and convenience.
This floor plan doesn’t just represent a home—it embodies a lifestyle where every space serves a purpose and invites comfort, connection, and calm.
Whether you’re relaxing by the fireplace, cooking in a well-designed kitchen, or enjoying the screened porch, the Mount Silverthorne layout proves that thoughtful design makes all the difference.
Building or buying a home isn’t just about picking the perfect house plan—it’s also about making smart long-term choices. From comparing mortgage rates to finding a trustworthy real estate agent, every decision adds value. Don’t forget to explore options like home insurance, home warranties, and potential refinance opportunities to protect your investment.
Want to boost your property value? Consider installing solar panels, upgrading to energy-efficient appliances, or integrating a smart home system. Plus, tools like interior design software can help you visualize and plan your dream space before the first brick is even laid.
Find More House Plans
By Bedrooms:
1 Bedroom • 2 Bedrooms • 3 Bedrooms • 4 Bedrooms • 5 Bedrooms • 6 Bedrooms • 7 Bedrooms • 8 Bedrooms • 9 Bedrooms • 10 Bedrooms
By Levels:
By Total Size:
Under 1,000 SF • 1,000 to 1,500 SF • 1,500 to 2,000 SF • 2,000 to 2,500 SF • 2,500 to 3,000 SF • 3,000 to 3,500 SF • 3,500 to 4,000 SF • 4,000 to 5,000 SF • 5,000 to 10,000 SF • 10,000 to 15,000 SF










