4-Bedroom 1-Story Modern Farmhouse With Expansive Outdoor Living (Floor Plan)

- 3,188 sq. ft.
- 4 Beds
- 3 Baths
- 1 Stories
- 3 Cars
Let me be honest: house hunting is fun—until it isn’t. After all, how many times can you scroll through endless listings, sip lukewarm coffee, and wonder if the perfect home even exists?
Well, let me tell you, this modern farmhouse plan might just be the one that finally makes you close all those tabs and call your real estate agent.
With 3,188 square feet of heated living space, 4 bedrooms, 3 bathrooms, and enough porch area to host a neighborhood barbecue, this house has all the charm of a cozy farmhouse with the luxuries of a contemporary home.
And don’t worry—I’m not going to sound like a stiff brochure here. Instead, let’s stroll through this beauty together.
I’ll point out the details that made me fall in love with it (and yes, even joke about how much home insurance I’d need after filling it with my questionable furniture choices).


First Impressions Matter
From the outside, this house gives off serious barndominium vibes—a trendy style that combines farmhouse charm with a bold, modern twist. The side-load garage is not only practical but also makes this home a perfect fit for a corner lot.
The garage itself is a beast: 1,084 sq. ft. of space that can easily swallow two cars, bikes, and maybe even that kayak you swore you’d use more often.
And here’s a little bonus—there’s an attached apartment tucked on the other side of the garage. It comes with its own 1-bed, 1-bath layout and even a private rear covered porch.
You could let guests stay there, or better yet, rent it out to help with that mortgage. Think of it as an investment that also keeps your in-laws at a comfortable distance. Win-win.
The Great Indoors: Open Layout Bliss
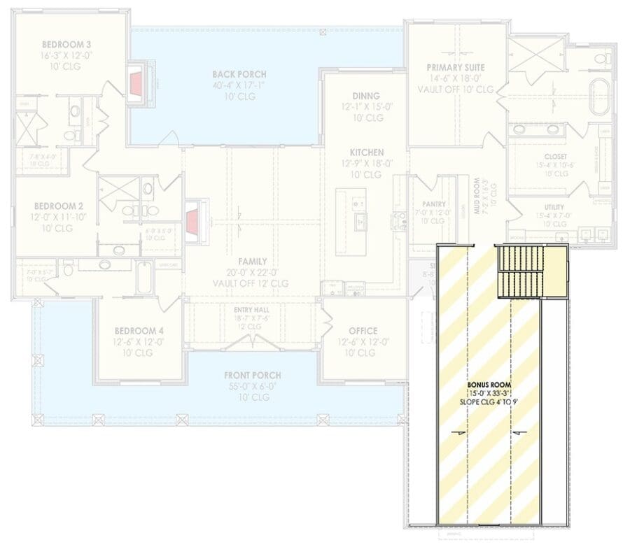
Step inside, and the first thing you’ll notice is the grand great room. I mean, this thing has cathedral ceilings soaring above you, making the space feel like it was designed for both family game nights and fancy holiday dinners.
A fireplace anchors the room, radiating that cozy farmhouse vibe, while walls of glass flood the area with natural light and open up to the back porch.
From there, the layout flows seamlessly into the dining room and kitchen. If you’ve ever dreamed of hosting Thanksgiving without tripping over your relatives, this open design is a lifesaver. And the kitchen—oh, the kitchen.

The sink is thoughtfully placed in the island so you can face the family room while scrubbing dishes, meaning you won’t miss a beat of the action (or the drama when your cousin brings up mortgage rates at the table).
Kitchen Goals: More Than Just Cabinets and Countertops
Let’s talk storage. This house spoils you with not one but two pantries—a walk-in food pantry and a butler’s pantry.
I don’t know about you, but the thought of having a separate butler’s pantry makes me feel like I should start labeling my spices and investing in glass jars. Plus, it adds a touch of luxury that boosts property value in the long run.
And if you’re worried about the cost of decking out such a kitchen, this is where a good building cost estimator or even a refinance mortgage option could come in handy.
The payoff? A dream kitchen that’s as practical as it is Pinterest-worthy.
Bedrooms: Privacy and Personality
This plan features a split-bedroom layout, which basically means everyone gets their own slice of peace.
Each bedroom comes with its own walk-in closet (yes, every single one), making it easy to stash away clutter and pretend your house always looks Instagram-ready.
The master suite, though, takes the cake. It has a tray ceiling that adds a sense of elegance, and best of all, a private door that leads directly to the back porch.

Imagine sipping morning coffee out there before the world wakes up—sounds like a daily vacation to me.
And if you’re already thinking ahead, you’ll be glad to know that homes with master suites like this tend to hold great resale and investment value.
A Home That Grows With You
Life changes—kids grow, hobbies multiply, and sometimes you decide that yes, you really do need a dedicated game room. That’s why the optional bonus space in this plan is such a lifesaver.
Finish it right away or wait until you’re ready, maybe even with a little help from a home improvement loan or a reliable home remodeling contractor.
Plus, if you’ve been through the fun process of home loan pre-approval, you know how nice it is to plan for future flexibility. This home makes sure you’ll never feel boxed in.
Work, Play, and Everything In-Between
One of my favorite features? The dedicated study. Whether you’re working from home, running a side hustle, or just want a quiet nook to catch up on bills (and track your credit score), this room gives you that perfect space.
Add in some smart home technology like automated lighting or noise-canceling gadgets, and suddenly you’ve built yourself the ultimate productivity zone.
And then there’s the workshop. Tucked conveniently near the garage, it’s the kind of space that begs for DIY projects, weekend tinkering, or maybe even storing that fancy best home security system you’ve been meaning to set up.

Outdoor Living Done Right
Porch lovers, rejoice—this house is basically a love letter to outdoor living. With a combined 1,183 sq. ft. of porch space, there’s no shortage of ways to enjoy fresh air.
The barbecue porch is the star of the show, giving you plenty of room to grill burgers or test your latest culinary experiment without filling the house with smoke.
The rear porch, meanwhile, is ideal for lounging, reading, or sipping sweet tea while you daydream about your next big purchase.
And since outdoor living spaces are one of the top features buyers look for today, this is another smart investment in your home’s future property value.
Design Freedom
Let’s not forget that a house like this gives you endless opportunities for customization. From choosing paint colors to experimenting with interior design software, you get to put your stamp on every room.
Whether you’re into farmhouse chic, modern minimalism, or a mix of both, the open layout makes it easy to adapt.
And because I’m the kind of person who Googles things like home warranty coverage for appliances after binge-watching renovation shows, I appreciate how easy it is to protect these design choices for the long haul.

The Master Retreat: Comfort Meets Class
Let’s get real—at the end of the day, you want your bedroom to feel like a retreat, not just another place to crash. The master suite in this plan is pure bliss.
The tray ceiling adds dimension and elegance, almost like the room is giving you a subtle wink that says, “Yes, you deserve this.”
Then there’s the ensuite bathroom. Spacious, luxurious, and just waiting for you to pick out the perfect soaking tub or walk-in shower.
Pair that with a generous walk-in closet big enough to handle all your seasonal wardrobes (and maybe a few impulse purchases), and suddenly, daily life feels like a spa day.
And here’s the kicker: a private door opens directly to the back porch. Imagine sliding out there on a crisp morning with a hot cup of coffee, or sneaking away at night to gaze at the stars.
That kind of connection between indoor comfort and outdoor living is one of the best features modern farmhouses offer, not to mention a big boost in property value.
Secondary Bedrooms That Don’t Feel Secondary
Too often, the secondary bedrooms in a house feel like an afterthought. Not here.
Each bedroom gets its own walk-in closet (cue applause), which means no more fighting over storage or making awkward deals about who gets the bigger dresser.

The split-bedroom design places these rooms on the opposite side of the house from the master suite.
It’s the perfect balance of togetherness and privacy, making this layout a hit for families, guests, or even if you’re planning to rent a room for extra income (yes, that mortgage doesn’t pay itself).
The Garage That Does It All
We need to talk more about that garage, because at 1,084 sq. ft., it’s practically its own wing of the house. Beyond fitting two cars comfortably, there’s room for storage, bikes, tools, or even a workshop setup.
For anyone who dabbles in DIY projects—or if you’re like me and just like buying tools because they make you feel capable—this workshop space is golden.
And here’s a practical tip: garages this size can sometimes affect your home insurance rate, since they hold higher-value items.
That’s where a little planning with your insurance provider and maybe even a home warranty for key systems can save you headaches (and money) down the road.
Outdoor Living That Feels Like a Lifestyle
Remember that 1,183 sq. ft. of porch space? It deserves its own spotlight again. The barbecue porch is practically begging for summer cookouts, while the covered porches offer shade and comfort year-round.
Whether you’re lounging with a book or throwing a dinner party, these spaces make entertaining effortless.

And here’s something I’ve noticed: when buyers tour homes, they almost always step onto the porch and immediately start picturing themselves living there.
Outdoor spaces sell homes. Which means if you ever decide to sell or refinance mortgage down the line, this house already has built-in appeal.
Why This Plan Stands Out
So why does this 3,188 sq. ft. modern farmhouse outshine so many others? Because it’s designed with balance in mind.
You get comfort and luxury without excess. Privacy and togetherness coexist perfectly thanks to the split-bedroom design.
And with features like a workshop, study, bonus space, and that flexible apartment, this home evolves with your needs over time.
It’s the kind of house that feels like an immediate purchase no-brainer but also holds up as a long-term investment.
Whether you’re buying as your forever home, or you’re thinking about resale value down the road, this plan makes sense.
When I picture myself living here, I don’t just imagine a house—I imagine a lifestyle. Mornings on the porch with coffee, afternoons in the study being productive (hopefully), evenings by the fireplace, and weekends full of laughter around the barbecue porch.

Add in the practical perks—like smart home technology, ample storage, and an apartment that pays for itself—and it’s hard to find a downside.
Of course, every big purchase comes with considerations like mortgage rates, insurance, and whether you need a home equity loan to cover those dreamy upgrades.
But with the right planning, this farmhouse isn’t just a home; it’s an investment that pays dividends in comfort, style, and value.
So, if you’ve been on the fence about buying, let me say this: sometimes, the right house plan just feels like it was made for you.
And this one? Well, it’s got everything I’ve ever wanted—and probably a few things I didn’t know I needed.
Building or buying a home isn’t just about picking the perfect house plan—it’s also about making smart long-term choices. From comparing mortgage rates to finding a trustworthy real estate agent, every decision adds value. Don’t forget to explore options like home insurance, home warranties, and potential refinance opportunities to protect your investment.
Want to boost your property value? Consider installing solar panels, upgrading to energy-efficient appliances, or integrating a smart home system. Plus, tools like interior design software can help you visualize and plan your dream space before the first brick is even laid.
Find More House Plans
By Bedrooms:
1 Bedroom • 2 Bedrooms • 3 Bedrooms • 4 Bedrooms • 5 Bedrooms • 6 Bedrooms • 7 Bedrooms • 8 Bedrooms • 9 Bedrooms • 10 Bedrooms
By Levels:
By Total Size:
Under 1,000 SF • 1,000 to 1,500 SF • 1,500 to 2,000 SF • 2,000 to 2,500 SF • 2,500 to 3,000 SF • 3,000 to 3,500 SF • 3,500 to 4,000 SF • 4,000 to 5,000 SF • 5,000 to 10,000 SF • 10,000 to 15,000 SF










