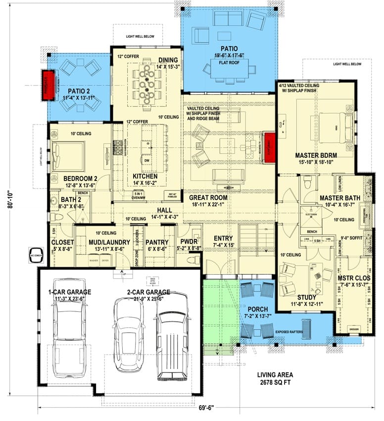
4-Bedroom 1-Story Modern Family Home with 3-Car Garage (Floor Plan)

Specifications:
- 2,678 sq. ft.
- 4 Beds
- 2.5 Baths
- 1 Stories
- 3 Cars
I have to admit, walking into this modern farmhouse for the first time felt like stepping into a Pinterest board that came to life.
From the curb, its multiple gables, mixed-material exterior, and deep front porch make you want to stop the car just to admire it.
And trust me, the side-load garage isn’t just stylish—it’s a practical blessing for corner lots.
With deep eaves and decorative brackets adding character, this home sets the stage for the modern farmhouse lifestyle you’ve been dreaming about.


Open Layout That Brings Everyone Together
If there’s one thing that defines this house, it’s the open floor plan. From the moment you step through the French doors into the vaulted foyer, your eyes are drawn straight to the back wall, with light streaming through walls of glass.
The 20-foot-high vaulted ceiling isn’t just for show—it gives the great room a sense of freedom that makes you want to curl up by the fireplace with a cup of coffee or entertain friends without feeling cramped.
Now, let’s talk about the kitchen. Picture this: you’re washing dishes at the sink in the island and still keeping an eye on the family in the living room.
The layout is perfect for multitasking parents or anyone who loves hosting. And for the foodies among us, there’s both a walk-in pantry and a butler’s pantry, so organization meets style.
You could even use interior design software to plan the perfect shelving layout, although I have to say, the natural flow of this space makes planning a breeze.

Outdoor Living for Every Season
One of my favorite features? The outdoor spaces. This farmhouse doesn’t just have one patio—it has two covered patios and a barbecue porch.
Whether it’s hosting summer cookouts, watching kids play, or enjoying a quiet morning with a cup of coffee, these areas blend seamlessly with the interior.
Walls of glass bring the outside in, making the backyard feel like an extension of your living room. Honestly, I’ve already started imagining friends’ reactions during the next holiday gathering.
And for anyone concerned about long-term property value, these outdoor features aren’t just fun—they’re an investment.

Thoughtful additions like the barbecue porch and covered patios increase appeal to future buyers, making it a smart choice if you ever plan to refinance mortgage or consider a home equity loan.
Private Spaces for Family and Guests
The master suite in this home is nothing short of luxurious. With a vaulted ceiling, tray details, and direct access to the back porch, it feels like a personal retreat.
The 5-fixture bath and a deep walk-in closet offer every comfort you could imagine. Trust me, this isn’t just about aesthetics—it’s about functionality.
And each additional bedroom also comes with its own walk-in closet, giving everyone in the family their own space without sacrificing style.

The second bedroom, located across the home, has a private bathroom—perfect for teenagers, guests, or anyone who values privacy.
This separation of bedrooms, or “split bedroom” design, ensures that the master suite remains a quiet retreat even when the house is full.
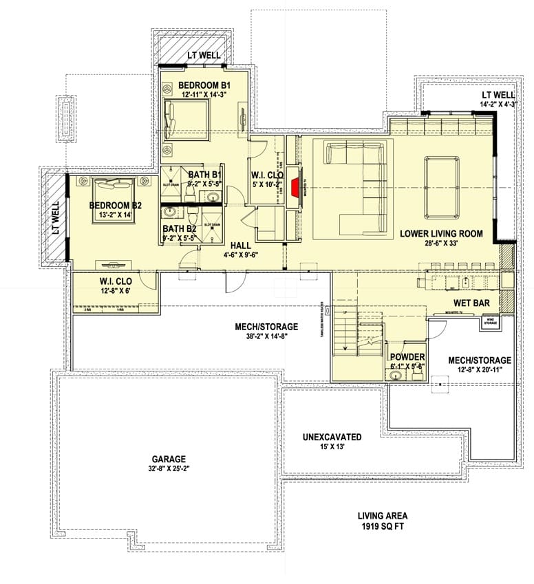
The optional finished lower level adds even more versatility, with two more bedrooms, a full bar, and an entertainment area. This space is perfect for hosting friends or creating a separate living area for older kids or in-laws.
Spaces That Work as Hard as You Do
Working from home has become the new normal, and this house plan takes that seriously.

The study offers a quiet, private space to focus, and the mudroom near the garage keeps the chaos of life contained.
Imagine walking in after a long day, dropping your keys and bags, and stepping straight into an organized, clutter-free zone—home improvement loans and remodeling contractors could help customize this even further, but the base plan is already fantastic.
If you’re thinking of buying, the thoughtful layout contributes to a smooth home loan pre-approval process. Banks love homes with practical flow, well-planned storage, and functional spaces.
Plus, the optional bonus space allows you to expand as your lifestyle changes—maybe a gym, an art studio, or even a home theater. And with building cost estimators available online, you can plan renovations or optional finishes without stress.

A Kitchen That Pulls Everyone Together
Let’s circle back to the kitchen because it deserves its own spotlight. The massive island isn’t just for show—it’s a functional hub.
You can prep meals, host casual breakfasts, and still engage with your family in the living room. This kind of layout isn’t just convenient; it’s a smart investment in daily living.
And for anyone thinking about home security, you can integrate smart home technology here, from appliance controls to security cameras, keeping your kitchen and living spaces both modern and safe.

The combination of a walk-in pantry and butler’s pantry allows for seamless entertaining.
You can stage drinks or hors d’oeuvres without disrupting the main kitchen workflow, and there’s even room to use interior design software to plan a fully customized setup.
For those considering a property purchase as an investment, these features make the home highly attractive to buyers and can boost property value.

Fireplace and Family Room: Heart of the Home
There’s something about a fireplace that makes a home feel instantly welcoming, and in this design, it’s strategically placed in the family room.
Whether it’s chilly evenings, game nights, or lazy Sundays, this is the spot where memories will be made. The layout ensures that the fireplace is visible from the kitchen, dining, and living areas, making it a central anchor.
For those concerned about long-term protection, integrating a best home security system is simple and doesn’t disrupt the design.

And with the right home insurance and home warranty, you can feel confident knowing your investment is protected, no matter what life throws your way.
Master Suite: Your Personal Retreat
Stepping into the master suite, I immediately felt a sense of calm. The vaulted ceiling adds drama without being overwhelming, and the tray details give the room an elegant finish.
There’s nothing like waking up and stepping directly onto your back porch with a morning coffee, soaking in the sunlight. The 5-fixture bath is designed for relaxation—double vanities, a soaking tub, and a spacious shower make it feel like your personal spa.

And of course, the deep walk-in closet has enough room for a wardrobe that would make any fashionista swoon.
Even better, this room isn’t just about luxury—it’s a smart financial move. Homes with thoughtfully designed master suites and private amenities tend to hold property value better over time.
And if you ever consider a home equity loan or refinance mortgage, features like this can significantly impact your appraisal in a positive way.

Split Bedrooms for Privacy and Comfort
One of my favorite design touches is the split bedroom layout. With the second bedroom on the opposite side of the home from the master, everyone enjoys privacy.
Each bedroom comes with its own walk-in closet, and the second bedroom even has a private bathroom. Whether it’s teenagers, guests, or remote-working adults, everyone has space to breathe.
The optional finished lower level adds yet another layer of flexibility. Two more bedrooms, a full bar, and a large entertainment space make it ideal for extended family visits, college-age kids, or even turning it into a rental space if you’re thinking of property investment.

Plus, there’s plenty of storage for seasonal décor or recreational equipment—something many homeowners underestimate when calculating building costs.
Outdoor Spaces: A Blend of Function and Fun
The outdoor living spaces truly elevate this farmhouse. Two covered patios plus a barbecue porch make it easy to host everything from family dinners to neighborhood get-togethers.
Walls of glass connect the interior to the exterior, creating a seamless flow. These spaces aren’t just beautiful—they’re functional.

Imagine cooking indoors while still monitoring the kids playing outside or enjoying a sunset with a glass of wine without leaving your kitchen.
From an investment perspective, these patios and porches add real value. Homes with versatile outdoor spaces are more appealing in the real estate market, and they make refinancing or resale a smoother process.
And for families concerned about security, the integration of smart home technology allows you to monitor outdoor cameras, lights, and even locks from your phone. It’s convenience and peace of mind rolled into one.

The Study and Mudroom: Practical Luxury
The study is perfect for anyone who works from home or simply needs a quiet place to read, pay bills, or focus on projects.
It’s a reminder that luxury isn’t just about big spaces; it’s about practical, usable spaces that make everyday life easier. The mudroom, conveniently located near the garage entrance, helps keep clutter under control.
You can drop off backpacks, shoes, or groceries without disrupting the rest of the home.

These areas might seem minor, but they are essential for daily living and even impact property value. Well-planned spaces can simplify home improvement projects and make it easier to secure home improvement loans if you want to upgrade in the future.
Plus, real estate agents often highlight these functional areas when showing homes to potential buyers—they make a lasting impression.
Kitchen and Dining: Entertaining Made Easy
Returning to the kitchen, I can’t get over how perfectly it integrates with the dining area and living room.

The massive island is ideal for prepping meals, casual dining, or even a homework station. And when it’s time for a bigger gathering, the dining area opens to one of the covered patios. Your indoor and outdoor spaces become a single, fluid environment.
For those thinking about purchasing this home, the combination of an open floor plan, modern kitchen, and outdoor dining spaces can enhance home equity and overall investment appeal.
It’s a design that encourages living fully while also protecting your financial interests. And yes, even tasks like checking your credit score or planning a home loan pre-approval feel less stressful when you’re in a space that inspires calm and organization.

Side-Load Garage and Corner Lot Advantage
The side-load garage is a clever feature, especially for corner lots. It keeps the driveway discreet, maximizes curb appeal, and provides easy access to the mudroom and kitchen.
This design balances aesthetics and function, making your home both beautiful and practical. And if you ever decide to finish the lower level, you can plan access and storage with a building cost estimator to get accurate budgeting information.
Optional Lower Level: Entertainment and Versatility
The optional finished lower level takes this home to another level—literally. Two additional bedrooms, a full bar, and an entertainment space create a perfect zone for teenagers, guests, or hosting parties.

There’s also abundant storage, ensuring your main floor stays uncluttered.
Whether you’re considering using this area as a rental for extra income or simply a retreat for family members, it adds flexibility and investment value.
Smart homeowners know that spaces like this make refinancing, home equity loans, or even selling the home easier down the line.

Bringing It All Together: Modern Farmhouse Living
From the moment you approach the home to the final step into the optional lower level, every detail has been thoughtfully designed.
Deep eaves, decorative brackets, and a mixture of exterior materials create undeniable curb appeal. Inside, open layouts, walls of glass, vaulted ceilings, and well-placed fireplaces enhance everyday living.
Outdoor spaces, a study, mudroom, and optional bonus areas give you the flexibility to live the life you want.

Add in modern amenities like smart home technology, easy integration for a best home security system, and the potential for home improvement loans or remodeling, and you have a home that’s ready for today while flexible for tomorrow.
Every feature—from the kitchen island to the side-load garage—is about maximizing function, comfort, and style, making this modern farmhouse not just a house, but an investment in your lifestyle.
If you’re in the market to buy, this home combines everything a family could want with the practical considerations that make it financially sound.

Whether you’re thinking of securing a home loan pre-approval, refinancing a mortgage in the future, or just ensuring your home insurance and warranty are comprehensive, this house is set up for success.
From vaulted ceilings and luxurious master suite to split bedrooms, optional lower level, and expansive outdoor living, every corner of this home balances beauty, function, and long-term value.
It’s a modern farmhouse that doesn’t just impress—it works hard for your lifestyle and your investment.
So, if you’re dreaming about a home that blends charm, practicality, and smart design, this modern farmhouse is worth a closer look.
It’s not just a purchase—it’s a home that grows with you, adapts to your needs, and brings family and friends together in style.
Building or buying a home isn’t just about picking the perfect house plan—it’s also about making smart long-term choices. From comparing mortgage rates to finding a trustworthy real estate agent, every decision adds value. Don’t forget to explore options like home insurance, home warranties, and potential refinance opportunities to protect your investment.
Want to boost your property value? Consider installing solar panels, upgrading to energy-efficient appliances, or integrating a smart home system. Plus, tools like interior design software can help you visualize and plan your dream space before the first brick is even laid.
Find More House Plans
By Bedrooms:
1 Bedroom • 2 Bedrooms • 3 Bedrooms • 4 Bedrooms • 5 Bedrooms • 6 Bedrooms • 7 Bedrooms • 8 Bedrooms • 9 Bedrooms • 10 Bedrooms
By Levels:
By Total Size:
Under 1,000 SF • 1,000 to 1,500 SF • 1,500 to 2,000 SF • 2,000 to 2,500 SF • 2,500 to 3,000 SF • 3,000 to 3,500 SF • 3,500 to 4,000 SF • 4,000 to 5,000 SF • 5,000 to 10,000 SF • 10,000 to 15,000 SF










