3- or 4-Bedroom 2-Story Modern Farmhouse With 4-to-8-Car Garage and Workshop (Floor Plan)

Specifications:
- 2,636 Sq. Ft.
- 3-4 Beds
- 3.5 – 4.5 Baths
- 2 Stories
- 4-8 Cars
If you’re like me and dream of sipping coffee on a big ol’ front porch while the sun comes up—or watching a thunderstorm roll in from the safety of your covered rear porch—then this house plan might just be your soulmate.
It checks off all the boxes: charm, functionality, and more closet space than I know what to do with.
So grab your favorite drink, settle in, and let’s take a friendly stroll through this jaw-dropping modern farmhouse that’s more than just another pretty face on the block.



Curb Appeal That Winks at You
Let’s start outside, where this 2-story modern farmhouse plan welcomes you with an expansive front porch that says, “Come on in and stay a while.”
And honestly, who wouldn’t?

The porch alone makes me want to buy the rocking chairs I’ve never owned. It’s ideal for corner lots thanks to a side-load garage layout that adds both practicality and undeniable curb appeal.
With a workshop and garage space that can house up to 8 cars, trailers, mowers, or possibly a time machine (hey, it’s deep enough), this house means business.

The garage measures an outrageous 2,776 square feet. I’ve seen commercial buildings with less square footage.
Need a separate bay just for your weekend woodworking projects? Got it. Want to access your landscaping equipment without navigating through your SUV maze? Done.

There’s even a rear bay door so you’re not wrestling with wheelbarrows in tight corners. Someone was clearly thinking when they drew up this plan.
Walk In and Breathe
Step inside and the foyer greets you like a real estate agent with a warm smile and a strong handshake.

To your right is the formal dining room, and beyond that, you can already see straight into the heart of the home—the great room with its vaulted ceiling and a fireplace begging for holiday stockings and late-night hot cocoa.
That’s the magic of an open layout: it just feels right. You’re not bumping into walls or wondering where to host the next birthday party.

Instead, the flow from foyer to great room to kitchen is seamless.
The kitchen is an L-shaped dream with sightlines that would make a home loan pre-approval agent nod in approval.

From the island—complete with a built-in sink and seating for four—you can see the family room and backyard, so no one misses out on the conversation. Or the chaos.
And thanks to those gorgeous walls of glass? Light pours in like a mortgage rate that finally dipped below 6%. It makes every space feel larger, airier, and a whole lot more expensive than it probably is.

Kitchen Goals = Achieved
The kitchen isn’t just stylish—it’s smart. With a butler’s pantry and a walk-in pantry, you’ll never run out of storage.
Trust me, I could fill both with just Costco trips and still have room left over.

There’s even a handy prep counter next to the fridge, which basically acts as your personal sous-chef station.
From the kitchen, you’re just steps away from a cozy mudroom that connects the garage to the house—a must-have feature for anyone who’s ever tried to juggle groceries, kids, and sanity at the same time.

Oh, and there’s a half bath right off the mudroom too. Because someone knew that bathroom access near the garage is non-negotiable.
Honestly, if I had access to some interior design software, I’d already be picking out cabinet colors and dreaming of the backsplash tile.

It’s a layout that makes you want to buy groceries just so you can cook in it.
Owner’s Suite: A Place to Hide from Everything
Now let’s talk about my favorite room: the main-level owner’s suite. Tucked away on the left side of the house, it’s your own personal sanctuary.

We’re talking tray ceiling elegance, private porch access for sneaky stargazing, and a bathroom that makes your favorite spa look sad.
The en-suite bathroom includes a double vanity, a water closet (aka: private throne zone), and a walk-in glass shower so big you might lose a towel in there. But the real cherry on top?

The walk-in closet connects directly to the laundry room. I’m not crying, you’re crying.
This suite screams luxury but keeps it down-to-earth. It’s ideal for anyone thinking about long-term investment value or building a forever home that’ll age as gracefully as your credit score after a few on-time payments.

Flexibility Upstairs and Downstairs
Upstairs, you’ve got two more generously sized bedrooms, each with—you guessed it—walk-in closets.
These bedrooms share a full bathroom with a double sink vanity, which means fewer morning arguments about who gets to brush their teeth first.

And if you’re working with a home remodeling contractor in the future, there’s plenty of space to turn one into a guest suite, craft room, or TikTok studio. I’m not here to judge.
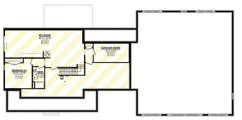
Now, here’s where things get interesting: the optional finished basement. You can expand your living space by up to 1,251 square feet if you finish it out.

It includes a large rec room (hello movie nights), an additional bedroom with a full bath, a storage/mechanical room, and even a safe room.
Yes, a safe room. Whether you use it for emergencies or to hide from your in-laws, it’s there.

And for those looking to purchase a home with future flexibility, this lower level is basically a blank check.
Need a space for a teenage hangout or multigenerational living? Done. Want to boost your property value and home equity down the road? Check and check.

The Office That Makes You Want to Work
We can’t forget the dedicated home office tucked away just off the vestibule.
It includes a built-in wraparound desk, perfect for remote work, crafting, or making poor online shopping decisions.

If you’ve ever tried working from the kitchen table while someone’s blender is going full tilt, this space will feel like a promotion.
It’s even located far enough from the great room that you can focus but close enough to the coffee pot that you’re never more than 15 steps away from your next caffeine fix.

With smart home technology and the best home security system wired in, you can work, live, and relax without worry.
Porch Life Is the Best Life
This home has not one, but two amazing porches. The front porch spans the width of the home and is the kind of space that demands rocking chairs, hanging ferns, and a pitcher of sweet tea. It doesn’t just add charm—it gives you actual, usable square footage.

Want to meet neighbors or wave at your Amazon driver like royalty? This is the place.
Now, let’s talk about the rear porch, because it’s not just a patio—it’s a full-blown outdoor living space.

There’s even a built-in barbecue area, which means you’ll be hosting every summer cookout from now until eternity.
Forget restaurant reservations. You’ll be grilling, laughing, and making memories right in your own backyard.

These outdoor features also give a nice boost to your home insurance value and make your backyard an extension of your indoor space.

When you’re estimating potential resale or investment opportunities, outdoor living is the kind of feature that raises eyebrows (in a good way) with appraisers and buyers alike.

Bonus Space = Bonus Life
Above the garage and within the footprint of this house is optional bonus space just waiting for your personal touch.

Game room? Home gym? Yoga studio with goat rentals optional? You decide.

What’s amazing about this design is its flexibility.

If you’re not ready to finish it right away, no big deal. You can complete it later with the help of a good home remodeling contractor, using home improvement loans or a chunk of home equity.

Your call. And when you do finish it? Boom—instant square footage increase and a bump to your property value.

It’s also worth mentioning that if you’re exploring refinance mortgage options down the road, finished spaces like this can play a big role in helping you secure better terms.

Spacious and Service-Oriented
From the layout alone, you can tell this house was designed for real life, not just magazine photos.

There’s a mudroom that makes coming home easy and organized, and the laundry room is directly connected to the master closet. That’s what we call “laundry game-changer.”

This kind of layout means less time schlepping baskets of laundry and more time actually enjoying your home—or using that building cost estimator to plan your next project.

And speaking of planning, if you’re dreaming about the day you’ll buy this place or something like it, now’s a great time to check out your home loan pre-approval. You never know when rates will shift or when your dream home will pop up.

Future-Proof and Family-Friendly
One of my favorite features? Every bedroom—yes, every single one—has a walk-in closet.

If you’ve ever shared a standard closet with a partner or tried to store four seasons’ worth of clothes in a tiny reach-in, this is a game-changer. Storage is where luxury lives, folks.

The upstairs bedrooms are perfect for kids, guests, or your growing collection of vintage sweaters.

And with the optional basement offering a fourth bedroom and full bath, this home can comfortably grow with your family—or host an epic in-law suite situation.

Whether you’re planning to live here for decades or thinking of your purchase as a smart investment, it’s designed to work for just about any phase of life.

Smart Living From Top to Bottom
Technology lovers, rejoice! There’s plenty of potential here to implement the best home security system and the latest smart home technology.

Set up your lights to dim at sunset, lock your doors from your phone, or play smooth jazz in the mudroom on demand—because why not?

Adding these features can not only make life easier, but also improve your credit score over time if financed smartly through the right vendor or home equity loan.

Plus, they’re often considered valuable when it comes time to sell, refinance, or even just impress your tech-savvy friends.

So there you have it—our tour of a house plan that somehow balances everyday comfort, future flexibility, and just enough luxury to make you feel a little fancy.

Whether you’re chasing lower mortgage rates, thinking about a refinance mortgage, or just trying to figure out where to hang your hammock, this house plan offers a lot more than walls and windows.
It’s a warm, welcoming space that grows with you—and maybe even makes you a little excited to tackle that to-do list.
From the generous porches to the cleverly connected closets and that absolute behemoth of a garage, it’s hard not to picture yourself living here.
Just don’t forget to invite me over for barbecue. I’ll bring dessert.
Building or buying a home isn’t just about picking the perfect house plan—it’s also about making smart long-term choices. From comparing mortgage rates to finding a trustworthy real estate agent, every decision adds value. Don’t forget to explore options like home insurance, home warranties, and potential refinance opportunities to protect your investment.
Want to boost your property value? Consider installing solar panels, upgrading to energy-efficient appliances, or integrating a smart home system. Plus, tools like interior design software can help you visualize and plan your dream space before the first brick is even laid.
Find More House Plans
By Bedrooms:
1 Bedroom • 2 Bedrooms • 3 Bedrooms • 4 Bedrooms • 5 Bedrooms • 6 Bedrooms • 7 Bedrooms • 8 Bedrooms • 9 Bedrooms • 10 Bedrooms
By Levels:
By Total Size:
Under 1,000 SF • 1,000 to 1,500 SF • 1,500 to 2,000 SF • 2,000 to 2,500 SF • 2,500 to 3,000 SF • 3,000 to 3,500 SF • 3,500 to 4,000 SF • 4,000 to 5,000 SF • 5,000 to 10,000 SF • 10,000 to 15,000 SF










