3-Bedroom Barndo-Style Farmhouse with Spacious Front Porch (Floor Plan)

Specifications:
- 1,878 sq. ft.
- 3 Beds
- 2.5 Baths
- 1 Stories
- 3 Cars
I’ll be honest—some house plans are nice, some are practical, and then there are those rare designs that make you say, “Yep, this is the one.”
This modern farmhouse barndominium firmly lands in that last category.
From the open layout to the wraparound porch that practically begs for rocking chairs and iced tea, this plan feels like it was designed by someone who actually understands how people live.
Let me walk you through why I’m genuinely excited about this home and why it checks so many boxes for comfort, function, and long-term value.
What immediately stands out to me is how thoughtfully this home balances farmhouse charm with modern efficiency.


A Modern Farmhouse That Gets Real Life Right
With 3 bedrooms, 2.5 baths, and a spacious 1,878 square feet of heated living space, it’s the kind of layout that works whether you’re looking to buy your forever home or make a smart investment.
The barndominium-style exterior brings rustic appeal, while the clean lines and smart layout feel fresh and current—exactly the kind of design that tends to hold strong property value over time.
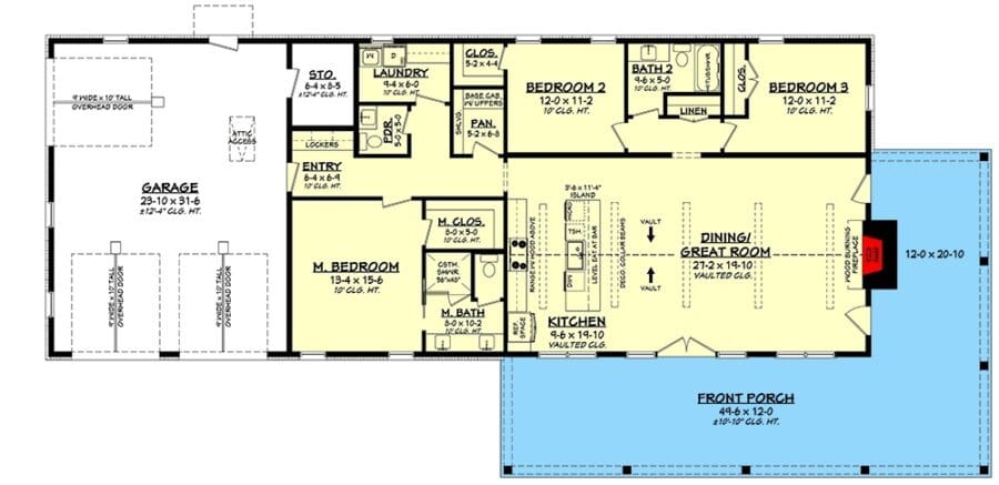
Before even stepping inside, that 12-foot-deep wraparound porch wrapping across the front and side sets the tone. This isn’t just decorative outdoor space—it’s usable, livable square footage that extends your home into the outdoors.
Whether you’re grilling on the barbecue porch, hosting friends, or just watching the sunset, this porch alone makes a strong case for purchase.
Open-Concept Living with Vaulted Drama
Once inside, the vaulted ceiling in the main living area immediately gives the home a sense of volume and airiness that far exceeds its square footage. I love how the great room seamlessly connects the family room, dining area, and kitchen.
This open layout makes everyday life easier and entertaining far more enjoyable. You can cook, chat, keep an eye on the fire in the family room fireplace, and still feel connected to everyone around you.
The fireplace anchors the space beautifully, creating a cozy focal point that works just as well on a quiet night in as it does during holiday gatherings.

And because the kitchen sink is positioned in the island facing forward, you’re never stuck staring at a wall while prepping dinner. It’s one of those small design choices that makes a big difference in how the home feels day to day.
A Kitchen Designed for Real Cooking and Real Storage
Let’s talk about this kitchen, because it deserves the attention. The oversized 11-foot-plus island is a standout feature, offering plenty of room for meal prep, casual dining, homework sessions, or late-night snacks.
This is the kind of kitchen that makes you feel like you don’t need a home remodeling contractor anytime soon—everything already works the way it should.
Storage is another major win here. Not only do you get a walk-in food pantry tucked conveniently around the corner, but there’s also a butler’s pantry. That extra space is perfect for small appliances, serving pieces, or even staging meals when entertaining.
It’s a feature often found in higher-end homes, and having it here adds both convenience and long-term appeal if you ever decide to refinance mortgage terms or leverage a home equity loan down the road.
Walls of glass line the back of the living space, flooding the interior with natural light and connecting you visually to the backyard and porch.
It’s exactly the kind of feature that elevates everyday living and works beautifully with modern smart home technology, whether you’re managing lighting, security, or climate control.

Split Bedrooms for Privacy and Peace
One of my favorite aspects of this plan is the split bedroom design. Two secondary bedrooms are grouped together behind the great room, separated by a central full bath with a linen closet in the hall.
This setup is ideal for kids, guests, or even a home office arrangement, especially if you’re using interior design software to plan furniture layouts and storage.
Every bedroom includes a walk-in closet, which is a huge plus. It’s not just about storage—it’s about flexibility.
Walk-in closets add perceived space, improve daily organization, and contribute to resale appeal if you ever work with a real estate agent to list the home.
A Primary Suite That Feels Like a Retreat
Tucked away down the garage entry hall, the master suite enjoys privacy from the rest of the home. I love how intentional this feels—it’s quiet, secluded, and perfectly placed.
The tray ceiling adds subtle architectural interest without feeling over-the-top, and the direct access to the back porch is a feature you’ll appreciate every single morning.
The ensuite bath is equally well thought out, with a four-fixture layout that includes a double-sink vanity, a private water closet, and a large walk-in shower.

It’s functional, comfortable, and designed to age well with you, which matters when you’re thinking long-term—especially if you’re factoring in home insurance, a home warranty, or even future home improvement loans.
Conveniently located across the hall, the laundry room makes daily chores easier, while a nearby powder room ensures guests never have to wander into private spaces.
Garage, Mudroom, and Storage That Work Overtime
This home’s oversized 791-square-foot garage is more than just a place to park cars. With three bays—including a side-entry door—it’s ideal for a corner lot and offers incredible flexibility.
Whether you’re storing equipment, setting up a workshop, or planning future projects using a building cost estimator, this garage can handle it.
The garage entry leads into a smart landing zone with lockers that doubles as a mudroom. It’s one of those features you don’t realize you need until you have it, especially if you value a clean interior and have ever researched the best home security system to protect both your home and belongings.
There’s also a large storage room nearby that could easily function as a small workshop or project space—perfect for keeping tools, seasonal items, or hobby supplies out of sight.
his plan isn’t just about looking good—it’s about living well, planning smartly, and creating a home that supports your lifestyle today while protecting your credit score and financial future tomorrow.

I’ll dive deeper into the outdoor living spaces, optional bonus area, construction details, and why this design makes so much sense whether you’re ready to buy now or preparing for home loan pre-approval soon.
Outdoor Living That Feels Like an Extension of the Home
I can’t talk about this plan without coming back to that wraparound porch—because honestly, it’s doing a lot of heavy lifting. With 12 feet of depth along the front and side, this isn’t a narrow pass-through porch meant only for curb appeal.
It’s a genuine outdoor living zone that supports everything from morning coffee rituals to weekend cookouts on the barbecue porch.
The way the walls of glass visually and physically connect the great room to the porch and backyard makes the entire home feel larger and more relaxed. Open those doors, and suddenly your indoor entertaining space doubles.
It’s easy to imagine hosting friends here while casually discussing mortgage rates, future upgrades, or even that refinance mortgage you’ve been meaning to look into—because this is the kind of house that makes you think long term.
Outdoor living spaces like this also tend to boost property value, especially when they’re designed as intentionally as this one.
They photograph well, live well, and age well, which matters whether you plan to stay for decades or eventually work with a real estate agent to sell.

Optional Bonus Space That Grows with You
One of the smartest features of this plan is the optional bonus space. I appreciate that it’s there when you’re ready—but not forcing you to build it out immediately.
That flexibility can make a real difference during the purchase phase, especially if you’re working through home loan pre-approval and trying to balance priorities.
Finish it later, and suddenly you’ve got a game room, home office, guest suite, or hobby space without having to expand the footprint of the house.
It’s the kind of feature that pairs well with future home improvement loans and lets you adapt the home as your needs evolve.
From a financial perspective, optional spaces like this can be a quiet win. You’re essentially banking future square footage that can increase livability—and value—without committing upfront.
If you’re the type who likes to run numbers through a building cost estimator, this design gives you room to plan smartly.
Practical Construction with Long-Term Sense
Behind the scenes, this home is built with conventional wood framing and sturdy 2×6 exterior walls. That’s not just a technical detail—it’s a practical choice that supports better insulation, energy efficiency, and durability.

Over time, those things matter, especially when factoring in home insurance costs and overall maintenance.
A well-built structure also plays nicely with modern upgrades. Whether you’re adding smart home technology, upgrading insulation, or integrating the best home security system, this home’s construction supports it without unnecessary complications. It’s a strong foundation—literally and figuratively—for future improvements.
A Garage That Does More Than Park Cars
I want to circle back to the garage because it’s easy to underestimate how valuable this space really is. With 791 square feet, three bays, and a side-entry option, this garage feels more like a utility hub than an afterthought.
The third bay, in particular, opens up options for storage, a workshop, or even a small business setup.
The adjacent storage room reinforces that flexibility. Whether you’re tackling DIY projects, storing seasonal gear, or planning upgrades with a home remodeling contractor, having dedicated space keeps the rest of the home clean and calm.
The mudroom-style landing zone with lockers is another small feature that quietly improves daily life. Shoes, bags, tools—it all has a place.
That kind of organization matters more than people realize, especially if you’re thinking about resale appeal or long-term livability.

Everyday Functionality Meets Smart Planning
What I like most about this plan is how it supports real life. The laundry room across from the primary suite saves steps.
The powder room near the garage keeps messes contained. The split bedroom layout gives everyone privacy. These aren’t flashy features—but they’re the ones homeowners end up loving the most.
It’s also a layout that adapts well to technology. Whether you’re managing lighting, climate, or security through smart home technology, the open layout and clear zones make integration easy.
You can visualize it all clearly using interior design software, which makes planning furniture, storage, and future upgrades much more straightforward.
Beyond the layout and aesthetics, this home just makes sense financially. It’s the kind of design that appeals to a wide range of buyers, which is exactly what you want if you’re thinking in terms of investment.
The modern farmhouse style, the barndominium influence, the open layout, and the outdoor living spaces all align with current market demand.
Strong design choices can help protect your credit score by reducing the need for constant renovations. They can also make it easier to justify a home equity loan later if you decide to expand, upgrade, or refinance.

Even routine considerations like home warranty coverage and long-term home insurance planning feel more manageable when the house itself is efficient and well thought out.
At the end of the day, this modern farmhouse barndominium isn’t just attractive—it’s intentional. Every square foot works hard, every feature serves a purpose, and nothing feels wasted. It’s a home you can confidently buy knowing it will support your lifestyle now and adapt with you over time.
Whether you’re drawn to the wraparound porch, the vaulted great room, the flexible bonus space, or the rock-solid construction, this plan delivers on both emotion and logic.
It’s comfortable without being boring, stylish without being impractical, and smart without feeling cold.
And honestly, that’s the kind of house worth purchasing—not just as a place to live, but as a place that grows with you, protects your investment, and still feels like home every time you walk through the door.
Building or buying a home isn’t just about picking the perfect house plan—it’s also about making smart long-term choices. From comparing mortgage rates to finding a trustworthy real estate agent, every decision adds value. Don’t forget to explore options like home insurance, home warranties, and potential refinance opportunities to protect your investment.
Want to boost your property value? Consider installing solar panels, upgrading to energy-efficient appliances, or integrating a smart home system. Plus, tools like interior design software can help you visualize and plan your dream space before the first brick is even laid.
Find More House Plans
By Bedrooms:
1 Bedroom • 2 Bedrooms • 3 Bedrooms • 4 Bedrooms • 5 Bedrooms • 6 Bedrooms • 7 Bedrooms • 8 Bedrooms • 9 Bedrooms • 10 Bedrooms
By Levels:
By Total Size:
Under 1,000 SF • 1,000 to 1,500 SF • 1,500 to 2,000 SF • 2,000 to 2,500 SF • 2,500 to 3,000 SF • 3,000 to 3,500 SF • 3,500 to 4,000 SF • 4,000 to 5,000 SF • 5,000 to 10,000 SF • 10,000 to 15,000 SF










