3-Bedroom 2-Story Modern Farmhouse Barndominium with Loft, RV Garage, and Optional Bonus Rooms (Floor Plan)

Specifications:
- 2,577 sq. ft.
- 4 Beds
- 3.5 Baths
- 2 Stories
- 4 Cars
I’ve seen a lot of house plans in my time, but every now and then one stops me mid-scroll—and this modern farmhouse barndominium does exactly that.
It’s the kind of home that feels equally ready for Sunday family dinners, quiet weekday mornings, and long-term living without outgrowing it.
From the open layout to the wraparound porch and that show-stopping garage workshop, this plan checks boxes I didn’t even know I had.
Let’s start with the overall vibe.


A Modern Farmhouse That Actually Lives Well
This is not a farmhouse that’s farmhouse “in name only.” It’s warm, practical, and thoughtfully laid out, with modern conveniences woven into every square foot.
The open layout immediately sets the tone, creating a communal heart where cooking, relaxing, and entertaining all happen together.
If you’re thinking about whether to buy or purchase a home that truly supports everyday life—not just looks good in photos—this plan makes a strong case.
The side-load garage makes it ideal for a corner lot, which is something a savvy real estate agent would point out right away when discussing long-term property value.

And if you’re considering this home as both a lifestyle upgrade and an investment, the flexible design supports that thinking beautifully.
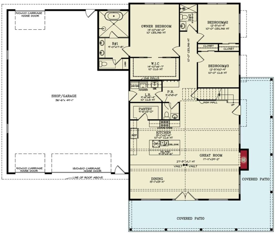
The Great Room: Where Life Actually Happens
The great room is the emotional center of this home. It’s open, airy, and anchored by a cozy fireplace that adds warmth without overpowering the space.
I love how the two-story vaulted ceiling gives the room a sense of drama while still feeling welcoming.
This is where movie nights happen, where guests gather, and where you’ll probably end up standing with a cup of coffee far longer than planned.

The kitchen island faces forward, which may sound like a small thing, but it’s a big deal. You can cook, chat, and keep an eye on everything at once.
It’s the kind of layout that makes entertaining feel effortless—and it’s exactly what people look for when comparing plans using interior design software or running numbers through a building cost estimator.
A Kitchen Designed for Real Life (and Real Storage)
This kitchen doesn’t just look good—it works hard. The island doubles as an eating bar, perfect for quick breakfasts or casual snacks. And then there’s the storage.
A walk-in food pantry handles everyday needs, while the butler’s pantry steps in for hosting duties, appliances, and overflow. If you’ve ever lived with not-quite-enough pantry space, you know how valuable this is.

With smart home technology easily integrated into lighting, appliances, and climate control, this kitchen can be as high-tech or as traditional as you want.
And when you think about resale or future refinancing—especially if mortgage rates shift—these features quietly support long-term appeal.
Walls of Glass and Outdoor Living That Delivers
One of my favorite elements of this plan is how seamlessly it connects indoors and outdoors.
Walls of glass bring in natural light and frame views of the backyard and porch, making the home feel larger and more connected to nature.

Two sets of French doors open to a covered patio that wraps around the entire great room, including a barbecue porch that’s practically begging for weekend cookouts.
Outdoor living like this isn’t just a lifestyle perk; it’s something that can positively influence home insurance considerations, property value, and even how future buyers emotionally connect to the space.
It’s easy to imagine installing the best home security system to protect both the interior and exterior, giving peace of mind without compromising aesthetics.
Split Bedrooms for Privacy and Comfort
The split-bedroom layout is one of those features you don’t fully appreciate until you live with it. Three bedrooms are located on the main level, each with its own walk-in closet—no arguments, no compromises.

The master suite is especially well done, with a tray ceiling that adds subtle elegance and a private door to the back porch. Morning coffee outside without waking the rest of the house? Yes, please.
The ensuite bath includes a freestanding tub that feels spa-like without being over-the-top. Behind pocket doors, the walk-in closet keeps storage discreet and organized.
These are the details that matter when you’re thinking long-term—especially if you’re weighing options like a home equity loan or future home improvement loans.
A Study That Adapts With You
Tucked away from the main living areas, the study offers a quiet retreat that works just as well as a home office, reading room, or hobby space.

With more people considering home loan pre-approval while factoring in work-from-home needs, having a dedicated study adds serious value.
It’s flexible enough to evolve with your lifestyle, whether you’re running a business, managing household finances, or just escaping the noise.
Bonus Space That Waits for You
I really appreciate that the optional bonus space can be finished when you’re ready. Not everyone wants—or needs—to do everything at once.

This approach gives you control over timing and budget, whether you’re watching your credit score, planning a refinance mortgage later, or coordinating with a home remodeling contractor down the road.
It’s a smart way to manage building costs while keeping future possibilities wide open. Media room, playroom, guest space—the choice is yours when the time is right.
A Garage That’s in a League of Its Own
Then there’s the garage workshop, and honestly, it deserves its own moment. Measuring an impressive 36′-6″ by 49′-1″, this oversized garage can accommodate three or four vehicles, including RV storage, plus workspace for projects, tools, or hobbies.

For anyone who values functionality—or sees potential for serious utility—this space is a standout feature.
Whether you’re thinking about storage, future resale, or simply enjoying the freedom to spread out, this garage supports both lifestyle and long-term investment thinking.
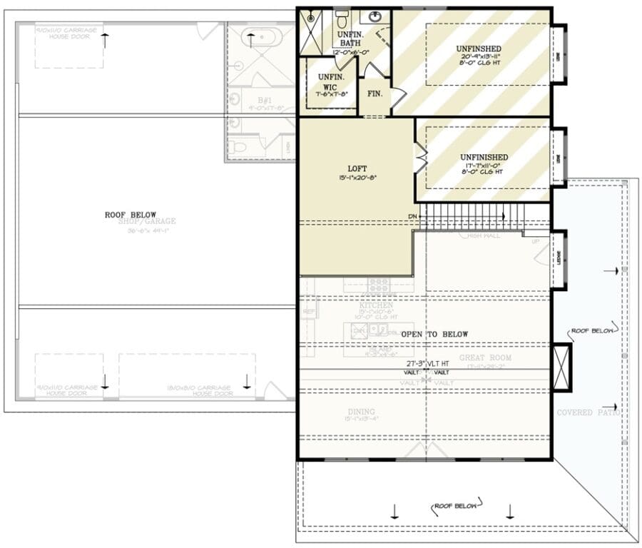
The Upstairs Loft: A Flexible Extension of the Living Space
As much as I love the main level, the upstairs loft is where this house plan quietly proves how smart it really is.

Open to the two-story vaulted great room below, the loft keeps the home feeling connected while still carving out a distinct zone.
I can see this space becoming a casual lounge, a game area, or even a secondary family room. It adapts without demanding a specific purpose, which is exactly what I want in a long-term purchase.
From a layout standpoint, this flexibility supports the home’s overall appeal and strengthens its property value.

Homes that offer adaptable spaces tend to age better, which matters whether you plan to stay forever or view the home as a long-term investment.
Optional Fourth Bedroom Suite Upstairs
The optional fourth bedroom suite upstairs is one of my favorite features because it adds capability without overcrowding the plan.
This suite feels private, tucked away from the main-level bedrooms, making it ideal for guests, older kids, or extended family. It’s the kind of space that makes the home work just as well for everyday living as it does for hosting.

When you look at the home through a financial lens—especially if you’re watching mortgage rates or thinking ahead to a refinance mortgage—an additional bedroom can significantly influence how the home is perceived in the market. More options usually translate to stronger demand.
Dedicated Storage That Keeps the Home Organized
Upstairs storage might not be flashy, but it’s incredibly important.
This plan includes dedicated storage space that keeps seasonal items, luggage, and extras out of sight but easily accessible.

Combined with the walk-in closets in every bedroom downstairs, the home stays organized without relying on cluttered corners or makeshift solutions.
Good storage protects finishes and systems over time, which can help when evaluating home insurance or maintaining the home’s condition.
It also makes future changes—funded through home improvement loans or planned upgrades—much easier to manage.

A Two-Story Great Room That Anchors the Design
Looking down from the loft into the great room really highlights how central this space is to the entire plan.
The two-story ceiling, fireplace, and walls of glass work together to create a room that feels both impressive and comfortable.
Natural light pours in, and the connection to the wraparound porch keeps the home grounded in its outdoor setting.

This architectural openness is something buyers often respond to emotionally, especially when using interior design software to visualize furniture layouts and finishes.
It’s easy to picture how the space lives, which makes the decision to buy feel more confident.
Seamless Indoor-to-Outdoor Flow from Every Angle
From upstairs and down, the home’s relationship with outdoor living is impossible to miss.

The covered patio and wraparound porch surround the great room, and multiple French doors make moving between inside and outside effortless. Whether it’s a quiet evening or a full gathering, the design supports both without adjustment.
Outdoor spaces like these are often a deciding factor during the purchase process.
They also provide opportunities for future enhancements, whether planned independently or with the help of a home remodeling contractor.

Main-Level Bedrooms That Keep Life Simple
Even though this section focuses on the upper level, the upstairs works so well because the main-level bedrooms are already doing their job.
Three bedrooms on the main floor—including the master suite—make daily living easy and efficient.
The split-bedroom layout preserves privacy, while walk-in closets across the board ensure no one feels shortchanged.

This kind of layout appeals to a wide range of buyers, something a seasoned real estate agent would immediately point out. Broad appeal supports long-term value and stability.
The Master Suite as a True Retreat
The master suite deserves another mention because it anchors the plan emotionally. The tray ceiling adds subtle elegance, and direct access to the back porch turns the bedroom into a true retreat.
The ensuite bath, with its freestanding tub and generous storage, feels both practical and indulgent.

Spaces like this influence how homeowners feel about staying long-term, which matters when evaluating options like a home equity loan or deciding how much to invest back into the property over time.
Bonus Space That Respects Your Timeline
One of the smartest parts of this plan is the optional bonus space. It’s there when you want it, but it doesn’t force your hand on day one.
Whether you’re managing your credit score, finalizing home loan pre-approval, or simply pacing your expenses, this approach gives you control.

When finished, the bonus area can become almost anything—media room, hobby space, or guest overflow—without disrupting the core layout of the home.
The Oversized Garage Workshop as a Functional Anchor
I can’t talk about the full plan without circling back to the oversized garage workshop. Its sheer size makes it more than just a place to park vehicles.
It supports storage, projects, and even future customization. For many homeowners, this kind of space is what turns a good house into the right house.

Functionality like this adds practical appeal and can factor into long-term planning, especially when weighing costs with a building cost estimator or considering protective options like a home warranty.
Taken as a whole, the upstairs loft, optional bedroom, storage, and connection to the great room reinforce how well this house plan is thought out.
It’s not flashy for the sake of being flashy. Every square foot serves a purpose, which supports everyday living and long-term value.
Whether you’re ready to purchase now or carefully planning your buy as part of a larger financial strategy, this modern farmhouse barndominium delivers balance.
It lives comfortably today and positions itself well for tomorrow, which is exactly what I look for in a truly well-designed house plan.
Building or buying a home isn’t just about picking the perfect house plan—it’s also about making smart long-term choices. From comparing mortgage rates to finding a trustworthy real estate agent, every decision adds value. Don’t forget to explore options like home insurance, home warranties, and potential refinance opportunities to protect your investment.
Want to boost your property value? Consider installing solar panels, upgrading to energy-efficient appliances, or integrating a smart home system. Plus, tools like interior design software can help you visualize and plan your dream space before the first brick is even laid.
Find More House Plans
By Bedrooms:
1 Bedroom • 2 Bedrooms • 3 Bedrooms • 4 Bedrooms • 5 Bedrooms • 6 Bedrooms • 7 Bedrooms • 8 Bedrooms • 9 Bedrooms • 10 Bedrooms
By Levels:
By Total Size:
Under 1,000 SF • 1,000 to 1,500 SF • 1,500 to 2,000 SF • 2,000 to 2,500 SF • 2,500 to 3,000 SF • 3,000 to 3,500 SF • 3,500 to 4,000 SF • 4,000 to 5,000 SF • 5,000 to 10,000 SF • 10,000 to 15,000 SF










