3-Bedroom 2-Story Modern Farmhouse with Wrap-Around Porch and 3-Car Side Garage (Floor Plan)

Specifications:
- 2,617 sq. ft.
- 3 Beds
- 4 Baths
- 2 Stories
- 3 Cars
I’ll admit it—I have a soft spot for a Modern Farmhouse.
There’s something about that clean New American aesthetic mixed with cozy charm that just feels right. And this 2,617 sq. ft. beauty?
It doesn’t just check the boxes. It practically builds new ones.
With 3 bedrooms, 4 full bathrooms, an open layout, and a 1,411 sq. ft. wrap-around porch, this home feels like the answer to every “what if we had…” conversation.
Let me walk you through why I’d seriously consider making this one my next investment.


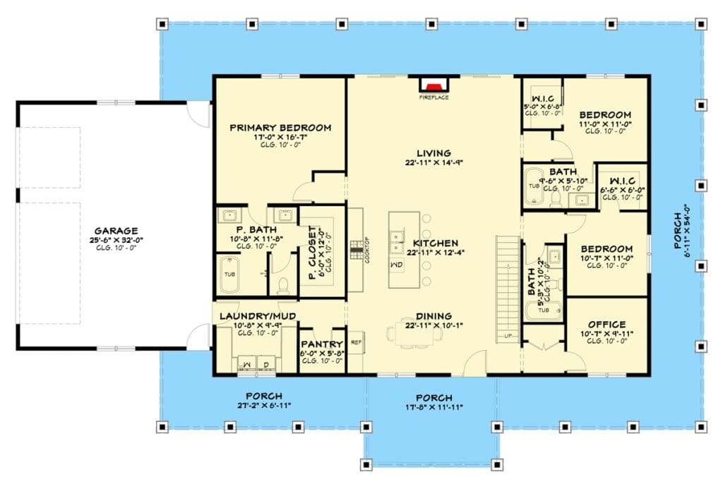
A Wrap-Around Porch That Steals the Show
Before I even step inside, I’m already imagining myself on that expansive 1,411-square-foot wrap-around porch.
Morning coffee on one side. Sunset dinner on the other. Maybe a lazy Saturday where I pretend I’m reading but actually just people-watching.
Outdoor living isn’t an afterthought here—it’s a lifestyle. There’s room for rocking chairs, outdoor sofas, planters, and yes, a full barbecue porch setup. If I’m going to buy, I want usable square footage that extends beyond four walls. And this porch delivers that in a big way.

From a property value perspective, large covered outdoor living areas are gold. A good real estate agent will tell you that buyers gravitate toward homes that feel bigger than their heated square footage.
This porch does exactly that. And when mortgage rates fluctuate (as they always do), it’s comforting to know that features like this keep a home competitive in the market.
An Open Layout Designed for Real Life
Once inside, the open-concept layout immediately makes sense. Sightlines stretch from the kitchen across the dining area into the family room. No awkward walls. No wasted space. Just flow.

And the family room fireplace? That’s where the magic happens. I love that the kitchen sink in the island faces forward toward the fireplace and living space. I can cook, host, or “supervise” homework without staring at a wall. It’s subtle, but it’s smart design.
Walls of glass line the back, flooding the home with natural light and offering views straight to the porch and backyard. The effect is bright, airy, and undeniably welcoming.
If I were using interior design software to plan furniture placement, I’d have a field day with the way everything connects so effortlessly.

When you’re thinking about purchase decisions—especially with today’s mortgage rates—you want a layout that won’t feel dated in five years.
Open concepts have proven staying power. That matters not just for enjoyment, but for long-term investment strategy.
A Chef’s Kitchen With Serious Backup
Now let’s talk about the kitchen, because this one is doing the most—in the best way possible.

First, there’s the large island with the sink facing forward (which I love, obviously). Then there’s the walk-in food pantry. But wait, there’s more: a butler’s pantry too.
The butler’s pantry is a game-changer. It creates a buffer between kitchen and dining, gives me extra storage, and hides the “real life” mess when guests arrive early. Small appliances? Gone. Extra groceries? Tucked away. Holiday prep chaos? Contained.
If I were calculating affordability with a building cost estimator, I’d smile knowing this design maximizes function without ballooning unnecessary square footage.

And if I ever decided to refinance mortgage terms down the road, having a high-function kitchen like this only strengthens my equity position.
The kitchen flows seamlessly into the dining and living areas, making it perfect for gatherings. Whether it’s Thanksgiving dinner or a random Tuesday taco night, the layout supports connection.
A Study That Understands Modern Life
Work-from-home is no longer a trend—it’s a norm. And this house plan gets that.

Tucked thoughtfully into the layout is a dedicated study. Not a desk in the corner. Not a converted closet. A real, defined home office space designed for productivity.
If I’m going through home loan pre-approval and preparing to purchase, I’m thinking about functionality as much as aesthetics. This study adds serious value. It’s ideal for remote work, managing finances, or even running a small business.
And let’s not forget security. With sensitive documents and work equipment at home, I’d absolutely consider installing the best home security system integrated with smart home technology.

Cameras, smart locks, motion sensors—this layout supports it all without compromising style.
Split Bedrooms = Sanity Preserved
One of my favorite features here is the split bedroom design. The master suite sits privately on the first floor, while the additional bedrooms are positioned for comfort and privacy.
If you’ve ever lived in a home where every bedroom shares a single hallway wall, you know how valuable separation can be. Whether it’s kids, guests, or in-laws visiting for “just a few days,” this layout protects everyone’s peace.

Each bedroom gets its own walk-in closet—no skimping, no arguing over storage. That detail might seem small, but it’s not. Good storage impacts daily living and long-term property value.
And from a financing standpoint, homes with functional family layouts often appraise stronger. That matters when you’re looking at a home equity loan later for upgrades or planning future home improvement loans.
A Master Suite That Feels Like a Retreat
The master suite is where this home really leans into luxury. A tray ceiling adds architectural interest without being flashy. There’s a private door leading straight to the back porch—imagine stepping out in the morning without walking through the entire house.

The ensuite bath is spacious, and the walk-in closet is ready for real life—not just staged photos.
When I think about making a purchase this significant, I consider long-term livability. A first-floor master suite in a split layout means aging in place is realistic. That’s not just comfort—that’s smart investment thinking.
And of course, protecting that investment means budgeting for home insurance and possibly a home warranty. With four full bathrooms and a feature-rich kitchen, coverage gives peace of mind. The more systems and appliances you have, the more valuable that protection becomes.

Side-Load Garage: Corner Lot Approved
The 815 sq. ft. three-car side-entry garage is both practical and strategic. For a corner lot, it’s perfect. The curb appeal stays clean, and the front elevation remains all farmhouse charm instead of garage doors.
Three cars mean flexibility—vehicles, storage, workshop space, or even a home gym setup. And as someone who thinks long-term, I like knowing that extra garage space appeals to future buyers too.
If I were discussing resale strategy with a real estate agent, this is the kind of feature they’d highlight immediately.

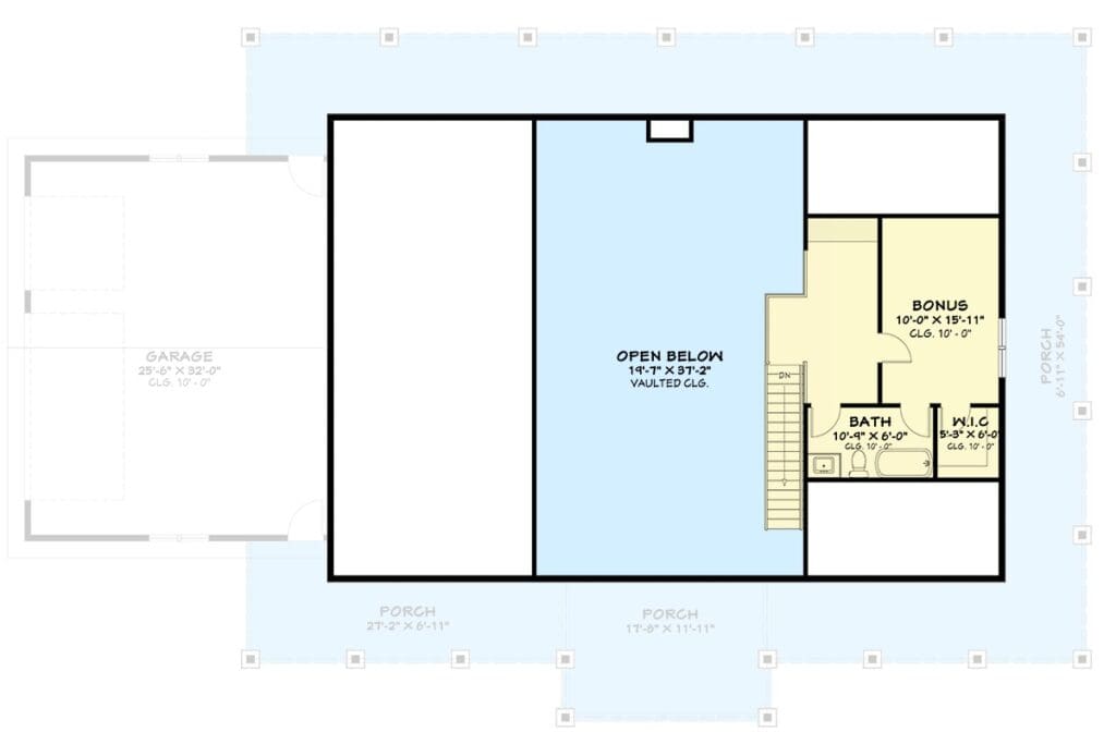
Loft Living, Flexible Bonus Space, and Outdoor Connection Done Right
If the first floor of this Modern Farmhouse wins me over with comfort and smart design, the second floor seals the deal with flexibility.
This is where the house quietly says, “Go ahead—grow into me.” And I love a floor plan that thinks ahead.
A Loft That Adapts to Real Life
At the top of the stairs, I’m greeted by a versatile loft area that feels like a natural extension of the open layout below. It’s not an afterthought; it’s intentional space.

This loft can become whatever life demands. Media lounge? Done. Homework headquarters? Absolutely. Reading nook with oversized chairs and built-in shelves? Now we’re talking. Because it’s open yet tucked upstairs, it feels connected without intruding on the main level’s daily rhythm.
From a design standpoint, it also helps the home breathe. Instead of cramming everything into the first floor, this upper-level retreat spreads activity out in a way that feels balanced.
When I picture using interior design software to map furniture placement, I can already see how easily this space transforms over time.

And flexibility matters. When I buy a home, I’m not just thinking about today—I’m thinking about how it performs as an investment. Spaces like this keep the home relevant, adaptable, and desirable.
Finished Bonus Room: Space When You’re Ready
One of my favorite elements in this plan is the optional finished bonus room. It’s there when I need it, and it can stay unfinished until I’m ready. That’s smart planning.
Maybe I finish it immediately as a dedicated media room. Maybe it becomes a guest suite, complete with one of the home’s four full bathrooms nearby. Or maybe it turns into a hobby space, home gym, or creative studio.

The beauty here is timing. If I’m managing my budget carefully—especially with mortgage rates doing their usual unpredictable dance—I might choose to finish this space later.
That’s where tools like a building cost estimator come in handy. I can plan upgrades strategically rather than stretching myself thin upfront.
And if I ever decide to refinance mortgage terms after building equity, finishing the bonus room could significantly enhance property value. Extra functional square footage almost always pays dividends in long-term resale appeal.

Walls of Glass and Seamless Indoor-Outdoor Living
What continues to impress me, even upstairs, is how connected the home feels to the outdoors. The generous walls of glass on the main level flood the interior with light and frame views of the backyard and wrap-around porch.
This connection isn’t just aesthetic—it’s experiential. I can cook in the chef’s kitchen while seeing the kids play outside. I can host gatherings where guests move naturally between the family room fireplace and the barbecue porch without traffic jams.
The 1,411 sq. ft. of porch space transforms the entire living experience. It’s not decorative square footage—it’s usable. Whether it’s morning coffee, evening relaxation, or weekend grilling sessions, this porch becomes an extension of daily life.

And when it comes to protecting a feature-rich home like this, smart home technology is a natural fit. Outdoor lighting control, smart doorbells, integrated cameras—the layout supports seamless upgrades. Pair that with the best home security system, and the home feels as safe as it is beautiful.
A Master Suite That Keeps Giving
Back on the main level, I can’t overstate how much I appreciate the placement of the master suite. The split bedroom layout gives it true privacy, separated from the additional bedrooms.
The tray ceiling adds subtle architectural depth without overwhelming the room. It feels refined but still relaxed—exactly what I want in a personal retreat. And that private door to the back porch?

That’s the detail that elevates everything. I can step outside in the early morning without walking through the entire house. It’s peaceful.
From a long-term perspective, a first-floor master suite is incredibly practical. It supports aging in place and broadens the home’s appeal.
If I were discussing resale strategy with a real estate agent, this is a feature they’d highlight immediately. Homes that accommodate different life stages maintain strong property value.

And of course, with four full bathrooms and generous living spaces, protecting the home with comprehensive home insurance and possibly a home warranty just makes sense.
When I purchase a property of this caliber, safeguarding the systems and appliances isn’t optional—it’s smart stewardship.
Every Bedroom Gets Its Due
Upstairs or down, every bedroom in this home comes with a walk-in closet. That’s not just generous—it’s practical. Storage is one of those things you don’t fully appreciate until you don’t have enough of it.

Walk-in closets reduce clutter, support better organization, and improve daily functionality. From a design standpoint, it keeps bedrooms feeling spacious and serene. And from an investment standpoint, it’s a feature buyers consistently look for.
If I were using home improvement loans down the road, I might customize closet systems or add built-ins, but the foundational space is already there. That’s what I want in a house plan: strong bones and smart proportions.
The Three-Car Side-Entry Garage Advantage
Let’s not forget the 815 sq. ft. three-car side-entry garage. Functionally, it’s a powerhouse. There’s room for vehicles, storage, tools, or even a workshop corner.

A side-load configuration also enhances curb appeal—especially on a corner lot. Instead of dominating the front elevation, the garage stays discreetly positioned on the side. The farmhouse charm remains front and center.
If I ever consider a home equity loan for upgrades, the garage offers countless possibilities—custom storage systems, epoxy flooring, maybe even a partial conversion into conditioned flex space.
And if I bring in a home remodeling contractor for future enhancements, the layout supports thoughtful expansion without disrupting the main living areas.

Designed for Smart Financial Planning
What I appreciate most about this Modern Farmhouse is how it balances aspiration with practicality. At 2,617 square feet, it’s spacious but not excessive. The layout is efficient. The optional bonus space allows phased investment.
Before I buy, I’d secure home loan pre-approval to understand exactly where I stand financially. My credit score plays a role in locking in favorable terms, especially as mortgage rates fluctuate. But once the numbers align, this home feels like a confident purchase rather than a risky leap.
It’s also a home that supports future financial flexibility. With strong resale features—split bedrooms, a first-floor master, expansive outdoor living, and a side-entry garage—the long-term investment potential feels solid.

If the market shifts and I choose to refinance mortgage terms later, I’d feel comfortable knowing the design remains highly marketable.
At the end of the day, this house plan doesn’t just look good on paper—it lives well. The open layout encourages connection.

The study supports productivity. The chef’s kitchen and dual pantries handle real life with grace. The loft and bonus room create space for evolution.
And that wrap-around porch? It quietly reminds me why I wanted a Modern Farmhouse in the first place.
If I’m going to make a purchase this significant, I want more than square footage. I want thoughtful design, flexibility, and long-term value.
This 3-bedroom, 4-bathroom Modern Farmhouse delivers all of that—and it does it with warmth, charm, and just enough practicality to make my accountant happy.
Honestly, I can already see myself there. And that’s usually how I know it’s the right investment.
Building or buying a home isn’t just about picking the perfect house plan—it’s also about making smart long-term choices. From comparing mortgage rates to finding a trustworthy real estate agent, every decision adds value. Don’t forget to explore options like home insurance, home warranties, and potential refinance opportunities to protect your investment.
Want to boost your property value? Consider installing solar panels, upgrading to energy-efficient appliances, or integrating a smart home system. Plus, tools like interior design software can help you visualize and plan your dream space before the first brick is even laid.
Find More House Plans
By Bedrooms:
1 Bedroom • 2 Bedrooms • 3 Bedrooms • 4 Bedrooms • 5 Bedrooms • 6 Bedrooms • 7 Bedrooms • 8 Bedrooms • 9 Bedrooms • 10 Bedrooms
By Levels:
By Total Size:
Under 1,000 SF • 1,000 to 1,500 SF • 1,500 to 2,000 SF • 2,000 to 2,500 SF • 2,500 to 3,000 SF • 3,000 to 3,500 SF • 3,500 to 4,000 SF • 4,000 to 5,000 SF • 5,000 to 10,000 SF • 10,000 to 15,000 SF










