3-Bedroom 2-Story Modern Farmhouse with Brick Exterior (Floor Plan)

Specifications:
- 3,204 Sq Ft
- 3 Beds
- 2.5 Baths
- 2 Stories
- 4 Cars
Let me just say it—this 3-bed modern farmhouse plan is the kind of home that makes you want to quit your job, start baking sourdough, and host Sunday dinners every weekend.
Clocking in at 3,204 square feet, with an elegant brick exterior and a layout so well thought-out it practically writes you a thank-you card, this is not just a house—it’s an experience.
Whether you’re buying for your forever home or looking for your next great investment, this plan delivers on charm, comfort, and good old practicality.
Let me give you the grand tour.


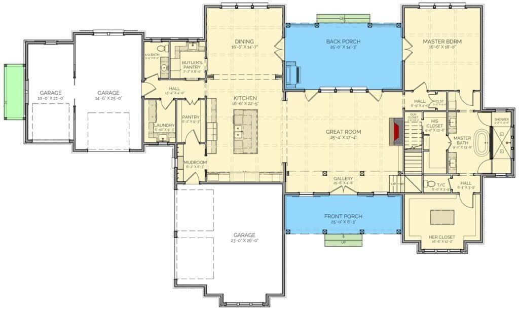
Curb Appeal That Turns Heads
We’ve got to start with the exterior.
This house has serious presence.
With 106 feet of width, this beauty isn’t shy.

The combination of modern farmhouse lines and a classic brick exterior gives it a balanced, timeless look that will stand strong in any neighborhood—or lakeside paradise, if you’re lucky.
Now, I know the current mortgage rates might make your eyebrows twitch, but hear me out: this is the kind of house that holds its property value over time.
It’s not just stylish; it’s smart.

You’re not just making a purchase; you’re making an investment in lifestyle and longevity.
Step Inside
Once you walk through the front porch—by the way, it’s a full 25 feet wide, perfect for rocking chairs and lemonade—you’re welcomed into a wide, elegant gallery that opens directly into the heart of the home: the great room.

At 25’4″ by 17’4″, the great room is designed for gathering, lounging, and, let’s be real, binge-watching shows while pretending to fold laundry.
A fireplace anchors the space, adding warmth (literal and aesthetic), while soaring 12-foot ceilings give you breathing room and then some.
Thanks to smart home technology integration potential, you can automate lighting, climate control, and even your entertainment system.

If you’re working with a real estate agent, trust me, this is the room they’ll brag about first.
A Kitchen That Would Make Gordon Ramsay Smile
If you love to cook—or just like the idea of looking like you cook—this kitchen is your playground.

Measuring 16’6″ by 22’5″, it features a massive island that seats the whole crew and doubles as a prep station or homework hub.
There’s also a walk-in pantry and a butler’s pantry for those of us who need extra space for everything from Insta-worthy charcuterie boards to, let’s be honest, Costco snacks.
Add in some interior design software planning, and this could easily become your dream culinary corner.

And let’s not forget the dining room that flows seamlessly from the kitchen, with easy access to the back porch.
Al fresco dinners under string lights, anyone?
Outdoor Living Done Right
The back porch is not just a porch—it’s an extension of your living space.

With 592 square feet, it’s practically a room of its own.
Morning coffee, weekend BBQs, evening wine and stargazing—whatever your vibe, this spot delivers.
Install the best home security system and you’re covered for peace of mind, whether you’re entertaining or away for a weekend getaway.

Bonus points for adding ceiling fans or a mounted outdoor TV.
The Master Suite
Tucked away on the right side of the main floor is the master suite—and yes, it’s swoon-worthy.
The bedroom alone measures 16′ by 18′, with windows that invite light and views, especially if you’re lakeside.

But the real showstopper is the master bath.
A spacious soaking tub, separate shower, dual vanities, and two walk-in closets (one for each of you or both for yourself—we don’t judge).
And let’s not overlook the T/C room (Toilet Closet, in fancy floor plan language).

It’s a sanctuary in itself.
You could refinance your mortgage just to add a spa tub here—kidding, but also… not really.
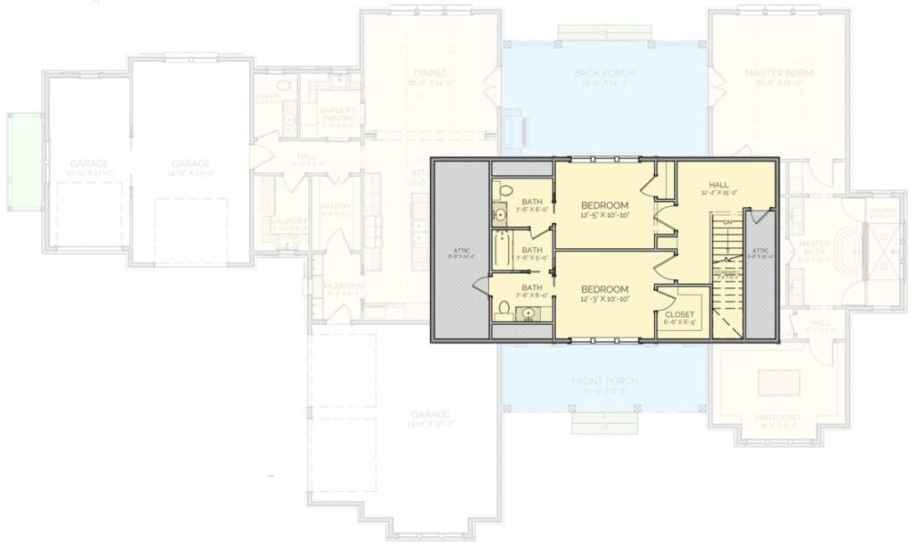
Upstairs
Head upstairs and you’ll find two additional bedrooms, each generously sized and complete with their own bathrooms.

At 12’5″ by 10’10” and 12’3″ by 10’10”, these rooms aren’t afterthoughts—they’re retreats.
The layout offers flexibility for older kids, guests, or even a full-blown home office.
With all the remote work going on, it’s easy to justify the purchase of a home that gives you both space and sanity.

Plus, with a great credit score, getting a home loan pre-approval is totally within reach—especially for a house that offers so much value.
Let’s Talk About That Garage (All 4 Cars of It)
If garages could win awards, this one would take home gold.
With space for four cars and a split layout—front and side entry—you’ve got room for cars, a workshop, bikes, storage, and your DIY dreams.

Whether you’re using a building cost estimator to project your expenses or planning to call a home remodeling contractor in the future, this garage gives you flexibility now and for years to come.
Function Meets Form
Let’s talk about the stuff most plans gloss over—the things that make life easier.
This home has a dedicated mudroom, a spacious laundry area, and a half bath right off the garage entrance.

Translation?
No more muddy footprints across your living room floor.
The laundry room (6’10” x 9’3″) is big enough for folding tables, built-ins, or even a second fridge.
And the pantry?

At 6’2″ x 9’3″, it’s more like a walk-in mini-warehouse.
Long-Term Value and Everyday Joy
This isn’t just a house.
It’s a home that evolves with you.

Whether you’re just stepping into homeownership or buying after years of renting, it supports your financial goals too.
Think about it: smart layout, beautiful exterior, flexible interior, and long-term resale potential.
You can tap into a home equity loan down the line for improvements or use your excellent credit score to secure low-interest home improvement loans.

The options are endless, and the bones of the house are strong enough to handle whatever upgrades your Pinterest board dreams up.
Insurance, Warranty, and Peace of Mind
Of course, no home is complete without considering the essentials like home insurance and a solid home warranty.

When you’re investing in a home of this caliber, it’s worth protecting.
Make sure your policy covers not just the basics but also things like smart home tech and those beautiful finishes you’ve carefully selected.
With the best home security system installed and your bases covered, this house won’t just look good—it’ll feel safe, smart, and sound.

So, if you’re searching for the perfect modern farmhouse plan with personality, function, and a little front porch flair, this one is worth every square foot.
Whether you’re buying with a partner, for your family, or as a savvy real estate investment, this home ticks all the boxes.
Get your home loan pre-approval lined up, touch base with your favorite real estate agent, and pull out that building cost estimator—it’s time to turn those blueprints into your dream home.
And if you’re already imagining what color you’ll paint the kitchen island or which smart thermostat to install—congrats, you’re already halfway home.
Building or buying a home isn’t just about picking the perfect house plan—it’s also about making smart long-term choices. From comparing mortgage rates to finding a trustworthy real estate agent, every decision adds value. Don’t forget to explore options like home insurance, home warranties, and potential refinance opportunities to protect your investment.
Want to boost your property value? Consider installing solar panels, upgrading to energy-efficient appliances, or integrating a smart home system. Plus, tools like interior design software can help you visualize and plan your dream space before the first brick is even laid.
Find More House Plans
By Bedrooms:
1 Bedroom • 2 Bedrooms • 3 Bedrooms • 4 Bedrooms • 5 Bedrooms • 6 Bedrooms • 7 Bedrooms • 8 Bedrooms • 9 Bedrooms • 10 Bedrooms
By Levels:
By Total Size:
Under 1,000 SF • 1,000 to 1,500 SF • 1,500 to 2,000 SF • 2,000 to 2,500 SF • 2,500 to 3,000 SF • 3,000 to 3,500 SF • 3,500 to 4,000 SF • 4,000 to 5,000 SF • 5,000 to 10,000 SF • 10,000 to 15,000 SF










