3-Bedroom 2-Story Farmhouse with Bonus Room and Outdoor Living (Floor Plan)

- 2,584 sq. ft.
- 3 Beds
- 2.5 Baths
- 2 Stories
- 3 Cars
I’ll be honest—this modern farmhouse has me daydreaming about rocking chairs on wraparound porches, coffee in hand, and maybe a friendly neighbor waving from across the street.
But this isn’t just some Pinterest-perfect fantasy; it’s an actual house plan that delivers on all the most popular features homeowners crave today.
We’re talking an open layout, split bedrooms, outdoor living spaces (hello, barbecue porch!), and a side-load garage that makes it corner-lot friendly.
This isn’t your grandma’s farmhouse—it’s got modern touches like walls of glass, a tray ceiling master suite, and a mudroom with a built-in bench that makes losing keys a thing of the past.
And yes, there’s even a butler’s pantry so you can finally hide the chaos of snack storage from your guests.
So grab a cup of coffee (or maybe start browsing a building cost estimator if you’re feeling serious), because we’re about to dive into everything that makes this plan not just a house, but an investment worth every square foot.


First Impressions: The Exterior with Country Meets Modern Flair
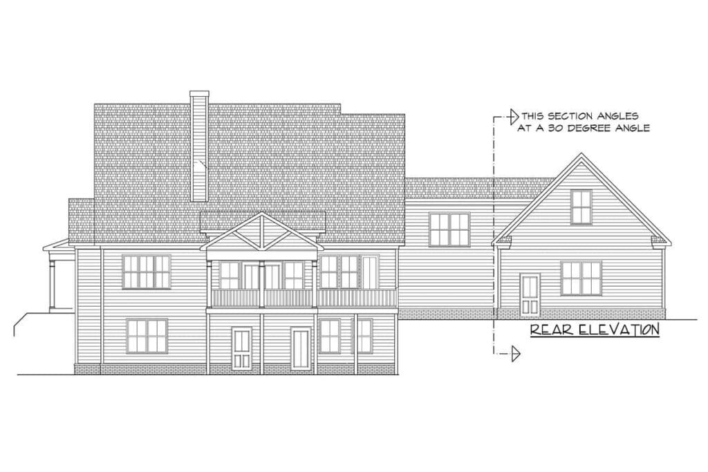
The curb appeal is a showstopper. That wraparound porch, complete with a sleek metal roof, blends rustic charm with contemporary polish.
If you’ve ever worked with a real estate agent, you know the first impression is everything when it comes to property value.
And let me tell you—this exterior has “dream home” written all over it.
The angled, side-load garage is more than just practical; it makes the house stand out as a corner-lot beauty. With space for three cars, you’ll never have to play musical chairs with your vehicles again.
Bonus: the garage connects through the mudroom, which has a built-in bench and drop zone, perfect for backpacks, muddy boots, and the occasional Amazon package you don’t want sitting outside.
For anyone thinking long-term, the porch itself adds living space outdoors. That’s the kind of detail that increases property value, whether you’re planning to stay forever or purchase with resale in mind.
The Heart of the Home: Open Layout Living
Walk through the front door and you’re greeted by high ceilings, walls of glass, and a family room that feels both airy and cozy.
A fireplace anchors the space, while built-ins flank it for both charm and functionality.
Now, here’s where this house shines: the kitchen island. The sink is positioned to face forward, meaning you can chop veggies while chatting with family in the living room or keeping an eye on a game on TV.
If you’ve ever had to cook with your back turned to everyone, you’ll understand why this is a big deal.
The dining room just off the foyer keeps things flexible—host a formal holiday dinner or stick to casual gatherings at the island with counter-height seating. Either way, you’re covered.
If you’re running numbers in your head, don’t worry—open layouts tend to make spaces feel larger without ballooning building costs.
Pair that with today’s mortgage rates, and you’ll see why this plan feels like a smart purchase.
Outdoor Living: Where Farmhouse Dreams Come True
One of the crown jewels of this plan is the outdoor living space. The rear porch and terrace are made for lazy summer evenings, and the barbecue porch is practically begging for a Saturday night cookout.

Add in a deck and you’ve got an entertainer’s paradise—or just your personal retreat when you want a quiet evening under the stars.
With outdoor areas like this, you’re not just buying a home—you’re buying a lifestyle. Whether you’re financing through a refinance mortgage to upgrade or securing a home loan pre-approval to buy, outdoor living always pays off in comfort and property value.
And let’s be real: if you’re going to invest in a space like this, you’ll want the best home security system to keep it safe. After all, that barbecue grill isn’t just for decoration.
The Kitchen: More Than Just a Place to Cook
This isn’t a “throw some cabinets against the wall and call it a day” kind of kitchen. Oh no, this one has thought of everything.
There’s not just a walk-in pantry, but a butler’s pantry too. Translation: you’ll never run out of storage space.
The butler’s pantry is also the perfect staging area when entertaining, letting you prep food without cluttering your main counters.
The kitchen is seamlessly tied to the living room and porch views, thanks to walls of glass. Natural light floods in, making every morning coffee feel a little more luxurious.
And if you’re the type who likes to play around with color schemes or layout ideas, interior design software can help you experiment with finishes and styles before you even commit.
Think of this kitchen as an investment in your happiness. Pair it with smart home technology—like touchless faucets or app-controlled lighting—and suddenly you’re living in a space that’s as efficient as it is beautiful.
Retreating to the Master Suite
The master suite deserves its own spotlight. Tucked away on the right side of the house for maximum privacy, it’s basically your own sanctuary.
The tray ceiling adds elegance without being over the top, and the door to the back porch means you can sneak out for a morning coffee without disturbing the rest of the household.
A sliding barn door opens to the en suite bathroom, where two vanities keep morning routines peaceful.
There’s a private commode room (because nobody wants an audience), and a massive walk-in closet that might just tempt you into a little home improvement loan for a custom shelving system.
This is the kind of space that not only makes living here delightful but also boosts property value.
A well-designed master suite is often a deciding factor for buyers—and if you ever decide to sell, you’ll thank yourself for choosing this plan.

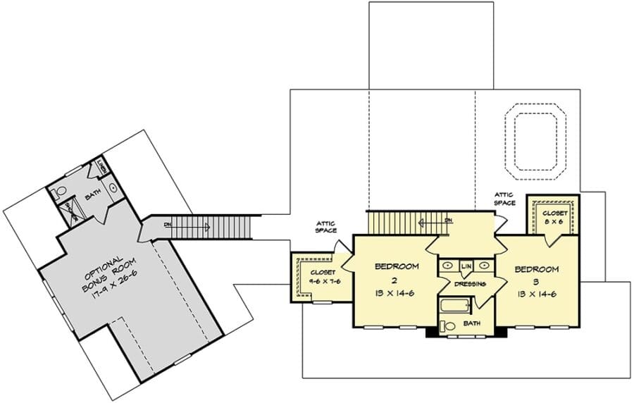
Upstairs Comfort: Bedrooms and Bonus Space
While the master suite reigns downstairs, the upstairs belongs to the kids, guests, or maybe even a home office setup.
Bedrooms 2 and 3 share a Jack-and-Jill bathroom, giving everyone convenience without overcrowding.
And yes, every bedroom has a walk-in closet—no more fighting over storage space.
But let’s talk about that optional bonus room. It adds a whopping 556 sq. ft. of living space above the garage, complete with its own bathroom.
This could be a game room, media center, guest suite, or even the ultimate craft room. A good home remodeling contractor could help you customize it to your needs down the line.
And if you’re considering the financial side, bonus rooms are a clever way to increase usable square footage without drastically inflating the building cost estimator’s bottom line.
Whether you finance it now or later through a home equity loan, it’s flexibility that pays off.
A Home That’s Both Functional and Future-Proof
From mudrooms with drop zones to smart storage solutions, this modern farmhouse isn’t just beautiful—it’s practical.
It was designed with real families in mind, which is why it balances open spaces with private retreats, indoor living with outdoor escapes, and timeless style with modern technology.
For buyers thinking about long-term investment, this house plan hits the sweet spot. Between mortgage rates, refinancing opportunities, and the potential for increased property value, it’s not just a house—it’s a smart move.
Whether you buy now or plan a purchase down the line, this design checks all the right boxes.
A Study That Works as Hard as You Do
This plan includes a dedicated study just off the foyer, and let me tell you—it’s not some forgotten corner with a desk crammed in.
It’s a bright, functional space with enough room to double as a home office, homework hub, or even a cozy library. With today’s reliance on remote work, having this study adds serious value.
Real estate agents love to point out private office space, and it doesn’t hurt that it also boosts property value for future resale.

And if you’re tech-savvy, integrating smart home technology here makes working from home a dream.
The Dining Room That Welcomes Everyone
Tucked just inside the front entry, the dining room is the kind of space that adapts to both formal holidays and casual weeknights.
Its placement is perfect—connected enough to the kitchen for easy serving, but private enough to feel like a special setting.
If you’re the type who likes to visualize, interior design software is a great way to plan out this dining space before move-in.
And if you ever consider refinancing your mortgage to tackle a big interior upgrade, this is one room where a little investment goes a long way.
A Kitchen with Two Pantries (Yes, Two!)
The kitchen is where this farmhouse shines. Along with a spacious island sink that faces the family room, you get both a walk-in pantry and a butler’s pantry.
The walk-in is perfect for everyday groceries, while the butler’s pantry is where you can stash all the extra serving platters, appliances, or even set it up as a mini coffee station.
This kind of setup is gold when entertaining. And the best part? It’s all connected to the family room with walls of glass so you never feel tucked away while cooking.
If you’re tracking building costs, just know—storage space like this adds property value without a huge price tag on a building cost estimator.
Family Room with Natural Light and Warmth
The family room is an absolute showpiece. High ceilings give it an airy feel, while the fireplace and built-ins keep things cozy.
Natural light streams in from the oversized windows and glass walls, making this room glow at all hours of the day.
It’s the kind of space that not only looks great but also feels great, which is a key detail if you ever consider taking out a home equity loan for updates—buyers and appraisers alike value this kind of design.
Outdoor Living at Its Best
Step outside from the family room or master suite, and you’ll find some of the most impressive outdoor living features.
There’s a covered terrace for lounging, a deck for gatherings, and of course, the barbecue porch where the magic happens on summer nights. These spaces aren’t just extras—they’re lifestyle upgrades.

They expand your usable square footage and make entertaining a breeze. Plus, with the best home security system installed, you can enjoy your outdoor spaces with total peace of mind.
The Master Suite: A Private Escape
The master suite is tucked away on the right side of the house, and it’s basically its own retreat. The tray ceiling adds elegance without feeling overdone, and the private door to the back porch is perfect for sneaking out with a morning coffee.
Inside the en suite bathroom, dual vanities keep things peaceful, the private commode room adds privacy, and the roomy walk-in closet is large enough to make any home improvement loan spent on custom shelving worth it. It’s details like these that keep property value high and daily life comfortable.
Upstairs Bedrooms with Jack-and-Jill Charm
The second floor is all about convenience and comfort. Bedrooms 2 and 3 share a Jack-and-Jill bathroom, making mornings easier without sacrificing privacy.
Both bedrooms also feature walk-in closets—no fighting over space here. The design makes this level perfect for kids, guests, or even extended family.
And for anyone thinking about long-term investment, having multiple bedrooms with ample storage always keeps a home’s property value strong.
A Bonus Room Full of Possibilities
Above the garage sits the optional bonus room, which adds 556 square feet of flexible living space.
It comes complete with its own bathroom, making it ideal for a guest suite, media room, or even a private home gym.
If you’re planning for the future, this bonus room is a clever way to increase usable square footage without stretching your building cost estimator too far.
And if you decide to customize it later, a reliable home remodeling contractor can bring your vision to life with ease.
Mudroom Magic
The mudroom might seem like a small detail, but trust me—it’s one of the most practical features of this plan. With a built-in bench and drop zone, it keeps clutter out of sight and helps your home stay organized.
Connecting directly to the garage, it creates a buffer that protects the main living areas from the chaos of daily comings and goings.
A detail like this may not sound flashy, but it’s the kind of feature that adds huge everyday value.
Garage Designed for Function
Finally, let’s talk about the garage. This side-entry, three-car design is perfect for corner lots and adds instant curb appeal.

Inside, the space is generous enough to hold vehicles, tools, and storage. And because it connects neatly to the mudroom, you’ll never be stuck dragging groceries across the house.
For homeowners thinking about future purchase value, a functional and stylish garage is always a selling point. It’s a detail that makes buying this farmhouse plan a smart investment from day one.
From the wraparound porch and angled garage to the soaring family room and barbecue-ready outdoor spaces, this modern farmhouse plan is packed with thoughtful details.
Every corner is designed with both beauty and practicality in mind. You’re not just buying a floor plan—you’re investing in a lifestyle that balances country charm with modern convenience.
Whether it’s the flexible bonus room, the serene master suite, or the hardworking kitchen, this plan adapts to your needs now and grows with you over time.
With its perfect blend of open spaces, private retreats, and timeless curb appeal, it’s the kind of home you’ll be proud to purchase, live in, and even pass down someday.
Building or buying a home isn’t just about picking the perfect house plan—it’s also about making smart long-term choices. From comparing mortgage rates to finding a trustworthy real estate agent, every decision adds value. Don’t forget to explore options like home insurance, home warranties, and potential refinance opportunities to protect your investment.
Want to boost your property value? Consider installing solar panels, upgrading to energy-efficient appliances, or integrating a smart home system. Plus, tools like interior design software can help you visualize and plan your dream space before the first brick is even laid.
Find More House Plans
By Bedrooms:
1 Bedroom • 2 Bedrooms • 3 Bedrooms • 4 Bedrooms • 5 Bedrooms • 6 Bedrooms • 7 Bedrooms • 8 Bedrooms • 9 Bedrooms • 10 Bedrooms
By Levels:
By Total Size:
Under 1,000 SF • 1,000 to 1,500 SF • 1,500 to 2,000 SF • 2,000 to 2,500 SF • 2,500 to 3,000 SF • 3,000 to 3,500 SF • 3,500 to 4,000 SF • 4,000 to 5,000 SF • 5,000 to 10,000 SF • 10,000 to 15,000 SF










