3-Bedroom 2-Story European Farmhouse With 4-Car Garage and Attic Bonus (Floor Plan)

Specifications:
- 5,487 Sq. Ft.
- 3 Beds
- 4 Baths
- 2 Stories
- 4 Cars
Let’s kick things off with that jaw-dropping formal entry. As soon as you step in, you’re welcomed by a foyer that feels anything but formal in the stiff sense.
This space sets the tone with immediate access to the heart of the home—the family room—and a glimpse of that glorious 23-foot barrel-vaulted ceiling.
If I had a dollar for every time someone said “Whoa” walking into that room, I’d probably refinance my mortgage just for fun.
And right there, an oversized opening invites you into the open-concept kitchen and dining area. This is where the magic happens, both culinary and conversational.
The island sink faces the family room so you can chat with guests, keep an eye on your favorite show, or argue over the best home security system while prepping dinner. Practical? Yes. Entertaining? Always.


The Heart of the Home: Kitchen Goals on Steroids
Measuring a generous 16′ by 19′, the kitchen is truly designed for families who like to cook together—or at least pretend to while sneaking bites.
There’s ample space for multiple cooks without stepping on each other’s toes (literally), and that island is big enough to host Thanksgiving dinner and still have room for pie.
Just behind it? A walk-in food pantry and a separate butler’s pantry. It’s like this plan looked at every cooking scenario and said, “Yes, you deserve storage options.”
Whether you’re into weekly meal prep, spontaneous baking marathons, or just hoarding chips from Costco, you’re covered.
And let’s not forget the partially-screened patio right outside. Perfect for grilling, chilling, and pondering whether now’s the time to buy a new smoker.
A Family Room That’s as Functional as It Is Fancy
That family room I mentioned earlier? It’s not just a showpiece—it’s a full-on lifestyle. With walls of glass looking out over the back porch and yard, the entire space feels bright, airy, and just plain happy.
Plus, the fireplace brings all the cozy vibes, making it the perfect spot to curl up with your laptop and search for the best home improvement loans for that new pool you’ve been thinking about.
This space flows effortlessly into the kitchen and dining areas, keeping things feeling connected, not cramped.

It’s also where your guests will gather to compliment your excellent taste in interior design software (thank you, mockups).
Bedrooms That Actually Feel Like Retreats
Now let’s talk bedrooms—because privacy matters, and this home gets it. The split-bedroom layout gives everyone their own corner of peace.
Every single bedroom features a walk-in closet, so your teenager’s shoe collection or your partner’s “I swear I’ll wear it someday” pile has a place to live.
But let’s be honest, the real showstopper is the master suite. With a tray ceiling, backyard access, and a massive wardrobe, it’s a dreamy escape.
You could do yoga in there or build a small home office—or both. And did I mention the en-suite bathroom? Let’s just say it’s the kind of space that makes a home warranty feel like a solid investment.
Space to Work, Play, and Do Whatever Else Life Throws at You
This plan isn’t just about style—it’s got substance too. A dedicated study gives you the perfect remote work setup, complete with a murphy bed for surprise guests or sneaky naps between meetings. I mean, isn’t that the real benefit of working from home?
For those with fitness goals—or just a treadmill you swore you’d use—there’s even a private fitness center. Pair that with a utility/mudroom combo big enough for laundry, backpacks, boots, and random sports gear, and you’ve got a house that actually supports your life instead of getting in the way of it.
Let’s not forget the garage. Or should I say garages. With a 4-car setup split between front and side entries, plus built-in storage in both bays, this home is perfect for car enthusiasts, hobbyists, or someone who just really, really hates parallel parking.

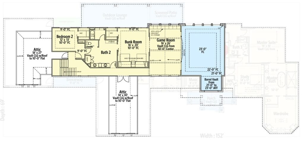
Upstairs: Where the Fun Happens
Head upstairs and things only get better. A second bedroom and a cozy bunk room share a clever Jack-and-Jill bathroom—ideal for kids or guests who want a little space but don’t mind sharing.
It’s efficient, it’s cute, and it saves morning chaos from spilling into the rest of the house.
Then there’s the game room, perched just above the family room with a view that makes every game night feel like a high-stakes event.
Whether you’re playing air hockey, video games, or arguing over Monopoly rules (again), it’s a space built for fun.
And with an attic offering 968 square feet of bonus potential, there’s room to grow—maybe a home theater, craft room, or secret book nook? You dream it, you build it.
Outdoor Living Spaces You’ll Never Want to Leave
Let’s talk patios. Because this modern farmhouse doesn’t just pay lip service to “outdoor living”—it goes all in.
The partially-screened patio is a built-in retreat, whether you’re sipping coffee in your robe or firing up the grill on the barbecue porch.
There’s something magical about enjoying a breezy evening with family or friends, twinkly lights overhead, while burgers sizzle nearby.

And with a layout that flows seamlessly from indoors to out, entertaining becomes effortless.
Picture this: the kids are playing cornhole in the yard, your guests are sipping cocktails on the porch, and you’re standing in the kitchen still part of the fun. That, my friends, is what great interior design software could never quite capture—but this house does.
Now’s also a good time to remind you how outdoor spaces can boost property value. Add a fire pit, maybe some built-in seating, and you’ve just given your future self a serious high five.
Let’s Get Smart: Technology That Works With You
It wouldn’t be a modern farmhouse without some smart touches. And while rustic charm is a big part of the aesthetic, this house is ready to handle your techy side, too.
Whether you’re installing the best home security system on the market or going full smart home technology mode with voice-controlled lighting, smart locks, and climate control—you’ll find the infrastructure here plays nice with all of it. That’s not just convenience. It’s peace of mind.
Plus, smart tech is one of those sneaky upgrades that increases home value and appeals to future buyers who want modern convenience without sacrificing charm. So yes, go ahead and install that motion-activated espresso machine.

Bonus Room? More Like Bonus Life
Let’s not skip over one of the most flexible features of this house: the optional bonus room. Tucked into the attic space, this 968-square-foot area is a blank canvas.
You could finish it now or later—either way, it’s ready when you are.
Need a media room? Home office? Teen lounge? Crafting cave? Done, done, done, and done. This space isn’t just extra—it’s freedom in square-foot form.
If you ever decide to sell, having a versatile finished attic gives you a leg up in the real estate agent’s pitch and adds another checkmark to your future buyer’s dream list.
The Study: Work-from-Home Nirvana
Now back downstairs—because we can’t forget the study. With a murphy bed cleverly integrated, this space is dual-purpose perfection. It’s your Zoom call headquarters by day and guest bedroom by night. Or nap room. Let’s be real.
As work-from-home life continues to grow, dedicated office space is more than a perk—it’s a property value booster. Pair it with built-in bookshelves and maybe a cozy armchair in the corner, and you’ve got yourself the productivity palace of dreams.

This modern farmhouse isn’t just where you’ll hang your hat. It’s where you’ll host family holidays, late-night movies, rainy day baking marathons, and quiet mornings on the porch.
It’s built for the messy, magical, sometimes chaotic moments of real life—and that’s what makes it such a smart investment.
From the soaring ceilings and gourmet kitchen to the bonus room, tech-ready layout, and multi-garage flexibility, this house plan doesn’t just meet expectations. It raises the bar.
And whether you’re browsing building cost estimators, calling your real estate agent, or just daydreaming about where the Christmas tree will go—this plan is a keeper.
So go ahead. Imagine yourself living here. Because the best part of this house?
Building or buying a home isn’t just about picking the perfect house plan—it’s also about making smart long-term choices. From comparing mortgage rates to finding a trustworthy real estate agent, every decision adds value. Don’t forget to explore options like home insurance, home warranties, and potential refinance opportunities to protect your investment.
Want to boost your property value? Consider installing solar panels, upgrading to energy-efficient appliances, or integrating a smart home system. Plus, tools like interior design software can help you visualize and plan your dream space before the first brick is even laid.
Find More House Plans
By Bedrooms:
1 Bedroom • 2 Bedrooms • 3 Bedrooms • 4 Bedrooms • 5 Bedrooms • 6 Bedrooms • 7 Bedrooms • 8 Bedrooms • 9 Bedrooms • 10 Bedrooms
By Levels:
By Total Size:
Under 1,000 SF • 1,000 to 1,500 SF • 1,500 to 2,000 SF • 2,000 to 2,500 SF • 2,500 to 3,000 SF • 3,000 to 3,500 SF • 3,500 to 4,000 SF • 4,000 to 5,000 SF • 5,000 to 10,000 SF • 10,000 to 15,000 SF










