3-Bedroom 2-Story Craftsman House with Flex Room (Floor Plan)

Specifications:
- 3,935 Sq Ft
- 3 Beds
- 3.5 Baths
- 2 Stories
- 3 Cars
When you hear the term “Craftsman home,” what comes to mind?
If you’re picturing a cozy space that exudes warmth and charm but also offers all the modern amenities you could dream of, then you’re in the right ballpark.
But let me tell you about a Craftsman home plan that not only meets those expectations but throws a fantastic outdoor living room into the mix, just for the fun of it!
Covering a grand total of 3,935 square feet, this isn’t just any Craftsman—it’s a veritable castle in the genre, but with none of the drafty corridors!


With 3 bedrooms, 3.5 baths, and enough garage space to host a trio of chariots (or, you know, cars), this house is more than just a shelter—it’s a statement.

Stepping through the front door, the vaulted foyer welcomes you with open arms, flanked by a central gallery adorned with two diamond-shaped arched hubs.

These architectural gems do more than just dazzle; they direct the flow of traffic through the home, guiding you towards the pièce de résistance—the vaulted great room.

Imagine a room so inviting, with its angled fireplace begging for a chilly evening to prove its worth, that you can’t help but want to kick off your shoes and relax.

But wait, there’s more!

This great room spills out into an outdoor living area that will have you making excuses to entertain, no matter the season.

Whether it’s hosting summer barbecues, autumn fire pit chats, or simply enjoying a quiet morning with nature, this space blurs the lines between indoors and out, making every day feel like a vacation.

Now, let’s talk kitchen.

If the heart of the home is the kitchen, then this heart is built for a chef.

Centered around a large island, where snacks, meals, and memories can be made, the kitchen also connects to an octagonal, sun-drenched breakfast nook.

It’s the perfect spot for your morning coffee, catching those first rays of sunlight as you plan your day.

Not to be overlooked, the main floor also features flex space that can morph into whatever your life requires.

Need a family room?

Done.

A media room for movie nights?

You’ve got it.

This space adapts to your needs, making it feel like the home was built just for you.

And for those who believe a master suite should be exactly that—a suite—this plan delivers.

Including a walk-in closet that could double as a small boutique, and a layout that ensures privacy and comfort, it’s a retreat within a retreat.

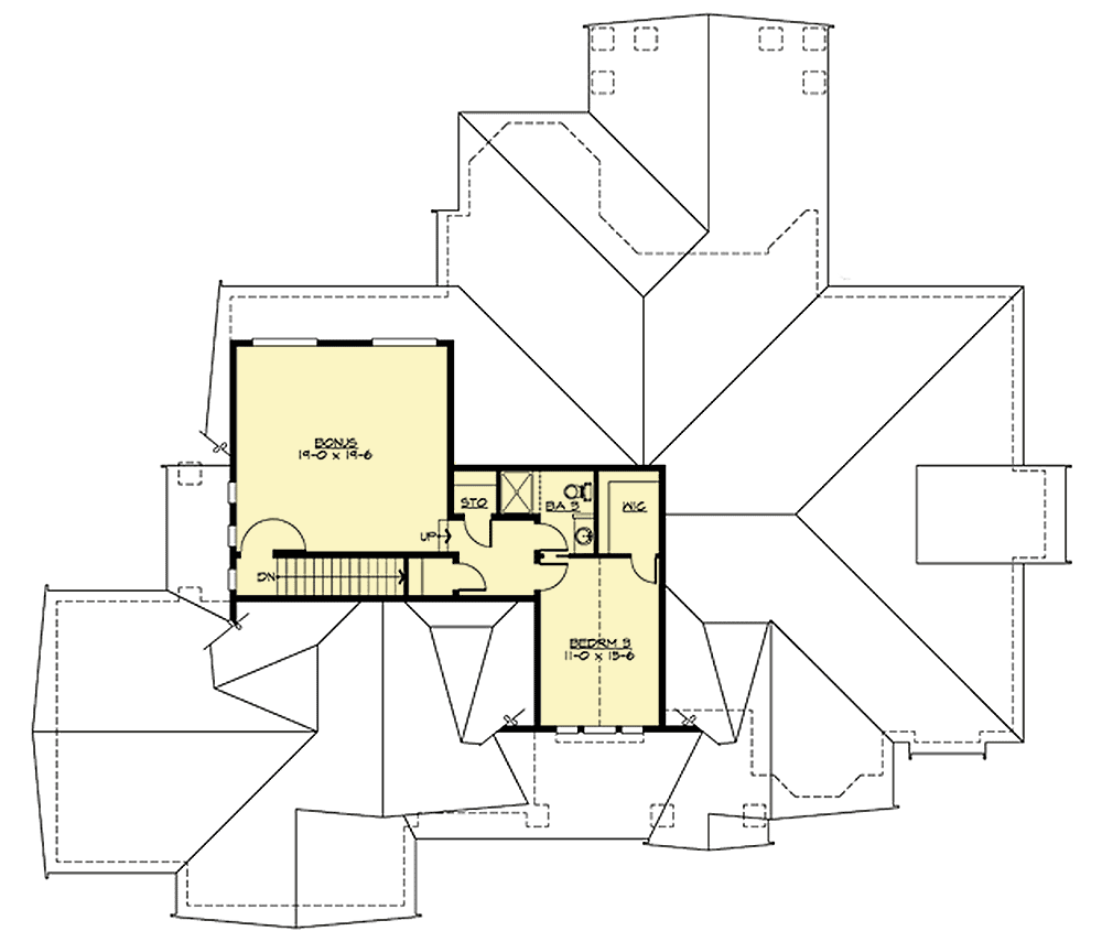
Ascending the staircase in this Craftsman home feels like stepping into another realm—a space dedicated solely to relaxation and personal pursuits.

The upper story of our Craftsman castle isn’t just an afterthought; it’s a well-planned sanctuary that caters to both the need for private spaces and the joy of casual entertainment.

At the top of the stairs, you’re greeted by a large bonus room.

It’s counted in the home’s generous square footage, and for good reason.

Whether you’re envisioning a game room with a pool table and dart board, a cozy home theater with plush seating, or a sprawling play area for the kids, this room offers the flexibility to bring your most indulgent ideas to life.

The sloped ceilings add character and architectural interest, making the room feel both spacious and inviting.

Adjacent to this recreational haven is an additional bedroom complete with its own bath.

It’s perfect for guests or as a teenager’s suite, offering comfort and privacy tucked away from the home’s main living areas.

The thoughtful placement of this bedroom means visitors can feel at home, without stepping on any toes—literally!

One of the underrated highlights of this second story is the ample storage space.

As any home enthusiast knows, you can never have enough storage.

This plan cleverly integrates storage solutions without sacrificing aesthetics or living space.

Additionally, the area over the garage presents an opportunity for future expansion.

Whether you need an at-home office, a craft room, or even an extra guest room, the possibilities are ready to align with your vision.

It’s not just the rooms and the layout that make this house special—it’s the Craftsman details.

Woodwork with intricate designs, built-in cabinets, and custom shelving are just a few of the features that keep true to the Craftsman style, merging functionality with artistry.

These details are not merely decorative; they’re crafted to enhance daily living by combining the charm of the old with the convenience of the new.

As we conclude our tour of this Craftsman home, it’s clear that this isn’t just a place to live—it’s a place to thrive.

It respects the fine balance between open, communal areas and private, quiet zones.

Each nook and cranny is designed with purpose, ensuring that whether you’re hosting a grand party or enjoying a peaceful evening by the fire, this house responds to your needs.

If walls could talk, these would tell stories of laughter-filled evenings, quiet mornings in sunlit nooks, and serene nights by the fire.
They’d recount tales of backyard adventures and intimate gatherings under the stars.
This house isn’t just built with beams and bricks—it’s woven with the promise of life’s precious moments.
And in this Craftsman home, every square foot is part of your story.
Building or buying a home isn’t just about picking the perfect house plan—it’s also about making smart long-term choices. From comparing mortgage rates to finding a trustworthy real estate agent, every decision adds value. Don’t forget to explore options like home insurance, home warranties, and potential refinance opportunities to protect your investment.
Want to boost your property value? Consider installing solar panels, upgrading to energy-efficient appliances, or integrating a smart home system. Plus, tools like interior design software can help you visualize and plan your dream space before the first brick is even laid.
Find More House Plans
By Bedrooms:
1 Bedroom • 2 Bedrooms • 3 Bedrooms • 4 Bedrooms • 5 Bedrooms • 6 Bedrooms • 7 Bedrooms • 8 Bedrooms • 9 Bedrooms • 10 Bedrooms
By Levels:
By Total Size:
Under 1,000 SF • 1,000 to 1,500 SF • 1,500 to 2,000 SF • 2,000 to 2,500 SF • 2,500 to 3,000 SF • 3,000 to 3,500 SF • 3,500 to 4,000 SF • 4,000 to 5,000 SF • 5,000 to 10,000 SF • 10,000 to 15,000 SF










