3-Bedroom 1-Story Modern Farmhouse with Expansive Rear Porch and Side-Entry Garage (Floor Plan)

Specifications:
- 2,379 sq. ft.
- 3 beds
- 3.5 Baths
- 1 Stories
- 3 Cars
I’ll be honest—this is the kind of modern farmhouse plan that makes me want to cancel my plans for the day and just mentally move in.
From the moment I walked through the layout, it felt like someone took a wish list, highlighted all the best parts, and actually made them work together.
It’s warm, open, practical, and just fancy enough to feel special without being intimidating.
At 2,379 square feet of heated living space, this home hits a sweet spot.
It’s spacious without feeling oversized, elegant without being over-the-top, and designed for how people actually live.


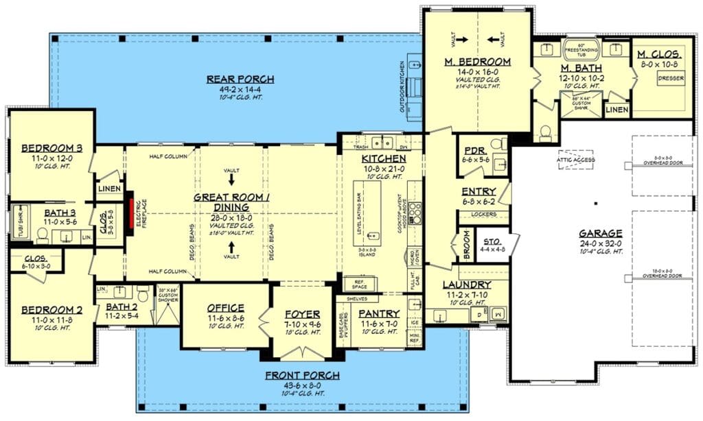
A Modern Farmhouse That Gets Everyday Living Right
Whether you’re looking to buy your forever home or make a smart investment with strong long-term property value, this plan checks a lot of boxes right out of the gate.
The modern farmhouse aesthetic gives you that timeless curb appeal—clean lines, welcoming porches, and a layout that feels familiar in the best way.
It’s the kind of house a real estate agent loves to show because it appeals to a wide range of buyers, from growing families to empty nesters planning their next chapter.
Open-Concept Living That Feels Warm, Not Wide-Open Chaos
Let’s talk about the heart of the home, because this one really delivers.
The open-concept layout connects the great room, kitchen, and dining space in a way that feels seamless but still intentional.
You can be cooking dinner, chatting with family, and keeping an eye on the fireplace all at once—which, frankly, is the multitasking dream.
The family room fireplace anchors the space beautifully, adding warmth and a cozy focal point without stealing attention from the rest of the room.
And yes, the kitchen island sink faces forward. That small detail makes a big difference.

I love being able to prep food while still feeling connected to everyone else instead of staring at a backsplash like I’m in timeout.
If you’re running numbers through a building cost estimator or thinking ahead to resale, this open layout is gold.
It’s what buyers want now, and it’s what they’ll still want years from now.
A Kitchen Designed for Real Life (and Real Entertaining)
This kitchen doesn’t just look good—it works hard. The large island gives you plenty of prep space, casual seating, and room for everyone to gather.
Whether you’re hosting friends or just grabbing breakfast before work, it adapts easily.
Then there’s the pantry situation, which is honestly a dream. A walk-in food pantry handles everyday storage, while the butler’s pantry adds that extra layer of organization and elegance.
It’s perfect for appliances, serving pieces, or staging food when you’re entertaining. If you’ve ever thought about upgrading with home improvement loans or working with a home remodeling contractor down the road, this kitchen already saves you from needing major changes.
With smart home technology easily integrated, this space can grow with you—lighting, appliances, and even security systems can be customized without disrupting the design. Pair it with the best home security system, and you’ve got peace of mind baked right in.

Walls of Glass and a Seamless Indoor-Outdoor Connection
One of my favorite features is the way walls of glass bring the outdoors in. Natural light pours into the main living areas, and the views of the backyard and rear porch make everything feel bigger, brighter, and calmer.
It’s the kind of atmosphere that instantly lowers your stress level.
From a practical standpoint, this connection to outdoor living adds real value. It’s not just pretty—it enhances how you use the home. When thinking about purchase decisions, things like this matter.
They influence everything from daily enjoyment to long-term appraisal numbers and even your home insurance considerations.
Outdoor Living That Feels Like an Extension of the Home
If you enjoy spending time outside, this plan is going to win you over fast. The front porch offers 364 square feet of classic farmhouse charm—a welcoming spot for morning coffee or evening conversations. Out back, though, is where the magic really happens.
The 661-square-foot rear porch is generous, comfortable, and set up for serious enjoyment. With a built-in outdoor kitchen and barbecue porch, this space is made for gatherings.
Weekend cookouts, family celebrations, or quiet dinners under the stars all feel right at home here.Outdoor living like this isn’t just a lifestyle upgrade; it’s a smart move financially.
Features that expand usable living space without increasing heated square footage can positively impact property value and buyer interest if you ever decide to refinance mortgage terms or tap into a home equity loan.

A Dedicated Home Office Right Where You Need It
Just off the entry, the study is perfectly placed for focus and productivity. It’s close enough to the front door to feel professional, yet separate enough to stay quiet.
Whether you work remotely, manage household logistics, or just need a spot to concentrate, this home office delivers.
With the rise of remote work, spaces like this are no longer optional—they’re essential. Having a dedicated office can influence home loan pre-approval decisions and make this plan especially appealing in today’s market.
Add in a solid credit score and the right mortgage rates, and suddenly this home feels even more within reach.
A Smart Transition from Garage to Home
The side-entry, three-car garage offers 795 square feet of functional space, making it ideal for a corner lot while keeping the front elevation clean and attractive.
Inside, a well-designed mudroom creates a practical buffer between the garage and the main living areas.
This is where shoes get kicked off, bags get dropped, and life gets organized. It’s a simple feature that makes a big difference—especially if you’re balancing busy schedules or planning ahead for future resale appeal.
Between thoughtful layout choices, flexibility for future upgrades, and everyday comfort, this modern farmhouse feels like a home designed by someone who truly understands how people live.

A Private Master Suite That Feels Like a Daily Retreat
If the rest of the home is impressive, the master suite is where this modern farmhouse really shows off. Tucked away thanks to the split-bedroom layout, the primary bedroom feels quiet, private, and wonderfully removed from the day’s noise.
I love how the tray ceiling adds dimension and subtle elegance without trying too hard—it’s refined, not flashy.
The direct access to the rear porch might be my favorite detail. Stepping outside in the morning with coffee or winding down in the evening without walking through the whole house feels like a luxury you’ll appreciate every single day.
From a long-term perspective, features like this boost comfort and strengthen property value, which matters whether you plan to stay forever or treat this home as a strategic investment.
Walk-In Closets for Everyone (Yes, Everyone)
One detail that deserves applause: every bedroom gets a walk-in closet. No negotiating storage, no awkward furniture placement, and no one feeling shortchanged.
It’s a practical feature that improves daily living and also makes this plan easier to buy and easier to sell down the line.
The master closet, of course, is generous and thoughtfully placed near the bath for convenience. It’s exactly the kind of detail people appreciate when reviewing floor plans with interior design software or imagining future upgrades.
And if life changes call for adjustments, this layout adapts beautifully without needing a major overhaul or a costly home remodeling contractor.

Well-Placed Secondary Bedrooms for Family and Guests
The two additional bedrooms are thoughtfully positioned opposite the master suite, reinforcing that split-bedroom design everyone loves.
Each bedroom has easy access to a full bath, making them ideal for kids, guests, or even a multigenerational setup.
From a financial perspective, having three bedrooms and 3.5 bathrooms in a single-story layout adds flexibility.
It’s appealing to a broad range of buyers, which is exactly what you want if you ever work with a real estate agent to list the home or explore options like a refinance mortgage later on.
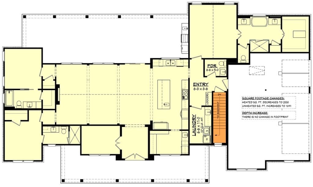
Optional Bonus Space That Grows With You
One of the smartest features of this plan is the optional bonus space. You don’t have to finish it right away, which keeps your initial building budget manageable.
Later on—when life demands more room or finances allow—it’s ready and waiting.
Whether it becomes a media room, hobby space, guest suite, or storage upgrade, this flexibility is priceless. It also pairs well with options like home improvement loans, letting you spread costs over time while still enhancing the home’s functionality and value.
A Single-Story Layout That Makes Life Easier
There’s something incredibly appealing about having everything on one level. No stairs to climb with groceries, no worrying about future mobility, and no wasted square footage.

This one-story design flows effortlessly from space to space, making daily routines smoother and more enjoyable.
Single-story homes also tend to perform well in the market. Buyers often favor them, which can positively influence resale discussions, appraisal outcomes, and even conversations around home insurance and home warranty coverage.
A Side-Entry Garage That Elevates the Exterior
The three-car, side-entry garage is both practical and visually smart. With 795 square feet of space, it easily handles vehicles, tools, and storage while keeping the front elevation clean and welcoming.
This design works especially well on corner lots, where orientation matters just as much as aesthetics.
Having ample garage space also supports future upgrades—whether that’s workshop space, organized storage, or even tech enhancements.
Pairing the garage with smart home technology can streamline everything from lighting to security, especially when integrated with the best home security system for added peace of mind.
Mudroom Organization That Actually Works
Right off the garage, the mudroom acts like a quiet hero of the home. It keeps clutter contained, helps maintain cleanliness, and creates a smooth transition from outside to inside. It’s the kind of feature you don’t fully appreciate until you’ve lived without one.

Small, thoughtful spaces like this contribute to overall livability and help preserve the home’s condition—something that matters when calculating long-term costs, maintenance, and even future equity options like a home equity loan.
Outdoor Living That Enhances Everyday Moments
Between the welcoming front porch and the expansive rear porch with outdoor kitchen, this home celebrates outdoor living in a big way.
These spaces aren’t decorative—they’re functional extensions of the interior.
Hosting gatherings, enjoying quiet evenings, or simply opening the doors to let fresh air flow through becomes part of everyday life here.
Outdoor living areas like these can influence buyer perception and play a role in overall valuation, especially when reviewing market trends tied to mortgage rates and demand.
A Home That Makes Financial Sense, Too
Beyond the design and comfort, this modern farmhouse is simply a smart financial choice. With its efficient footprint, flexible spaces, and high-demand features, it positions itself well whether you’re looking to purchase your first home or make a long-term investment.
Strong layouts like this can support smoother home loan pre-approval processes, especially when paired with a solid credit score.

And should circumstances change, the home’s design lends itself well to refinancing discussions or future upgrades that maintain market appeal.
At the end of the day, what makes this 2,379 sq. ft. modern farmhouse stand out is how intentional every square foot feels. Nothing is wasted. Nothing feels forced.
From the open living areas and gourmet kitchen to the private bedrooms, flexible bonus space, and exceptional outdoor living, this plan balances beauty with practicality.
It’s the kind of home that works for today while staying ready for tomorrow.
Whether you’re planning to buy, thinking ahead to long-term value, or simply dreaming about a space that feels right, this house plan delivers comfort, flexibility, and confidence—all wrapped in a timeless modern farmhouse design.
Building or buying a home isn’t just about picking the perfect house plan—it’s also about making smart long-term choices. From comparing mortgage rates to finding a trustworthy real estate agent, every decision adds value. Don’t forget to explore options like home insurance, home warranties, and potential refinance opportunities to protect your investment.
Want to boost your property value? Consider installing solar panels, upgrading to energy-efficient appliances, or integrating a smart home system. Plus, tools like interior design software can help you visualize and plan your dream space before the first brick is even laid.
Find More House Plans
By Bedrooms:
1 Bedroom • 2 Bedrooms • 3 Bedrooms • 4 Bedrooms • 5 Bedrooms • 6 Bedrooms • 7 Bedrooms • 8 Bedrooms • 9 Bedrooms • 10 Bedrooms
By Levels:
By Total Size:
Under 1,000 SF • 1,000 to 1,500 SF • 1,500 to 2,000 SF • 2,000 to 2,500 SF • 2,500 to 3,000 SF • 3,000 to 3,500 SF • 3,500 to 4,000 SF • 4,000 to 5,000 SF • 5,000 to 10,000 SF • 10,000 to 15,000 SF










