3-Bedroom 1-Story Modern Farmhouse With Bonus Room and Courtyard Garage (Floor Plan)

Specifications:
- 3,285 Sq. Ft.
- 3 Beds
- 2.5 Baths
- 1-2 stories
- 3 Cars
If I could build my dream house tomorrow, this 3-bedroom, 1-story modern farmhouse would be it. No exaggeration.
Between the wide porches, walk-in closets for every bedroom, and a kitchen you could live in, it checks all the boxes.
Whether you’re buying your first home or looking to refinance your mortgage and upgrade, this one’s a showstopper.
Let me walk you through it, and don’t be surprised if you find yourself checking your credit score halfway through.


Welcome Home—Where Every Inch Works for You
This modern farmhouse isn’t trying to be flashy—it’s sophisticated, smart, and just a little bit charmingly rebellious.
From the moment you pull into the courtyard-entry 3-car garage (yes, three!), you’ll notice how the home plays with classic and modern cues.
Timber-frame accents under gable roofs give it that timeless Craftsman edge, while neutral exterior tones help the house melt into its natural surroundings. It’s kind of like that friend who always looks effortlessly good in every photo.
And while some house plans scream, “I’m too much work,” this one whispers, “I’ve got your back.” Need a home loan pre-approval to make the jump? Totally worth it. It’s not just a house—it’s an investment in your peace of mind.
Let There Be Light—and Open Space
Step through the front door and you’re greeted by sunlight pouring in through walls of glass. I’m talking about that magical natural lighting that makes your furniture look more expensive and your houseplants think they’re in a greenhouse.
The main living area is anchored by a cozy fireplace, so you can cook dinner while enjoying that flickering warmth in the background. Who needs a fireplace channel on TV when you’ve got the real thing?

The open layout in the heart of the home flows seamlessly between the kitchen, dining, great room, and hearth room.
It’s perfect for everything from casual Sunday mornings with pancakes and coffee to full-blown holiday chaos when the whole family’s in town. Whether you’re hosting a game night or a Friendsgiving, the layout’s got you covered.
Kitchen Goals? Achieved.
If the kitchen is the soul of the home, then this one’s practically singing.
The centerpiece is a large island, complete with a sink that faces the family room fireplace—so you can wash dishes and still be part of the conversation.
No more staring at a wall wondering what everyone’s laughing about.
The real kicker? There’s not just one pantry. There are two. A walk-in food pantry for your everyday essentials and a butler’s pantry with its own sink and dishwasher for when you’re doing the kind of hosting that gets you mistaken for a home remodeling contractor.

And right beside it? A built-in breakfast nook that makes mornings feel like a cozy café.
If you’re into smart home technology, this kitchen layout makes integrating appliances a breeze.
Think smart fridges, touchscreen ovens, voice-controlled lighting—your inner techie will be thrilled.
The Master Suite: A Personal Oasis
Wander over to the left wing of the home, and you’ll discover a master suite that makes you want to take a nap just looking at it.
The tray ceiling adds depth and elegance, and French doors open straight to the back patio. Imagine waking up, stepping outside with your coffee, and hearing nothing but birds and the soft breeze. Total bliss.

Inside the ensuite bathroom, you’ll find dual sinks (because sharing is overrated), a luxurious shower setup, and—yes—a generously sized walk-in closet.
If you’ve ever had to fight for closet space, you’ll understand why this feature alone can boost your property value.
This is the kind of room that sells houses. If you’re working with a real estate agent, they’ll tell you that a suite like this can make or break a purchase decision. It’s not just a bedroom—it’s a sanctuary.
Bedrooms Two and Three: Not Just Afterthoughts
On the opposite side of the house sit two more bedrooms that also get walk-in closets. Yep, no one’s stuck with a tiny wire-shelved cubby here.
These bedrooms share a full bath, thoughtfully positioned for convenience without sacrificing privacy.
Whether you need space for kids, guests, or a dedicated office, this side of the house flexes with your needs.

In today’s work-from-home world, one of these rooms could easily double as a study or even a client-ready Zoom room with a bit of interior design software magic.
If you’re thinking long-term, this layout is incredibly adaptable. You can raise a family here, host out-of-town visitors, or just enjoy the quiet if you’re an empty nester finally looking to buy your forever home.
Outdoor Living That’s Truly Livable
Now, let’s talk porches. Not just any porches—expansive covered outdoor areas that beg for string lights, good wine, and even better company.
The back patio connects seamlessly with the house, creating an ideal space for dining al fresco or firing up the barbecue grill for the big game.
A dedicated barbecue porch makes you feel like you’ve got your own backyard sports bar, minus the overpriced nachos.
This is the kind of setup that makes you start Googling the best home security system—not because you’re worried, but because it’s all so perfect you want to protect it with your life.

If you’re the type who likes to imagine a hot tub under the stars or a pergola wrapped in vines, this backyard is a blank canvas for all your HGTV-inspired dreams.
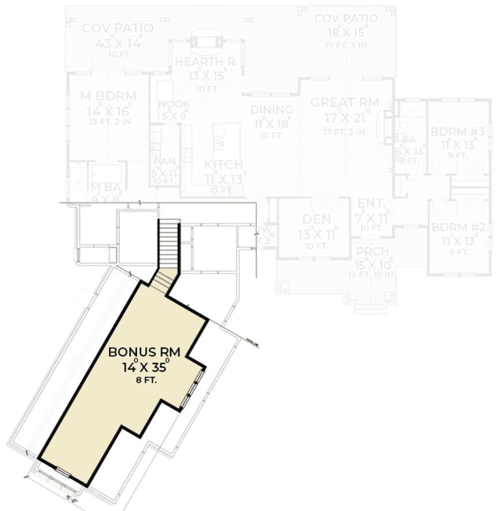
Bonus Room = Bonus Life
Above the garage, there’s a bonus space just waiting to become whatever you need. Home gym? Game room? In-law suite? Hobby heaven? The possibilities are as endless as your Pinterest boards.
And the beauty of it being optional means you can finish it when the timing—and your budget—are right.
If you’re using a building cost estimator or looking into home improvement loans, it’s helpful to have this flexibility baked right into the plan.
The Corner-Lot Advantage
One feature that often gets overlooked—but shouldn’t—is the side-load garage. This layout is perfect for corner lots, giving your home extra curb appeal while keeping the garage discreetly to the side.
It’s like putting your laundry room behind a sliding barn door—tidy and clever.

Plus, the side-load setup makes room for that bonus room over the garage without compromising the home’s overall footprint. Talk about smart planning.
With the right home remodeling contractor, you could even turn that space into a full-blown guest suite or rental unit—hello, passive income.
Outdoor Spaces That Invite You to Stay Awhile
The covered porch, the back patio, the barbecue area—these aren’t afterthoughts. They’re essential living spaces, designed to extend your lifestyle outdoors.
Hosting a dinner party under string lights, enjoying quiet evenings with a book, or even installing the best home security system to keep everything safe—this home makes it easy to live well and feel secure.
And thanks to the large windows and walls of glass, these outdoor spaces aren’t separate from the indoors.
They connect, visually and physically, to the heart of the home. That means even on rainy days, you’re still soaking in that view of your backyard oasis.

Listen, I’ve seen a lot of house plans, and I don’t say this lightly—this one nails it. From the split-bedroom layout to the cozy-yet-open heart of the home, it’s functional, flexible, and fabulously livable.
Whether you’re stepping into the market for the first time or looking to upgrade your current digs, this modern farmhouse hits all the right notes.
It’s a space that lets you live big without sacrificing warmth or comfort. You’re not just buying a house here—you’re securing a future filled with moments, memories, and maybe a few epic barbecues on that porch.
So whether you’re browsing listings with your real estate agent, calculating your building cost estimator numbers, or checking off your home loan pre-approval checklist, this house is a reminder of what’s possible when great design meets real-life living
Building or buying a home isn’t just about picking the perfect house plan—it’s also about making smart long-term choices. From comparing mortgage rates to finding a trustworthy real estate agent, every decision adds value. Don’t forget to explore options like home insurance, home warranties, and potential refinance opportunities to protect your investment.
Want to boost your property value? Consider installing solar panels, upgrading to energy-efficient appliances, or integrating a smart home system. Plus, tools like interior design software can help you visualize and plan your dream space before the first brick is even laid.
Find More House Plans
By Bedrooms:
1 Bedroom • 2 Bedrooms • 3 Bedrooms • 4 Bedrooms • 5 Bedrooms • 6 Bedrooms • 7 Bedrooms • 8 Bedrooms • 9 Bedrooms • 10 Bedrooms
By Levels:
By Total Size:
Under 1,000 SF • 1,000 to 1,500 SF • 1,500 to 2,000 SF • 2,000 to 2,500 SF • 2,500 to 3,000 SF • 3,000 to 3,500 SF • 3,500 to 4,000 SF • 4,000 to 5,000 SF • 5,000 to 10,000 SF • 10,000 to 15,000 SF










