3-Bedroom 1-Story Luxury Farmhouse With 4-Car Garage and Covered Patio (Floor Plan)

- 3,087 sq. ft.
- 3 Beds
- 3.5 Baths
- 2 Stories
- 4 Cars
Every once in a while, you stumble upon a house plan that checks every box on your list—plus a few you didn’t even know you had.
That’s exactly what happened when I laid eyes on this 3-bedroom, 1-story modern farmhouse.
I thought I was just browsing. Next thing you know, I’m calculating mortgage rates and daydreaming about where to put the barbecue grill.
With its open layout, bonus space, and a 4-car garage (yes, four), this house is more than just a home—it’s a lifestyle upgrade waiting to happen.


Open Concept Living That’s Actually Open
Let’s be honest—open layouts have become the peanut butter to our design jelly. But not all open floor plans are created equal. This one? It flows like a well-written novel.
From the foyer (with its lofty ceilings that practically shout “Welcome!”) to the heart of the home—aka the kitchen-living-breakfast nook trio—it’s all about space, connection, and natural light.
The kitchen is the kind of space that makes you want to buy fancy cookbooks and actually use them.
The island not only boasts a front-facing sink (hello, view!) but also makes it easy to stay part of the conversation while you stir, sauté, or sneak bites of cheese.
Behind you, there’s a walk-in food pantry big enough to stockpile snacks for a small army.

And if you’re the type to host holiday feasts or Super Bowl Sundays, the butler’s pantry is your secret weapon.
It’s like having a backstage for your kitchen—everything’s prepped, everything’s tidy, and your guests think you’re a magician.
Porches, Patios, and Barbecue Dreams
Now let’s talk about the outdoor living. Because let’s face it: we all want a place to sip coffee in the morning and unwind with a glass of something in the evening.
This house delivers with not one, but multiple outdoor spaces—including a barbecue porch that practically begs for weekend cookouts.
The covered patio is a natural extension of the main living area, and those walls of glass? They’re like open invitations to enjoy the outdoors from the comfort of your sofa.

Whether you’re watching the rain fall with a book in hand or letting the kids (or pets) run wild in the backyard, this design makes the most of every inch.
And for those who treat their backyard like a sanctuary, there’s a dedicated hot tub patio accessible directly from the master suite. Yes, really.
Try not to smile thinking about that soak after a long day of work—or after dealing with your latest home improvement project.
A Master Suite Worthy of a Spa Day
Speaking of the master suite, this one is a retreat in every sense of the word. It’s tucked away from the other bedrooms (privacy, check) and has its own private door to the back porch.
Tray ceiling? Absolutely. Walk-in closet? Massive. Luxurious bath? You bet.

In fact, that closet actually connects to the laundry room for the kind of everyday convenience that makes your credit score feel proud.
The suite feels like the kind of space you’d find in a high-end hotel, but without the checkout time.
It’s also where the concept of investment really comes into play—because comfort like this doesn’t just feel good, it adds serious value to your lifestyle and your property value.
Work From Home, But Make It Chic
One of the most underrated heroes of this plan is the home office. It’s not a corner of the dining table or a desk shoved into the guest room. It’s a proper office—quiet, roomy, and stylish.
Whether you’re grinding away at that refinance mortgage paperwork or hopping on Zoom calls with clients (with your camera strategically angled to show off your shiplap wall), this space means business.

And if you’re a creative soul—or just someone who adores their gadgets—you’ll appreciate how seamlessly smart home technology can be incorporated.
The layout is ideal for everything from the best home security system to built-in speakers that let you blast your motivational playlist while answering emails.
Secondary Bedrooms With First-Class Features
On the opposite side of the home, bedrooms 2 and 3 each have their own full bathrooms and walk-in closets. That’s right—every bedroom has its own bathroom. No more awkward hallway waiting lines.
Whether these rooms are for kids, guests, or that cousin who always “just happens to be in town,” they’re built with comfort and privacy in mind.

As a bonus, this layout sets the stage perfectly for multi-generational living or long-term visitors—something that can be a real purchase incentive for families looking for flexibility.
A good real estate agent will tell you: homes with split bedroom layouts like this are high on the desirability list, and that shows up in both resale appeal and overall property value.
A Garage With Room for Everything (Even the Car)
Let’s not skip over one of the most swoon-worthy parts of this plan—the garage. With four bays and a front-facing entry, this attached garage is both practical and beautiful.
Whether you’ve got a fleet of vehicles, a hobby that requires space (hello woodworking), or just an impressive collection of holiday decorations, this garage delivers.

It connects directly into a mudroom with cubbies and a drop zone—a dream setup for anyone who’s ever tripped over a pile of shoes by the front door.
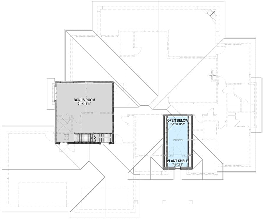
It’s also where a staircase leads you up to the bonus room, and if you’ve ever used a building cost estimator, you’ll know that bonus space like this can give you a serious bang for your buck.
Bonus Room = Bonus Possibilities
Let’s talk bonus room. This space can be whatever your life needs it to be. A playroom? Home gym? Media center? Craft space? Game zone? In-law suite?
The only limit is your imagination—and maybe your home equity loan approval.

The beauty of optional space is that you can finish it when you’re ready. There’s no rush, just opportunity.
A home remodeling contractor would have a field day with the possibilities here. Want to future-proof your home with a theater system or turn it into a private retreat for guests or teens? Go for it.
You’ve got the canvas—you just need a little interior design software (and maybe Pinterest) to bring it all together.
Making an Entrance—That Foyer Though
I don’t normally gush about entryways, but this one? This one is different. The moment you step through the front door, you’re greeted by soaring ceilings and a sense of grandeur that sets the tone for the entire home.

It’s the kind of entrance that makes a statement—something along the lines of, “Welcome to the good life.” Your guests will be impressed before they even remove their shoes.
To the left, the formal dining room is just begging for holidays, birthday dinners, and spontaneous weeknight feasts. It’s stately without being stiff—kind of like the tuxedo of dining rooms.
And if you’re working with a real estate agent to buy or sell, they’ll definitely point out how rare it is to find a home that mixes formal and casual spaces so flawlessly.
Corner Lot Compatibility (Say That Three Times Fast)
This house wasn’t just designed for curb appeal—it was made to shine on a corner lot. Thanks to the side-load garage, the facade stays clean, polished, and perfectly Pinterest-worthy.

It also means the home looks wider and more impressive from the street, which can work wonders for that ever-important property value.
And the courtyard? Oh, the courtyard. Tucked alongside the home like a private little oasis, this charming space adds a touch of European romance to the modern farmhouse vibe.
Imagine potted plants, cozy seating, and string lights twinkling above as you sip something fabulous on a mild summer night. That’s the kind of moment you buy into when you purchase this plan.
Laundry, Mudroom, and All Things Practical
Let’s be real—homeownership isn’t all hot tubs and charcuterie boards. There’s laundry. There are muddy shoes.

There are backpacks, sports gear, and Amazon boxes that just keep showing up. That’s why the practicality of this floor plan is worth celebrating.
The laundry room isn’t tucked into some dark corner. Instead, it connects directly to the master closet (a true modern marvel) and sits near the mudroom for ultra-efficient daily flow.
You can toss your clothes in the washer before heading to bed or dump your kids’ entire soccer uniform in one swift motion.
It’s these behind-the-scenes details that make life easier—and that home loan pre-approval feel totally worth it.

Plus, the mudroom drop zone is great for keeping things organized and off your beautiful floors.
And when it comes time to refinance your mortgage or appraise your home, trust me—those little organization nooks count.
Smart Home Tech, Home Security, and Peace of Mind
No dream home is complete without the tech to match. And while this plan was designed for traditional charm, it’s more than ready for modern upgrades.
Smart home technology fits beautifully into this layout, with wiring options, open wall access, and centralized zones for control panels.

Need the best home security system? There’s room for sensors, motion detectors, video doorbells—you name it.
Want to program your thermostat from your phone or control the lighting with your voice? Go for it.
Smart thermostats, Wi-Fi-enabled appliances, and even app-controlled irrigation systems integrate beautifully here.
And the peace of mind that comes with a secure, high-tech home? That’s something no building cost estimator can quantify. Well, maybe it can. But still—worth every penny.

Design Dreams and Creative Spaces
Once you’ve moved in and unpacked the last box, it’s time to personalize.
Whether you’re an interior design software aficionado or just someone with a good eye for throw pillows, this plan makes it easy to let your personality shine. The tall ceilings, natural light, and versatile spaces act as a blank canvas.
Want shiplap walls and matte black fixtures? Or maybe you’re dreaming of soft neutrals and natural wood accents? Either way, this home was made to look good.
And if you’re planning some upgrades or tweaks, a good home remodeling contractor can help you bring your ideas to life.

Just imagine what that bonus room could become with a bit of creativity and a small home improvement loan. Game room, art studio, fitness sanctuary—the possibilities are endless.
A house like this is more than bricks and beams—it’s the launchpad for memories, milestones, and messy-yet-magical everyday moments.
So whether you’re contacting your real estate agent, refining your credit score, or checking out home insurance quotes, just know this: you’ve found something special.
Now all that’s left is to build it, live it, and love every square foot of it. Welcome home.
Building or buying a home isn’t just about picking the perfect house plan—it’s also about making smart long-term choices. From comparing mortgage rates to finding a trustworthy real estate agent, every decision adds value. Don’t forget to explore options like home insurance, home warranties, and potential refinance opportunities to protect your investment.
Want to boost your property value? Consider installing solar panels, upgrading to energy-efficient appliances, or integrating a smart home system. Plus, tools like interior design software can help you visualize and plan your dream space before the first brick is even laid.
Find More House Plans
By Bedrooms:
1 Bedroom • 2 Bedrooms • 3 Bedrooms • 4 Bedrooms • 5 Bedrooms • 6 Bedrooms • 7 Bedrooms • 8 Bedrooms • 9 Bedrooms • 10 Bedrooms
By Levels:
By Total Size:
Under 1,000 SF • 1,000 to 1,500 SF • 1,500 to 2,000 SF • 2,000 to 2,500 SF • 2,500 to 3,000 SF • 3,000 to 3,500 SF • 3,500 to 4,000 SF • 4,000 to 5,000 SF • 5,000 to 10,000 SF • 10,000 to 15,000 SF










