3-Bedroom 1-Story Craftsman Home with Lower Level Family Room (Floor Plan)

Specifications:
- 3,794 Sq Ft
- 3 Beds
- 3.5 Baths
- 1 Stories
- 4 Cars
Every once in a while, a home design makes me stop and think, “Now that’s how living should feel.”
This one-level Craftsman home—spanning 3,794 square feet—does exactly that.
From the moment you see the timber beams and columns gracing its exterior, you know this house means business in the charm department.
It’s warm, timeless, and crafted for people who love comfort, function, and a dash of luxury—all wrapped up in a design that feels effortlessly natural.


A Grand Entrance That Steals the Show
Stepping into this home feels like entering a cozy lodge, only sleeker.
The front entry instantly opens your view straight into the great room, and honestly, it’s hard not to smile.

Beamed ceilings, a fireplace that practically begs for a good book and a blanket, and that open floor plan—everything flows together beautifully.
The visual connection between rooms makes every square foot feel alive.
The great room spills naturally into the kitchen, which means no more yelling from room to room to call everyone for dinner.

It’s social, airy, and smartly designed for both entertaining and everyday living.
Plus, layouts like this tend to add to the property value, making it not just a dream home, but a smart investment too.

The Kitchen That Defines the Heart of the Home
If there’s one thing I’ve learned, it’s that a great kitchen can make or break a floor plan.
Here, the kitchen stands proudly at the center of it all, keeping you connected to both the great room and casual dining space.

Whether I’m cooking up something fancy or just burning toast (hey, it happens), I love that this setup keeps everything within easy reach.
There’s room for an island big enough to gather around, plenty of counter space, and a flow that just makes sense.
Imagine pairing this with a touch of smart home technology—voice-activated lights, energy-efficient appliances, even a refrigerator that reminds you to pick up milk.

This kind of layout embraces convenience without sacrificing style.
And if you’re working with a building cost estimator or a home remodeling contractor down the line, you’ll appreciate how efficiently every inch of this kitchen is designed.
It’s modern comfort with a Craftsman soul.

Dining in Style—Without Leaving the Warmth of Home
To the left of the entryway sits the formal dining room, and it’s not your average “holiday-only” space.
The tray ceiling adds depth and detail, while its proximity to both the kitchen and the great room keeps it perfectly connected.

I can picture family dinners, birthdays, and those long conversations that stretch well past dessert.
The design is a perfect balance—formal enough for special occasions but still cozy for weeknight meals.
This thoughtful layout is part of what makes the home so livable, and yes, part of what keeps its property value strong over time.

When you build with this much attention to flow and comfort, it’s more than just a house—it’s an investment that appreciates both in heart and in numbers.
The Den That Brings Character to Every Day
On the right side of the entry, the den waits with coffered ceilings and a quiet sense of authority.

It’s one of those spaces that can be whatever you need it to be—a study, a home office, or even a reading nook where you can hide from the chaos of life for a while.
I’d definitely use some interior design software to visualize the perfect setup here, maybe add a plush armchair by the window and a desk that faces the light.
It’s flexible, personal, and a great example of how this floor plan was built for real life.

Even better, having a defined workspace can be a big plus if you ever decide to sell—something any good real estate agent will tell you.
It’s functional now and valuable later, which is the sweet spot every homeowner loves.

A Master Suite That Feels Like a Private Retreat
The master suite in this home deserves its own round of applause.
Tucked neatly on the right side of the floor plan, it’s perfectly positioned for privacy and quiet.

The bedroom itself is spacious and elegant, and that master bathroom—complete with a Jacuzzi tub—is pure bliss.
After a long day, I can see myself soaking there until the bubbles disappear and all my worries follow.
The walk-in closet could practically qualify as its own room.

If you’re into maximizing your home equity loan potential, features like this one make a huge difference in property value.
It’s designed for comfort, luxury, and functionality all at once.
This master suite isn’t just a place to sleep—it’s a reason to fall in love with your home every day.

And when your home feels this good, you’ll never want to refinance mortgage decisions that take you away from it.
Guest Bedrooms That Make Everyone Feel at Home
Two additional bedrooms sit at the front of the house, each with its own private bathroom.

No more waiting for your turn in the morning—it’s comfort and privacy for everyone.
Whether these rooms are used for guests, teenagers, or extended family, they’re thoughtfully designed to make each person feel right at home.
I love how this layout keeps the sleeping areas separated from the main living zones, ensuring peace and quiet even when the kitchen or great room are buzzing with activity.

It’s a floor plan built with balance in mind—a mix of openness and retreat.
And if you ever decide to refinance or buy another property, layouts like this one are consistently high in demand, thanks to their flexibility and resale appeal.

A Garage That Works as Hard as You Do
Now, let’s talk about one of my favorite parts—the four-stall, split-load garage.
Four cars!

Or, if you’re like me, maybe two cars and a whole lot of “stuff I swear I’ll organize next weekend.”
It’s spacious, practical, and perfectly integrated into the home’s footprint.

It’s easy to picture using a bit of home improvement loan money to finish it off with extra storage, sleek floors, or even a small workspace.
And with the best home security system installed, you can rest easy knowing your tools, gear, and vehicles are safe.

This garage isn’t an afterthought—it’s a part of the home’s personality, blending function with good design.
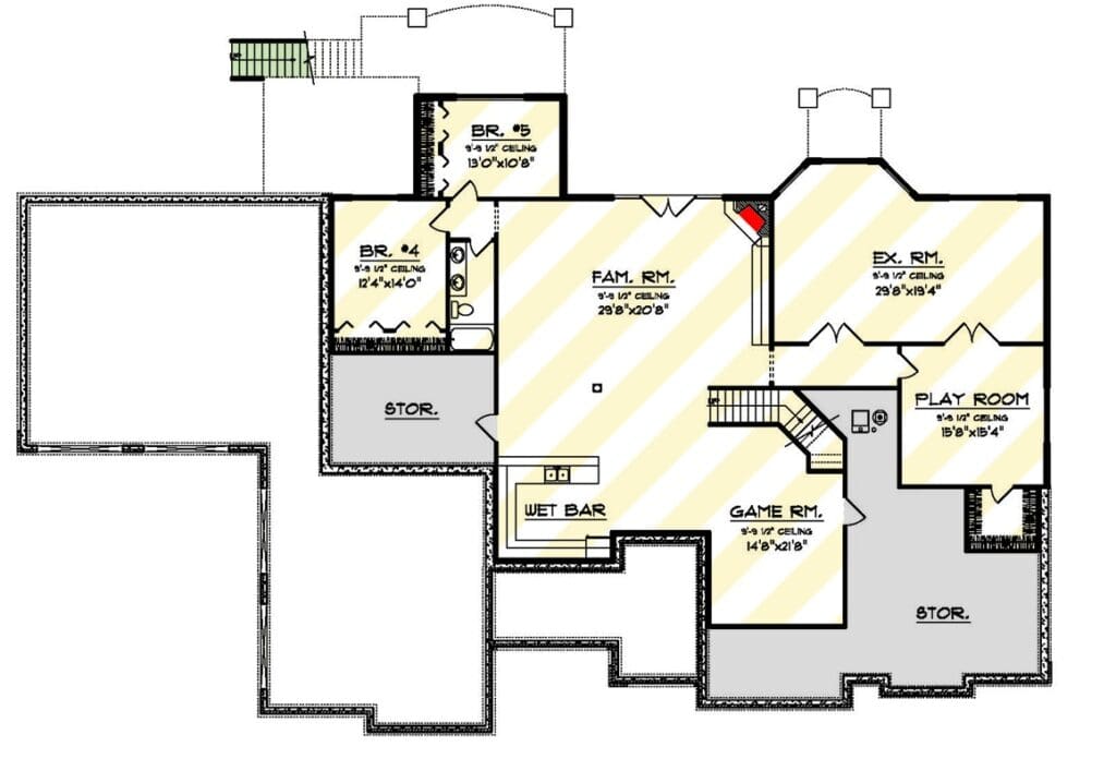
The Optional Lower Level
If the main floor is where life happens, the optional lower level is where the fun begins.

Picture a huge family room with a wet bar, a game room for movie marathons, and even a playroom for kids (or grown-ups pretending to be kids again).
There’s space for exercise equipment too—because after all those snacks from the bar, a treadmill might come in handy.

And if you’ve got guests or extended family visiting, two additional bedrooms and a full bath make sure they have privacy and comfort.
Finishing this level with help from a home remodeling contractor could turn it into an entertainment paradise.
It’s a brilliant way to expand living space without changing the home’s footprint—and that’s always a smart purchase choice when it comes to long-term value.

At 3,794 square feet, this one-level Craftsman home manages to feel expansive yet welcoming.
It’s the kind of design that proves luxury doesn’t need to be flashy—it just needs to feel right.

Every space, from the great room to the master suite, flows effortlessly, creating a home that’s both practical and deeply personal.
With smart home technology for efficiency, a solid home warranty for peace of mind, and the charm of timeless craftsmanship, this plan checks every box.
Whether you’re securing home loan pre-approval or simply looking for a place that feels like your forever home, this design delivers.
And when the sun sets and the lights warm the wooden beams outside, you’ll realize it’s not just a house—it’s your best investment in comfort, beauty, and life itself.
Building or buying a home isn’t just about picking the perfect house plan—it’s also about making smart long-term choices. From comparing mortgage rates to finding a trustworthy real estate agent, every decision adds value. Don’t forget to explore options like home insurance, home warranties, and potential refinance opportunities to protect your investment.
Want to boost your property value? Consider installing solar panels, upgrading to energy-efficient appliances, or integrating a smart home system. Plus, tools like interior design software can help you visualize and plan your dream space before the first brick is even laid.
Find More House Plans
By Bedrooms:
1 Bedroom • 2 Bedrooms • 3 Bedrooms • 4 Bedrooms • 5 Bedrooms • 6 Bedrooms • 7 Bedrooms • 8 Bedrooms • 9 Bedrooms • 10 Bedrooms
By Levels:
By Total Size:
Under 1,000 SF • 1,000 to 1,500 SF • 1,500 to 2,000 SF • 2,000 to 2,500 SF • 2,500 to 3,000 SF • 3,000 to 3,500 SF • 3,500 to 4,000 SF • 4,000 to 5,000 SF • 5,000 to 10,000 SF • 10,000 to 15,000 SF










