2-Story 5-Bedroom Modern Colonial House with 2-Story Great Room (Floor Plan)

Specifications:
- 6,123 Sq Ft
- 5 Beds
- 4.5 Baths
- 2 Stories
- 3 Cars
If homes could talk, this one would confidently say, “I have room for everyone.”
With 6,123 square feet of living space, 6 bedrooms, 4.5 baths, and a 3-car garage, this modern colonial plan is designed for both comfort and class.
It’s not just big—it’s beautifully balanced, with every inch thoughtfully planned to make life a little easier and a lot more enjoyable.



A Grand Entryway That Welcomes You Home
Stepping into the front entry, I immediately sense the openness.
The 12’x10’ entry hall feels grand but not intimidating, leading straight to the stairway and the heart of the home.
Light filters from the living room beyond, creating that “wow” moment the instant you walk in.
It’s the kind of entrance that would make any real estate agent grin—it just sells itself.
The central staircase is not just practical—it’s elegant.
It connects the two stories seamlessly, while the open layout around it keeps the home feeling airy and connected.
This is the kind of design that makes both guests and homeowners feel instantly at ease.
Living Room Majesty
The living room stretches a generous 24 by 18 feet and serves as the core of the floor plan.
The two-story ceiling amplifies the sense of space, while large windows invite in natural light that brightens every corner.

Whether I imagine curling up here with coffee or hosting a big family gathering, this space can handle it all with grace.
I love how the living room flows right into the dining area and kitchen—it keeps conversations lively and people together.
The placement of the fireplace creates a cozy focal point, and with smart home technology controlling lighting and temperature, this space blends charm and convenience.
This room doesn’t just look beautiful—it feels beautiful.
A Kitchen That Combines Form and Function
Ah, the kitchen—20 feet wide and the heartbeat of the house.
I can already see myself leaning on that massive center island, chatting while dinner simmers on the stove.
Its open layout connects seamlessly to the dining room and the back deck, which means indoor-outdoor entertaining is a breeze.

Storage lovers, rejoice!
The 9×12 pantry is the unsung hero here.
There’s space for every appliance, snack, and even a small freezer if you’d like.
And for those who love multitasking, the built-in desk nearby makes checking emails or tracking mortgage rates almost enjoyable.
With modern finishes, plenty of prep space, and an easy flow, this kitchen hits the perfect balance of luxury and everyday practicality.
It’s a cook’s dream—and a design enthusiast’s too.
Dining Room Designed for Every Occasion
At 20×15 feet, the dining area is a showstopper.
It’s perfectly positioned between the kitchen and the deck, creating effortless movement whether you’re serving a weekday dinner or a holiday feast.
The open connection to the wet bar nearby makes entertaining smooth and stylish—you can pour, serve, and enjoy without missing a beat.
And let’s be honest, nothing elevates a meal like the right setting.

This dining room provides just that: high ceilings, soft lighting, and enough room for a long table full of family, laughter, and maybe a few investment discussions over dessert.
The Master Suite
Now, let’s talk about the master suite—my personal favorite feature of this floor plan.
Tucked away on the main level, it’s both private and expansive.
The 20’6” x 16’ bedroom opens to a lovely covered patio, perfect for enjoying a quiet morning or late-night breeze.
The master bath feels like a spa retreat, featuring a large soaking tub, dual vanities, and a separate shower.
And then there are the two walk-in closets—yes, two.
Each one is spacious enough to keep even the most extensive wardrobe perfectly organized.
The design of this suite is all about comfort and calm.

It’s your getaway without leaving home—a space where you can unwind, reflect, or just appreciate how much your property value appreciates you.
Family Room for Everyday Living
Adjacent to the master suite, the family room (16’10” x 13’6”) is the perfect everyday retreat.
It’s slightly more intimate than the grand living room, making it great for movie nights, homework sessions, or relaxed hangouts.
With the powder room nearby and the main-level staircase just steps away, this room fits naturally into the flow of the house.
It’s casual yet connected, designed to keep the family close without crowding.
Utility Spaces That Make Life Effortless
Now, onto the unsung heroes of any great floor plan—the practical spaces.
The mudroom connects the garage to the main hallway, providing a place to drop shoes, coats, and backpacks before entering the main living area.
It’s a simple addition that makes a huge difference in keeping things tidy.

Next to it, the laundry room (14×6) offers plenty of workspace and storage, keeping the less glamorous parts of homeownership efficient and out of sight.
The access to both garages makes loading groceries or managing home improvement projects ridiculously easy.
And those garages—two of them—total 1,039 square feet.
Whether you’re parking three cars, creating a workshop, or storing sports gear, you’ll never run out of space.
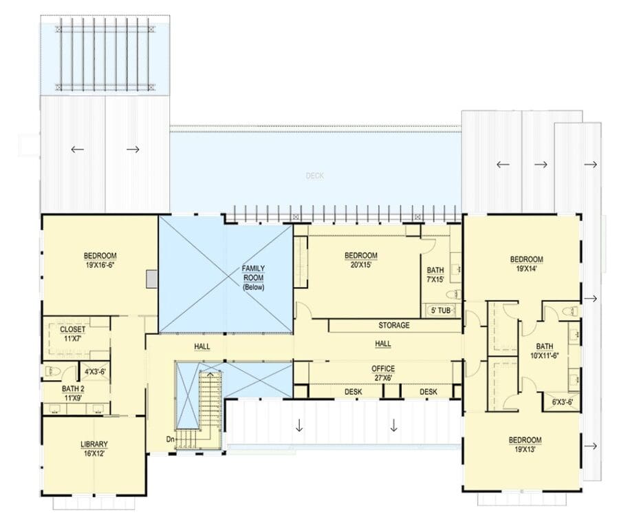
Private Spaces for Everyone
Upstairs, the floor plan really opens up to family and guests alike.
With five spacious bedrooms, three full baths, and a large central hallway, it feels like a small luxury hotel.
Each bedroom is generously sized, ranging from 19 to 20 feet wide, with closets and easy bathroom access.
The thoughtful placement of bathrooms ensures no morning traffic jams—a victory for any household.

At one end of the hall, there’s even a library and a quiet office space with dual built-in desks—perfect for work-from-home life or late-night study sessions.
The open view down to the family room below adds visual connection between the two levels without sacrificing privacy.
This second story is designed for both comfort and functionality—ample storage, open hallways, and just the right amount of separation between rooms.
It’s easy to imagine every family member finding their favorite corner up here.
Outdoor Spaces That Extend the Living Area
The deck spanning the back of the house—48 by 15 feet—is the kind of outdoor space you dream about.
Whether it’s a morning cup of coffee, weekend grilling with friends, or simply admiring your backyard, this deck delivers.
It connects directly from the dining area and offers a smooth flow for entertaining.
The master patio adds another layer of outdoor charm, giving the primary suite its own private retreat.
These outdoor spaces are more than just add-ons—they’re essential extensions of the home’s lifestyle.

An Optional Basement for Endless Possibilities
And for those who crave even more, the optionally finished basement provides an incredible opportunity.
Think home theater, fitness room, or game area—the possibilities are wide open.
It’s one of those spaces that can evolve as your needs do, making it a smart long-term investment.
Finishing the basement could also increase your home’s value significantly.
Whether you want to buy now and remodel later, or dive in right away with your favorite home remodeling contractor, this plan gives you the flexibility to grow.
What I love most about this 6-bed modern colonial plan is how well it balances elegance and function.
Every room connects naturally, yet maintains its own sense of purpose.
The open spaces invite gatherings, while the private rooms offer quiet escapes.

From the grand two-story living room to the cozy family areas, from the efficient mudroom to the serene master suite—every square foot is used wisely.
The design makes life flow effortlessly, while maintaining that timeless colonial charm.
So whether you’re planning to purchase your dream home, make an investment, or simply admire thoughtful architecture, this floor plan proves that luxury and livability can truly go hand in hand.
And trust me—once you see it in person, you won’t just want to buy it… you’ll want to live it.
Building or buying a home isn’t just about picking the perfect house plan—it’s also about making smart long-term choices. From comparing mortgage rates to finding a trustworthy real estate agent, every decision adds value. Don’t forget to explore options like home insurance, home warranties, and potential refinance opportunities to protect your investment.
Want to boost your property value? Consider installing solar panels, upgrading to energy-efficient appliances, or integrating a smart home system. Plus, tools like interior design software can help you visualize and plan your dream space before the first brick is even laid.
Find More House Plans
By Bedrooms:
1 Bedroom • 2 Bedrooms • 3 Bedrooms • 4 Bedrooms • 5 Bedrooms • 6 Bedrooms • 7 Bedrooms • 8 Bedrooms • 9 Bedrooms • 10 Bedrooms
By Levels:
By Total Size:
Under 1,000 SF • 1,000 to 1,500 SF • 1,500 to 2,000 SF • 2,000 to 2,500 SF • 2,500 to 3,000 SF • 3,000 to 3,500 SF • 3,500 to 4,000 SF • 4,000 to 5,000 SF • 5,000 to 10,000 SF • 10,000 to 15,000 SF










