1-Story 5-Bedroom Mountain Craftsman House with Walkout Basement (Floor Plan)

Specifications:
- 6,047 Sq Ft
- 5 Beds
- 4.5+ Baths
- 1 Stories
- 3 Cars
Let’s be honest—some house plans whisper, but this Mountain Craftsman plan?
It sings.
With 6,047 square feet of beautifully designed space, 5 bedrooms, 4.5+ baths, a walkout basement, and a layout that screams “mountain lodge meets modern life,” it’s the kind of home that turns a quick browse into a full-blown house crush.
Whether you’re thinking about a smart investment, ready to buy, or just dreaming with your mortgage rates spreadsheet open, this plan might just be “the one.”







Bold Mountain-Inspired Exterior with Purposeful Design
Before we even step inside, let’s appreciate the facade.
This Mountain Craftsman home features a rustic yet refined aesthetic that blends natural materials with smart structure.

Stone, wood, and exposed trusses create a visual statement, while the L-shaped 3-car garage gives it serious curb appeal and function.
Above the garage?
A flex room that’s just waiting to become your new home office, gym, or even a game-day sanctuary.

This isn’t just a pretty face—it’s a high-functioning design that’s perfect for families, entertainers, and anyone who likes their home with a side of versatility.
And yes, it’s the kind of plan that’ll have your real estate agent calling you with, “You have to see this one.”

Vaulted Great Room with Rustic Charm and Modern Living
Step through the front door, and the home opens into a vaulted great room that feels both grand and warm—like the architectural equivalent of a bear hug.

A fireplace framed by custom built-ins serves as the centerpiece, flanked by sliding doors that lead to a massive covered deck.
Think fresh air, morning coffee, and mountain views year-round.
The exposed beam ceiling pulls the whole room together, adding character while tying the great room to the entryway.

Whether you’re planning to install the best home security system or simply enjoy smart home technology for lighting and temperature control, this room adapts beautifully.
This space isn’t just for looks—it’s made for real life, and every feature adds long-term property value and everyday enjoyment.

Island Kitchen with Pantry Perfection
If kitchens sell homes, this one might just close the deal.
The large island is command central, offering seating, prep space, and easy access to everything.

Whether you’re whipping up a family meal or hosting a dinner party, it’s designed for flow and function.
Just off the kitchen sits a generous walk-in pantry that’s ready for all your Costco hauls and gourmet ambitions.

Pair it with nearby dining space, and you’ve got the ideal balance between open concept and cozy.
With interior design software, you could easily visualize your dream finishes—from natural wood tones to sleek stone counters.

This part of the house feels like a canvas for whatever culinary vibe you want to create.
And if you’re thinking ahead about financing, a home equity loan or refinance mortgage could be your ticket to customization.

Private Master Wing That Defines Luxury Living
Tucked into the right wing of the home, the master suite is a private sanctuary.
It’s spacious enough for a king-sized bed, reading nook, and furniture that actually fits.

Sliding doors provide direct access to the back deck, perfect for stargazing or sneaking out for quiet morning coffee.
The ensuite bath features a five-fixture setup: dual vanities, a soaking tub, a walk-in shower, and two walk-in closets.

No more negotiating for closet space—everyone wins.
This wing is more than just beautiful; it’s practical and peaceful.
For those looking to buy a forever home—or invest in one—this suite alone justifies a chat with your mortgage advisor.

Functional Study Perfect for Work and Focus
Just steps from the master suite is a home office space that’s ideal for remote work or managing the household.
With its natural light and privacy, it’s a productivity haven.

Add in smart home technology, and you’ve got a sleek setup to take Zoom calls without the kitchen clutter in the background.
If you’ve been dreaming of a quiet space to sort out your home loan pre-approval, calculate your building cost estimator, or finally tackle that creative project, this room has your back.

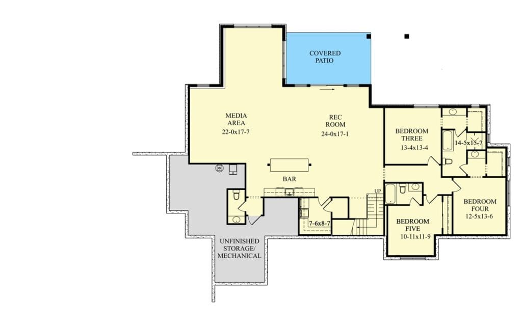
Walkout Basement Built for Entertainment and Guests
Now we descend to what might be the coolest part of the house—the walkout basement.
Far from a dark, forgotten space, this level is full of light, thanks to large windows and walkout access to the backyard.

Here’s what you get: a massive media and rec room (hello, Super Bowl parties), a built-in bar (cheers!), and three bedroom suites—each with its own bathroom.
That’s privacy for guests, teenagers, or extended family.
There’s even a second laundry room, which feels like a small miracle during busy weeks.

Entertaining is effortless down here, and whether you’re using it for family gatherings or turning it into a rentable guest suite for additional investment income, this basement offers serious flexibility—and value.
Garage and Flex Room That Go Beyond Storage
The attached 3-car garage is great, but the real showstopper is the bonus space above it.

This flex room can be anything—home theater, man cave, guest retreat, or even a rental suite with a little creativity and the help of a home remodeling contractor.
It’s the kind of addition that grows with you.
New baby?

Teen needing their own hangout?
Parents moving in?
You’re covered.
It’s the kind of adaptable space that makes this home plan a wise purchase and a long-term win.

Outdoor Living Spaces That Extend Your Lifestyle
What’s better than a gorgeous interior?
An outdoor space that matches it.

This home features a large, covered deck off the main level and a patio below off the basement.
These spaces are begging for summer barbecues, cozy fall nights, and maybe even a hot tub if you’re feeling fancy.
With the right home improvement loans, you could even upgrade these areas with built-in seating, an outdoor kitchen, or seasonal lighting.

Bonus: these upgrades can boost your home’s appraised property value.
Craftsmanship, Comfort, and the Joy of Coming Home
At the end of the day, this Mountain Craftsman home plan isn’t just about square footage or fancy finishes.

It’s about how it feels to live there.
It’s about comfort, flexibility, and the kind of smart design that supports your life—not complicates it.

Whether you’re starting fresh, upgrading, or looking for a solid real estate investment, this house makes sense.
With a reliable home warranty and the right home insurance in place, it becomes a worry-free lifestyle wrapped in rustic elegance.

And hey, if your credit score is ready and the timing feels right, this might be more than a dream—it might be your next address.
If you’re in the market to buy—or even just exploring your options—this Mountain Craftsman house plan deserves a spot at the top of your list.

With thoughtful design, high-end finishes, and unmatched flexibility, it’s a home that adapts to you and grows with you.
Start crunching the numbers, talk to your real estate agent, and get serious about that home loan pre-approval.
Because this isn’t just a house plan.
It’s your future dream home with mountain views, a roaring fireplace, and a lifetime of cozy memories waiting to happen.
Building or buying a home isn’t just about picking the perfect house plan—it’s also about making smart long-term choices. From comparing mortgage rates to finding a trustworthy real estate agent, every decision adds value. Don’t forget to explore options like home insurance, home warranties, and potential refinance opportunities to protect your investment.
Want to boost your property value? Consider installing solar panels, upgrading to energy-efficient appliances, or integrating a smart home system. Plus, tools like interior design software can help you visualize and plan your dream space before the first brick is even laid.
Find More House Plans
By Bedrooms:
1 Bedroom • 2 Bedrooms • 3 Bedrooms • 4 Bedrooms • 5 Bedrooms • 6 Bedrooms • 7 Bedrooms • 8 Bedrooms • 9 Bedrooms • 10 Bedrooms
By Levels:
By Total Size:
Under 1,000 SF • 1,000 to 1,500 SF • 1,500 to 2,000 SF • 2,000 to 2,500 SF • 2,500 to 3,000 SF • 3,000 to 3,500 SF • 3,500 to 4,000 SF • 4,000 to 5,000 SF • 5,000 to 10,000 SF • 10,000 to 15,000 SF










