1-Story 3-Bedroom Modern Farmhouse with Optionally Finished Bonus Level (Floor Plan)

Specifications:
- 3,215 Sq Ft
- 3 Beds
- 3.5 Baths
- 1 Stories
- 3 Cars
I don’t know about you, but the older I get, the more I dream about wide porches, vaulted ceilings, and a kitchen so big I could host Thanksgiving and still have room to hide from my in-laws.
Well, good news: this 3,215 sq. ft. modern farmhouse checks all those boxes—and then some.
It’s the kind of home that makes you want to drop everything, call your real estate agent, and say, “I’m ready to buy!”
Let me give you the full tour, minus the awkward open house small talk.


A Grand Welcome That Feels Like Home
From the moment you step onto the covered front porch (a spacious 243 square feet of pure Southern charm), you know this isn’t just any house—it’s a place with personality.
Walk through the 2-story foyer (yes, it’s as grand as it sounds), and you’re greeted by a space that balances elegance with cozy farmhouse vibes.
This isn’t one of those cold, modern boxes that look like you can’t touch anything.
Nope, this one says, “Kick your shoes off and stay a while.”
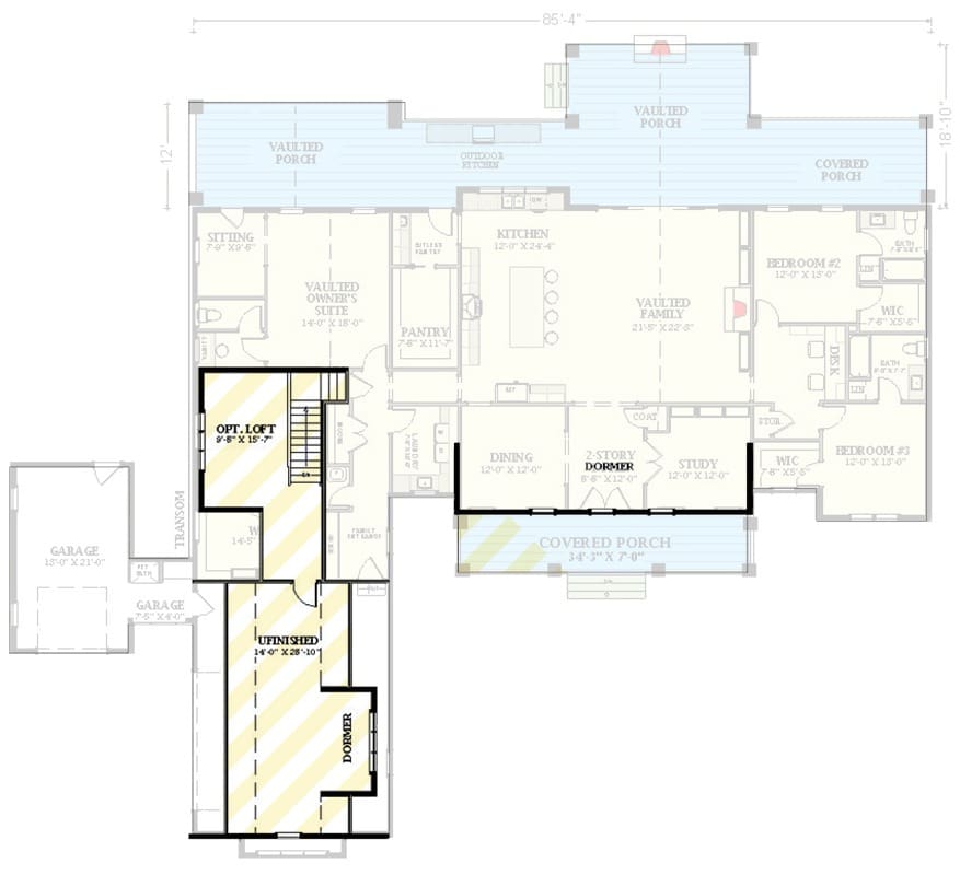
Vaulted Ceilings and a Kitchen That Brings the Family Together
The heart of this home is the vaulted family room, which stretches an impressive 21.5′ by 22.5′.
This is where your favorite memories will happen—game nights, movie marathons, maybe even a few dance-offs.
The open-concept flow leads right into the kitchen, which is so big you’ll never have to do that awkward “excuse me” shuffle while cooking with someone else.
And let’s talk about that kitchen: it features a 12′ x 24′ layout, a giant island, a walk-in pantry, and even a butler’s pantry (because sometimes one pantry just isn’t enough).
Whether you’re trying out recipes from your interior design software-inspired Pinterest board or just heating up leftovers, this space has room for it all.
The Owner’s Suite Dreams Are Made Of
Tucked away on the left side of the house is the vaulted owner’s suite, which is basically a spa disguised as a bedroom.
At 14′ x 18’6″, it comes with its own sitting area for those rare quiet moments (you know, before the dog finds you).
The ensuite bathroom?
Pure luxury, featuring double vanities, a soaking tub, and a walk-in shower that could comfortably host a small yoga class.
And the walk-in closet?
Let’s just say you won’t need to refinance your mortgage to build a separate closet addition—it’s already massive.
Room for Everyone—And Then Some
This home features three bedrooms in total, each with its own walk-in closet and private bathroom access.
Perfect for kids, guests, or that cousin who said he was “just staying for the weekend” three months ago.
Bedroom #2 and Bedroom #3 are both located on the right wing of the house, offering privacy and comfort.
Need a home office or a study zone?
This plan’s got that too.
A dedicated study just off the foyer makes remote work or late-night study sessions a breeze.
Plus, there’s a powder room conveniently located for guests—because no one likes people traipsing through their bedroom to use the bathroom.
The Bonus Level You Didn’t Know You Needed
Now, here’s the cherry on top: the optional bonus level.
Upstairs, you get 333 sq. ft. of extra space, including a loft (8’6” x 15’7”) and an unfinished room just waiting for your creative touch.
Make it a game room, home gym, yoga studio, or even a second living area.
And let’s be honest, in-laws might love a space like this so much, they’ll forget they were only visiting for a few days.
If you’re using a building cost estimator to budget your build, just know that this bonus space is worth every penny.
It adds flexibility, and in real estate, flexibility means investment potential and long-term property value.

Storage and Parking That Actually Make Sense
We’ve all seen house plans where the garage feels like an afterthought.
Not here.
This modern farmhouse comes with a whopping 1,068 sq. ft. of garage space, designed to hold three cars—perfect for your daily driver, your weekend project car, and maybe a golf cart or two.
It has front and side entries, which means maneuvering vehicles (or moving large furniture) is hassle-free.
There’s also plenty of storage inside, including coat closets, linen storage, and even a mudroom area to help keep the rest of the house looking clean—even if your kids just ran in covered in mud.
Outdoor Living Done Right
Let’s talk porches.
In total, this home features over 1,300 square feet of porch space.
The rear porch alone is 1,058 square feet, complete with a vaulted ceiling and outdoor fireplace.
It’s the kind of setup that makes you want to refinance your mortgage just to buy better patio furniture.
Whether you’re sipping sweet tea on the front porch or hosting a summer BBQ in the back, outdoor living here isn’t just an afterthought—it’s a lifestyle.
Built for the Way We Live Now
Modern life demands more from our homes than ever before, and this plan delivers.
Smart home technology can be seamlessly integrated into every room—from smart thermostats in the vaulted family room to WiFi-enabled kitchen appliances that make life easier.
It’s like your house finally learned how to work smarter, not harder.
Worried about protecting your dream home?
Pair this beauty with the best home security system you can get and enjoy peace of mind whether you’re home or away.
You might also want to consider a home warranty for those unexpected surprises (because even perfect houses sometimes have a moody water heater).
Making the Dream a Reality
If you’re wondering how to make this dream farmhouse yours, start by checking your credit score and getting a home loan pre-approval.
Whether you’re buying your first home or purchasing this as a long-term investment, knowing your financials will help make the process smoother.
Talk to your lender about options like a home equity loan or home improvement loans if you’re thinking of customizing a few features.
You’ll also want to compare mortgage rates, look into home insurance coverage, and maybe even chat with a home remodeling contractor if you plan on finishing that bonus level.
It may sound like a lot, but trust me—when you’re sipping coffee in your vaulted owner’s suite, it’ll be worth every email and paperwork stack.
At 107’ 7” wide and 94’ 3” deep, with a max ridge height of 31’, this home stands tall—literally and figuratively.
It’s more than just square footage and stylish finishes; it’s a lifestyle upgrade.
The kind of place that grows with you, supports your goals, and boosts your property value over time.
So if you’re dreaming of comfort, character, and just the right amount of luxury, this 3-bedroom modern farmhouse with an optionally finished bonus level might be exactly what you’re looking for.
Whether you’re ready to buy now or simply daydreaming while adjusting to current mortgage rates, this plan offers the perfect balance of heart, style, and practicality.
Just don’t be surprised if your friends “accidentally” stop by all the time—who could blame them?
Building or buying a home isn’t just about picking the perfect house plan—it’s also about making smart long-term choices. From comparing mortgage rates to finding a trustworthy real estate agent, every decision adds value. Don’t forget to explore options like home insurance, home warranties, and potential refinance opportunities to protect your investment.
Want to boost your property value? Consider installing solar panels, upgrading to energy-efficient appliances, or integrating a smart home system. Plus, tools like interior design software can help you visualize and plan your dream space before the first brick is even laid.
Find More House Plans
By Bedrooms:
1 Bedroom • 2 Bedrooms • 3 Bedrooms • 4 Bedrooms • 5 Bedrooms • 6 Bedrooms • 7 Bedrooms • 8 Bedrooms • 9 Bedrooms • 10 Bedrooms
By Levels:
By Total Size:
Under 1,000 SF • 1,000 to 1,500 SF • 1,500 to 2,000 SF • 2,000 to 2,500 SF • 2,500 to 3,000 SF • 3,000 to 3,500 SF • 3,500 to 4,000 SF • 4,000 to 5,000 SF • 5,000 to 10,000 SF • 10,000 to 15,000 SF










